Optimierung Grundriss EG

Diskutiere Optimierung Grundriss EG im Architektur Allgemein Forum im Bereich Architektur; Hallo zusammen, als stiller Mitleser habe ich mich nun auch registriert und eröffne auch direkt ein neues Thema. Mein Name ist Eugen und ich bin...

  1. #1 Eugen85, 28.02.2018
    Eugen85

    Eugen85

    Dabei seit:
    28.02.2018
    Beiträge:
    6
    Zustimmungen:
    0
    Hallo zusammen,
    als stiller Mitleser habe ich mich nun auch registriert und eröffne auch direkt ein neues Thema.
    Mein Name ist Eugen und ich bin 33 Jahre jung.
    Wir befinden uns aktuell in der Planung unseres EFH welches wir ab ca Mai bauen möchten.
    Wir haben auch soweit ein Grundriss von unserem Architekten erstellen lassen und sind eigentlich auch recht zufrieden damit.
    Die Tage haben wir uns allerdings Gedanken über unser Alter gemacht, und würden gerne das Büro unten so haben, das wir es eventuell als Schlafzimmer einrichten können.
    Allerdings ist dort das Gäste WC untergebracht. Den Durchgang zur Garage wollen wir auch nicht verlieren, da wir damit schon positive Erfahrung gesammelt haben.
    Daher war die Überlegung die Küche um 1,5m zu verkleinern um dort das Gäste WC in die Ecke zu platzieren.
    Zu dem wäre es auch Ideal dort die Garderobe zu errichten, da meine Frau einen versenkbaren Kleiderschrank verbauen möchte. Das Esszimmer könnte man eventuell um 75cm nach unten erweitern und bündig mit dem Erker machen, sowie den Überstand der Küche um 1m ebenfalls nach unten.Was mich bei der ganzen Sache nun stört, ist das wir dadurch das Fenster in der Küche zur Einfahrt verlieren und somit nur eins zur Gartenseite hätten.
    Was haltet Ihr davon? Oder gibt es andere Möglichkeiten unser Grundriss etwas zu optimieren.
    Ich entschuldige mich schon mal dafür, dass ich nur ein Foto vom Grundriss hochlade. Habe diesen allerdings bis dato nur in Papierform.

    Vielen Dank im Voraus

    MfG
     

    Anhänge:

  2. #2 driver55, 28.02.2018
    Zuletzt bearbeitet: 02.03.2018
    driver55

    driver55

    Dabei seit:
    22.02.2008
    Beiträge:
    6.933
    Zustimmungen:
    1.843
    Beruf:
    Dipl.-Ing.
    Ort:
    Pforzheim
    Mahlzeit,

    Deine Vorschläge/Ideen haben weniger mit Optimirung zu tun, als vielmehr "Neuplanung". Da wird doch das ges. Konstrukt über den Haufen geworfen.

    Das ist glaube ich der erste Grundriss hier, der mehr Fensterflächen als Wände hat. Und generell passt da aus meiner Sicht einiges nicht zusammen. "Tanzküche" aber "Mini-Esszimmer"...
     
  3. 11ant

    11ant

    Dabei seit:
    28.02.2017
    Beiträge:
    2.579
    Zustimmungen:
    1.623
    Beruf:
    Bauherrenberater
    Ort:
    RLP Nord
    Benutzertitelzusatz:
    bringt Sie gut beraten ins Eigenheim
    Bauherren in Deinem Alter werden mit großer Wahrscheinlichkeit im "Alter" schlicht nochmals bauen. Die Vorstellung - ibs. bei einem ansonsten nicht auf eine gute Teilbarkeit ausgerichteten Haus - einfach das Schlafzimmer ins Arbeitszimmer zu verlegen, springt zu kurz.

    Im übrigen kann man Grundrisse grundsätzlich nicht optimieren, ohne das ganze Raumprogramm und alle anderen Geschosse zu kennen.
     
  4. #4 bauspezi 45, 02.03.2018
    bauspezi 45

    bauspezi 45

    Dabei seit:
    20.02.2017
    Beiträge:
    1.780
    Zustimmungen:
    335
    Beruf:
    Meister der Steinkunst (Maurermeister)
    Ort:
    solingen wald
    Benutzertitelzusatz:
    iR.
    manchmal frag ich mich : für wen sind diese riesen Küchenbereiche gut ...
    die hier gezeigte Größe dürfte in Bereich von ab ca. 15.0000 - 20.000 Euro liegen.
    wer es braucht , um zu zeigen was man "hat" ??
     
  5. #5 simon84, 02.03.2018
    simon84

    simon84
    Moderator

    Dabei seit:
    11.11.2012
    Beiträge:
    23.325
    Zustimmungen:
    6.939
    Beruf:
    Schrauber
    Ort:
    Muenchen
    Definitiv AB Tendenz stark steigend :)
     
  6. #6 Lexmaul, 02.03.2018
    Lexmaul

    Lexmaul

    Dabei seit:
    15.09.2014
    Beiträge:
    8.921
    Zustimmungen:
    2.163
    Benutzertitelzusatz:
    Mimosenlecker
    Unsere ist gleich groß - wüsste nicht, was daran schlimm ist? Und 20k hat die nicht gekostet, aber mein Onkel ist Tischler ;-)
     
  7. S216

    S216

    Dabei seit:
    06.12.2017
    Beiträge:
    283
    Zustimmungen:
    82
    Beruf:
    Vertrieb Metallindustrie
    Ort:
    RLP
    Meine derzeit geplante hat 3,6 x 3,6 m und liegt bei 11 Mille, inkl. großem Kühler. Im obigen Fall kann ich die Maße nicht lesen, die dürfte etwas größer sein. Allerdings sind beim TE so viele Fenster, da kriegt man ja keinen Hängeschrank hin...
    Eine etwas größere Küche ist gut, wenn man wie bei uns oft zusammen kocht und getrennte Arbeiten ausführt. Uns sind allzu große Wohnzimmer nicht wichtig. Ein Wohnzimmer ist bei uns ein Zimmer für Frau, Kater und mich. Unsere Gäste und Familie sind und waren schon immer typische Terrassen-, Küchen- und Esszimmersitzer.
    Auch den Rest des Hauses des TE finde ich persönlich arg zerlöchert und zerfenstert.
     
  8. #8 driver55, 07.03.2018
    driver55

    driver55

    Dabei seit:
    22.02.2008
    Beiträge:
    6.933
    Zustimmungen:
    1.843
    Beruf:
    Dipl.-Ing.
    Ort:
    Pforzheim
    Die Größe der Küche (Möbel) hat doch nur indirekt was mit dem Preis zu tun.
    Was kleines Exklusives für 30 k€ oder 6 m-Küchenzeile für 5 k€ im P....O oder wie die Läden so heißen...:D

    Mir geht es primär um die verschenkte Fläche, die im Esszimmer dann fehlt.
     
    simon84 gefällt das.
  9. #9 Eugen85, 16.03.2018
    Eugen85

    Eugen85

    Dabei seit:
    28.02.2018
    Beiträge:
    6
    Zustimmungen:
    0
    Hallo zusammen,
    Entschuldigt bitte die verspätete Antwort.
    Die Küche werden wir etwas kleiner gestalten. Die Überlegung war den überstand zu entfernen und die Wand im Esszimmer, Richtung Garten, um 75 cm zu verlängern. Quasi gleich auf mit dem Erker. Allerdings will da der Architekt nicht mitmachen, da die Statik wohl nicht passen wird. Im OG soll kein überstand entstehen und die Außenwand hätte somit keine Auflagefläche. Kann das jemand bestätigen?
    Hab jetzt übrigens auch eine richtige Zeichnung hochgeladen .
    Den Kamin werden wir ebenfalls in Richtung Wohnzimmer versetzen und die Fensterflächen etwas reduzieren. Zu dem kommt das Gäste WC vor die Küche. Wissen aber noch nicht ob wir die Garderobe oder die Speisekammer am Gäste WC platzieren.
    Müssen uns noch etwas gedulden, da noch ein paar andere Sachen zu erledigen sind.

    Mfg
     

    Anhänge:

  10. #10 driver55, 19.03.2018
    driver55

    driver55

    Dabei seit:
    22.02.2008
    Beiträge:
    6.933
    Zustimmungen:
    1.843
    Beruf:
    Dipl.-Ing.
    Ort:
    Pforzheim
    Ist dann aber doch deutlich mehr als "nur" Optimierung! Wir sind gespannt.

    Zum Gäste-WC: Das finde ich an der jetzigen Stelle richtig gut platziert.
    Im Abst.-Raum (Küche) reicht auch ein 40er-Fenster.
     
  11. 11ant

    11ant

    Dabei seit:
    28.02.2017
    Beiträge:
    2.579
    Zustimmungen:
    1.623
    Beruf:
    Bauherrenberater
    Ort:
    RLP Nord
    Benutzertitelzusatz:
    bringt Sie gut beraten ins Eigenheim
    Wie denn, wenn wir Dein OG garnicht kennen ?
     
  12. #12 MartinNRW, 20.03.2018
    MartinNRW

    MartinNRW

    Dabei seit:
    14.07.2016
    Beiträge:
    29
    Zustimmungen:
    0
    Beruf:
    VFA
    Mich würde auch mal das OG dazu interessieren...
     
  13. #13 Eugen85, 20.03.2018
    Eugen85

    Eugen85

    Dabei seit:
    28.02.2018
    Beiträge:
    6
    Zustimmungen:
    0
    Sorry,
    Wollte ich eigentlich schon gemacht haben. Jetzt aber.
    Im Obergeschoss finden auch noch Änderungen statt. Die ankleide wird zwischen Bad und Schlafzimmer platziert, so das die beiden Zimmer etwas kleiner werden. Reicht uns aber auch. Das aktuelle Ankleidezimmer wird ein zusätzlicher Raum sein.

    Mfg
     

    Anhänge:

  14. #14 driver55, 21.03.2018
    driver55

    driver55

    Dabei seit:
    22.02.2008
    Beiträge:
    6.933
    Zustimmungen:
    1.843
    Beruf:
    Dipl.-Ing.
    Ort:
    Pforzheim
    Im OG gibt es auch noch einiges zu tun.
    Die Grundflächen (EG/OG) bieten Platz für große Räume, aber irgendwie sind die Proportionen nicht stimmig.
    Die neuen Pläne gibt's in's Osternetz?

    Mit Baubeginn Mai wird das aber nichts. ;)
     
  15. #15 Eugen85, 21.03.2018
    Eugen85

    Eugen85

    Dabei seit:
    28.02.2018
    Beiträge:
    6
    Zustimmungen:
    0
    Ja den Baubeginn haben wir auch schon um einen Monat nach hinten verschoben. Hoffentlich passt dieser :lock
    Was meinst du mit Platz für große Räume? Was genau könnte man da ändern?
    Wie geschrieben, werden wir das Schlafzimmer auf eine Länge von 3,5m ändern. Das Bad auf etwas zwischen 14-15qm und dazwischen dann eben das Ankleidezimmer. Die 2 Kinderzimmer wollten wir eigentlich unberührt lassen. Am Erker soll dann noch ein zusätzliches Zimmer entstehen.
    Bin für jede Kritik und Empfehlung dankabar:28:

    MfG
     
  16. #16 driver55, 21.03.2018
    driver55

    driver55

    Dabei seit:
    22.02.2008
    Beiträge:
    6.933
    Zustimmungen:
    1.843
    Beruf:
    Dipl.-Ing.
    Ort:
    Pforzheim
    Wenn ich knapp 200 m² Wohnfläche hätte, würde ich kein "Wohnzimmerschlauch" von 4 m Breite mit "Leseecke" von 16 m² sowie ein 18 m² Bad "designen". Bei dieser Grundfläche könnte man gutgeschnittene Räume auf's Papier bringen.
    (Auch wenn das Bad nun kleiner werden soll...)

    Ich sehe hier noch viel Arbeit / Potenzial.
     
  17. #17 Eugen85, 21.03.2018
    Eugen85

    Eugen85

    Dabei seit:
    28.02.2018
    Beiträge:
    6
    Zustimmungen:
    0
    Danke für die Kritik.
    Hast du einen bestimmten Tip für uns?
     
  18. #18 Andybaut, 22.03.2018
    Andybaut

    Andybaut

    Dabei seit:
    02.04.2015
    Beiträge:
    5.127
    Zustimmungen:
    329
    Beruf:
    Architekt
    Ort:
    Baden-Württemberg
    Bauen ist ja immer Geschmackssache und Geschmäcker sind verschieden.
    Also nun hier meine Anregungen zu deinem Grundriss.

    So ganz grundsätzlich verstehe ich die Ausrichtung nicht wirklich.
    Wohnen im N-O und Küche im S-W. Naja, vielleicht gibt´s da einen logischen Grund dafür...
    1.jpg
     
  19. #19 driver55, 22.03.2018
    driver55

    driver55

    Dabei seit:
    22.02.2008
    Beiträge:
    6.933
    Zustimmungen:
    1.843
    Beruf:
    Dipl.-Ing.
    Ort:
    Pforzheim
    @Eugen85: Die Frage ist doch, was ihr wollt? Viele Punkte sind ja Geshmackssache, aber für funktionale Dinge gibt's die (guten) Architekten.

    @Andybaut: Doch, doch, die Kammer dort ist gut. Haben wir auch. Allerdings schliesst dort dann direkt die Küche an. Unsere hat allerdings auch nur ca. 70% der Fläche von der hier gezeigten.;)
     
  20. #20 Eugen85, 23.03.2018
    Eugen85

    Eugen85

    Dabei seit:
    28.02.2018
    Beiträge:
    6
    Zustimmungen:
    0
    Vielen Dank für euer Feedback.
    @Andybaut
    Der O-Ton haut sogar hin :biggthumpup:
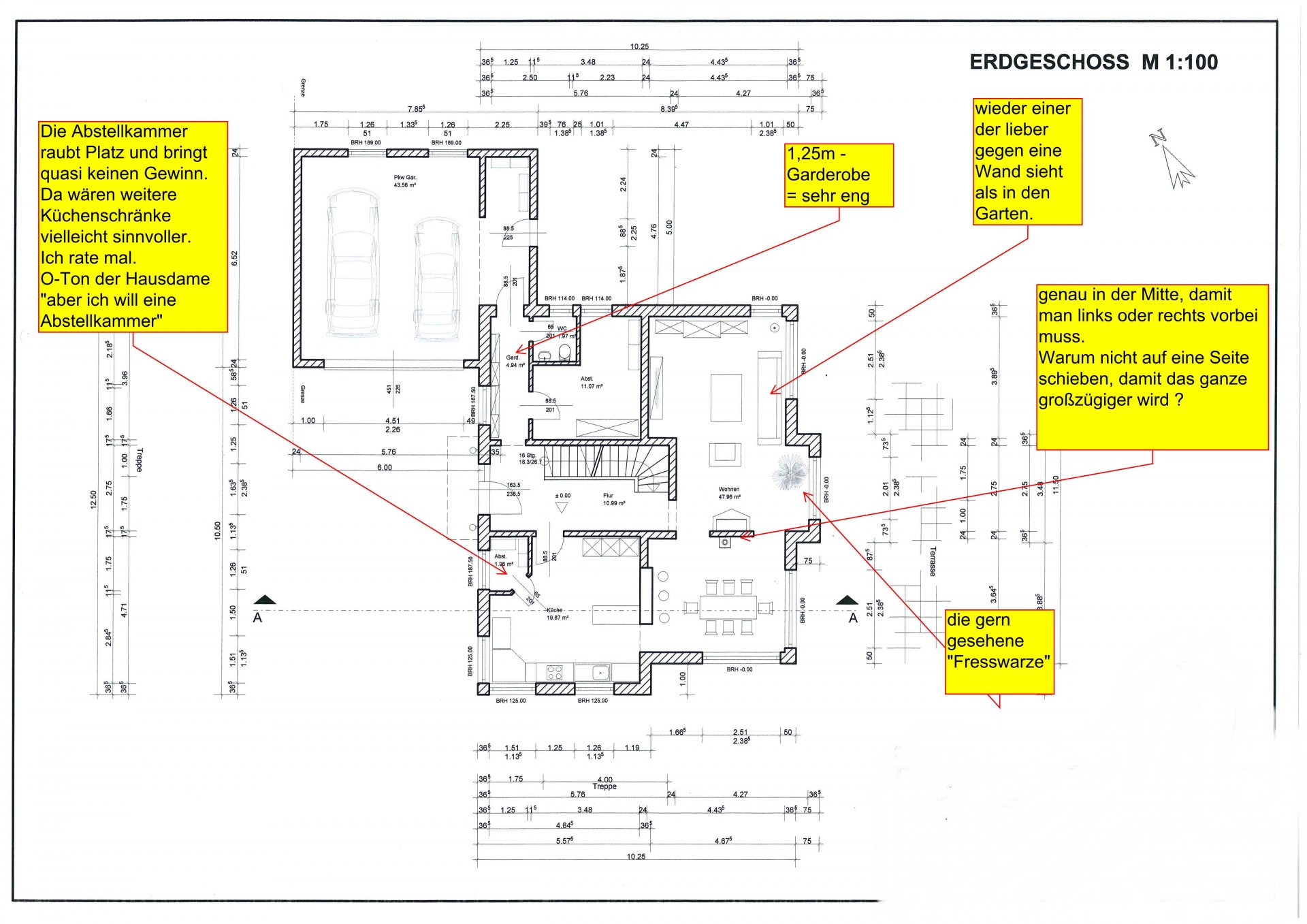
    Frau möchte die Speisekammer unbedingt haben. Hab Sie auch versucht zu überreden, da wir auch mit Keller bauen, aber da führt wohl kein Weg daran vorbei. Aktuell ist die Überlegung die Speisekammer und das Gäste WC vor die Küche zu setzen und den Eingang in die Speisekammer mit in die Küche zu integrieren. So hätten wir das Gäste WC aus dem Büro raus und die Speis auch gut versenkt. Hoffe ist verständlich was ich meine.
    Die Garderobe werden wir definitiv auf 1,5m erweitern. Auch der Kamin wird in den Wohnbereich an eine Wand versetzt und die Zwischenmauer kommt komplett weg.
    Was meinst du mit Fresswarze? Den Erker haben wir uns eingentlich nur für die Optik eingeplant. An ihm endet quasi die Baugrenze. Da der Dachüberstand genau 75 cm beträgt und dieses an der Baugrenze endet, spielt es keine Rolle ob er da ist oder nicht. Lediglich das Zimmer im OG wird etwas größer und von der Optik sagt es uns auch zu.
    Was die Sitzrichtung angeht, steht noch nicht fest wohin wir letzendlich hingucken. Das kleine Fenster lassen wir verschwinden.

    @driver55
    An für sich sind wir relativ zufrieden mit dem was wir haben. Hören uns aber gerne Meinungen von Leuten an die schon gebaut haben. Ihr habt mehr Erfahrung in dieser Hinsicht :bierchen:

    Danke
     
Thema:

Optimierung Grundriss EG

Die Seite wird geladen...

Optimierung Grundriss EG - Ähnliche Themen

  1. Optimierung Grundriss - Eure Ideen oder Empfehlung Archi

    Optimierung Grundriss - Eure Ideen oder Empfehlung Archi: Ihr Lieben, Wir bauen den DB aus. Weil wir wenig Erfahrung haben und möglicherweise eine Baugenehmigung brauchen, haben wir ein Architekturbüro...
  2. Hilfe bei Grundriss-Optimierung unserer DHH in Weinheim – junges Paar sucht kreative Ideen!

    Hilfe bei Grundriss-Optimierung unserer DHH in Weinheim – junges Paar sucht kreative Ideen!: Hallo zusammen, 1. Wir sind: wir sind ein junges Paar und wollen uns für unsere Familie - 2 Erwachsene, 31 und 28 Jahre alt + 2 Kinder, 11Monate...
  3. Optimierung Warmwasserzapfzeiten , wie Zirku verlegen ?

    Optimierung Warmwasserzapfzeiten , wie Zirku verlegen ?: Hallo in die Runde.. in unserer Sanitärplanung sind wir nicht ganz glücklich mit den Warmwasserzapfzeiten... Daher wollte ich die Chance hier...
  4. Grundriss und Ansichten EFH - Ideen zur Optimierung?

    Grundriss und Ansichten EFH - Ideen zur Optimierung?: Hallo liebe Bauexperten, bereits Anfang des Jahres hatte ich mein Debüt bei euch, es ging um Baugrenzen. Die damals erwähnte Basis für unsere...
  5. EFH 174m2 Grundriss - Optimierung?

    EFH 174m2 Grundriss - Optimierung?: Hallo an Alle, meine Freundin und ich sind gerade dabei, unser größtes Projekt anzugehen. :) Da wir beide Laien sind, würden wir uns über...