Optimierung Grundriss - Eure Ideen oder Empfehlung Archi

Diskutiere Optimierung Grundriss - Eure Ideen oder Empfehlung Archi im Bauen mit Architekten Forum im Bereich Architektur; Ihr Lieben, Wir bauen den DB aus. Weil wir wenig Erfahrung haben und möglicherweise eine Baugenehmigung brauchen, haben wir ein Architekturbüro...

  1. #1 Erlebacher, 21.09.2025
    Erlebacher

    Erlebacher

    Dabei seit:
    18.04.2025
    Beiträge:
    6
    Zustimmungen:
    0
    Ihr Lieben,

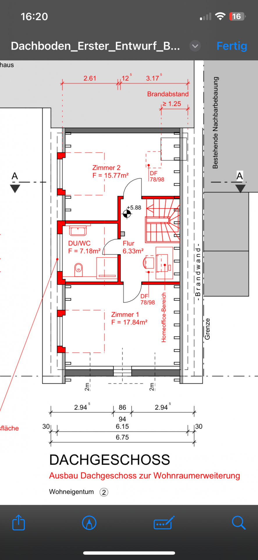
    Wir bauen den DB aus. Weil wir wenig Erfahrung haben und möglicherweise eine Baugenehmigung brauchen, haben wir ein Architekturbüro beauftragt. Allerdings waren die ersten zwei Entwürfe nur durchwachsen. Als wir noch Gauben wollten, gab es dafür eine mehr als besprochen und kein Licht im Flur und Treppenaufgang. Sehr ernüchternd. Daraufhin baten wir um Dachflächenfenster und mehr Licht, ein HO und bekamen den beigefügten Entwurf. Was meint ihr hierzu? Die eine Seite ist eine Brandschutzwand, deshalb kann man da nicht viel machen. Beim letzten Mal war mir wichtig, dass die Architekten Stauraum einplanen, ein HO mit Licht (zuvor war es links neben der Treppe), gut geschnittene Zimmer und ein kleines Bad, eventuell sogar ohne Dusche. Es soll im DB Wohnraum für meine baldigen Teenager entstehen und ich muss irgendwo vormittags zwei Tage die Woche arbeiten. Wenn ihr eure Ideen nicht mit mir teilen wollt, kennt ihr online Möglichkeiten, wo ich einen Grundriss-Check durchführen kann? Ich kenne zwei, allerdings geht es da um 400€ und meistens ein ganzes Haus. Ich hab aber nur quasi einen Stockwerk. Ich werde das Gefühl nicht los, dass irgendwas fehlt. Und ja, ich könnte mit dem Büro nochmal reden, aber das möchte ich erst, wenn ich von jemandem Unbeteiligten Eindrücke gesammelt habe.
     

    Anhänge:

  2. #2 Kriminelle, 21.09.2025
    Kriminelle

    Kriminelle

    Dabei seit:
    16.05.2013
    Beiträge:
    3.706
    Zustimmungen:
    2.046
    Beruf:
    .
    Ort:
    Niedersachsen
    Schau mal

    Grundrissdiskussionen - bitte vorher lesen!

    der Fragebogen ist zwar für Neubauten erstellt, gilt aber auch für so ein Vorhaben wie Ihr wollt.
    Denn das geht jetzt nicht unbedingt hervor, was Ihr nun wollt, braucht und ggf. nur nett wäre zu haben.
    Ich gehe davon aus, dass die Treppe sich aus dem unteren Geschoss ergibt, also darüber ist?
    Was soll Z 1 und für was Z 2 sein?
    Für wen soll der Stauraum sein, und soll der HO-Platz tatsächlich offen sein, wenn die Teenager sich dort auch aufhalten? Was bedeutet eigentlich Wohnraum für Teenager? Wollen sie den Raum? Oder willst Du den Raum für sie? Ein Raum oder zwei Räume für beide? Ich mein, wer will sich schon als Teenager mit dem Geschwisterchen freiwillig ein Raum teilen? ;)
     
    Erlebacher gefällt das.
  3. #3 Erlebacher, 22.09.2025
    Erlebacher

    Erlebacher

    Dabei seit:
    18.04.2025
    Beiträge:
    6
    Zustimmungen:
    0
    Danke für den Hinweis!

    • Die Treppe nach oben ist schon da, war nur nie beantragt :lock ja, sie führt vom 1. OG zum DG.
    • Meine Jungs wollen unbedingt auf den DB, jeder mit einem eigenen Raum. Zi 1 ist das eine Kinder-\Jugendzimmer, Zi 2 das andere
    • Wohnraum für Teenager bedeutet ein eigenes Zimmer zum Wohnen und Schlafen, lernen, chillen :)
    • Warum der HO-Raum offen ist, weiß ich nicht. Das kam so vom Büro. Womöglich um das Lichtproblem im Flurbereich zu lösen.
    • Stauraum benötigt eine 5-köpfige Familie immer für diverses. Kinderkleidung, Bettwäsche usw. Deshalb finde ich es ungünstig, den Stauraum in einem der Kinderzimmer zu planen. Es wäre höchstens ok, wenn es für denjenigen, der das Zimmer bewohnt, genutzt wird.
    • Neigung ca. 49 Grad, weiteres geht aus der Skizze hervor.
    • Wir sind 2 Erw., 3 Kinder. Bislang haben im 1. OG alle ihre Schlafräume (insgesamt 3, die Jungs teilen aktuell ein Zimmer)
     
  4. #4 Kriminelle, 22.09.2025
    Kriminelle

    Kriminelle

    Dabei seit:
    16.05.2013
    Beiträge:
    3.706
    Zustimmungen:
    2.046
    Beruf:
    .
    Ort:
    Niedersachsen
    Ok, also tatsächlich vollwertige Räume für beide.
    Was passiert denn mit dem dann freien Zimmer? Könnte man dort nicht HO machen?
     
    Erlebacher gefällt das.
  5. #5 Fabian Weber, 22.09.2025
    Fabian Weber

    Fabian Weber

    Dabei seit:
    03.04.2018
    Beiträge:
    16.306
    Zustimmungen:
    6.470
    Ich finde den Entwurf sehr gut, alle geforderten Punkte sind sauber abgearbeitet.

    Das offene Homeoffice ist Geschmacksache, mir gefällt es. Das kann man ja im Gebrauch sehen, ob das gut funktioniert und im Zweifel zieht man noch eine Glaswand nachträglich ein.
     
    Erlebacher gefällt das.
  6. #6 Kriminelle, 22.09.2025
    Kriminelle

    Kriminelle

    Dabei seit:
    16.05.2013
    Beiträge:
    3.706
    Zustimmungen:
    2.046
    Beruf:
    .
    Ort:
    Niedersachsen
    Mir gefällt das auch. Aber um den Entwurf zu beurteilen, muss man ja mal nachfragen.
     
    Erlebacher gefällt das.
  7. #7 Kriminelle, 22.09.2025
    Kriminelle

    Kriminelle

    Dabei seit:
    16.05.2013
    Beiträge:
    3.706
    Zustimmungen:
    2.046
    Beruf:
    .
    Ort:
    Niedersachsen
    Ich würde das wohl so machen: Kizis von der Größe angleichen, Seite neben der Treppe als AB nutzen.
    Dadurch wird der HO zur Galerie. Bei Gauben könnte man sich ggf. auf zwei Gaubwn beschränken. Ich bin aber kein Fachmann. Sicherlich muss das Gebälk da beachtet werden?
    Auf die Qm-Angaben bitte nicht achten, das ist nur die Bodengrundfläche
    IMG_1825.jpeg
     
    Erlebacher gefällt das.
  8. #8 Fabian Weber, 23.09.2025
    Fabian Weber

    Fabian Weber

    Dabei seit:
    03.04.2018
    Beiträge:
    16.306
    Zustimmungen:
    6.470
    @Kriminelle gleich große Zimmer haben immer den Nachteil, dass man später nicht so recht weiß was man damit anfangen soll. Ich habe es schon oft erlebt, dass ein Kind von sich aus lieber ein kleines Zimmer wollte.

    Unterschiedliche Zimmer finde ich für spätere Umnutzungen flexibler.
     
    Erlebacher gefällt das.
  9. #9 Kriminelle, 23.09.2025
    Kriminelle

    Kriminelle

    Dabei seit:
    16.05.2013
    Beiträge:
    3.706
    Zustimmungen:
    2.046
    Beruf:
    .
    Ort:
    Niedersachsen
    ?
    Es gibt doch schon zwei Geschosse. Was ist denn an zwei gleich großen Räumen unflexibel?
    Ich möchte mir keine Tiraden von Teenagern anhören, wer denn nun das größte oder beste Zimmer bekommt. Und wenn eine Veränderung ansteht, dann kann man immer noch die Galerie zum planoberen Raum wieder öffnen.
     
  10. #10 Erlebacher, 24.09.2025
    Erlebacher

    Erlebacher

    Dabei seit:
    18.04.2025
    Beiträge:
    6
    Zustimmungen:
    0
    Da kommt mein Mann hin. Der hat nämlich täglich HO und harrt seit knapp zwei Jahren in unserem Schlafzimmer mit seinem Tisch aus.
     
  11. #11 Erlebacher, 24.09.2025
    Erlebacher

    Erlebacher

    Dabei seit:
    18.04.2025
    Beiträge:
    6
    Zustimmungen:
    0
    Anbei mal der erste Entwurf. Noch mit Gauben. Links ziemlich cool eigentlich, qm der Kinderzimmer angeglichen, großes Bad (so groß brauchen wir es nicht bei Dusche in EG und 1. OG plus Badewanne), aber im Treppenaufgang und Flur keine Lichtquelle bis auf ein ziemlich hohes DFF (weil Brandschutzwand muss Abstand eingehalten werden) für das kleine HO. Mit drei Gauben wäre das Budget aber sicherlich explodiert. Allerdings ist es gerade sehr schwer an DD-Betriebe überhaupt zu kommen, damit man mal ein Angebot bekommt. DFF sind dagegen fix kalkuliert, wie es aussieht. Für uns ist es das erste Mal etwas in diese Richtung selbst zu starten. Das Haus haben wir in sehr fortgeschrittenem Rohbau gekauft. Konnten dann quasi noch den Innenausbau aussuchen.
    Bezüglich ähnlicher qm der Zimmer, sind meine Kinder total entspannt. Der Ältere würde auch das kleinere Zimmer nehmen.
    Was meint ihr zum 2. Flucht- u. Rettungsweg? Da wurde vorgeschlagen das Fenster zur Straße als Stulpenfenster mit den geforderten Mindestmaßen zu beantragen. Wenn schon Vergrößerung, haben wir uns gefragt, ob nicht ein bodentiefes Fenster mit Unterlicht modern und praktisch wäre?!
    Von einem Dachfenster als Notausstiegsfenster wurde uns eher abgeraten.
    Der Austausch tut so gut. Danke
     

    Anhänge:

  12. #12 Kriminelle, 24.09.2025
    Kriminelle

    Kriminelle

    Dabei seit:
    16.05.2013
    Beiträge:
    3.706
    Zustimmungen:
    2.046
    Beruf:
    .
    Ort:
    Niedersachsen
    Ok, kann man machen, würde ich aber persönlich nicht. Weil es mir nicht gefällt.
     
    Erlebacher gefällt das.
  13. #13 Fabian Weber, 24.09.2025
    Fabian Weber

    Fabian Weber

    Dabei seit:
    03.04.2018
    Beiträge:
    16.306
    Zustimmungen:
    6.470
    Ich finde den anderen Entwurf der Architekten viel durchdachter.

    Ob ein bodentiefes Fenster eine stimmige Fassade hergibt und ob man sich dann wegen der geringeren Stellfläche einen Gefallen tut, kann man ja mal in einer Variante durchspielen.
     
    Erlebacher gefällt das.
  14. #14 Erlebacher, 25.09.2025
    Zuletzt bearbeitet: 25.09.2025
    Erlebacher

    Erlebacher

    Dabei seit:
    18.04.2025
    Beiträge:
    6
    Zustimmungen:
    0
    Mir hatte der erste Entwurf auch absolut nicht gefallen. Und gerade deshalb bin ich jetzt auch so drauf aus, dass es beim nächsten Entwurf passen muss oder dass man den zweiten noch ein bisschen optimiert. Ich hoffe, dass die Architekten jetzt besser zu- und hinhören.
     
  15. #15 Fabian Weber, 25.09.2025
    Fabian Weber

    Fabian Weber

    Dabei seit:
    03.04.2018
    Beiträge:
    16.306
    Zustimmungen:
    6.470
    Was meinst Du damit, alles was Ihr wollt ist doch in dem von Dir zuerst geposteten Entwurf umgesetzt.

    Was stört Dich denn daran genau?
     
    Erlebacher gefällt das.
  16. #16 Erlebacher, 01.10.2025
    Erlebacher

    Erlebacher

    Dabei seit:
    18.04.2025
    Beiträge:
    6
    Zustimmungen:
    0
    Das stimmt. Viel ist jetzt umgesetzt. Mir fehlt aber irgendwie das gewisse Etwas. Das Thema gemeinsamer Stauraum würde ich nach dem Austausch hier und etwas Bedenkzeit komplett aus dem größeren Zimmer rausnehmen. Stauraum in einem Zimmer sollte dem entsprechenden Zimmer und seinem Bewohner zugeordnet werden. Die „Galerie“ könnte man dann größer gestalten, um ein wenig mehr Stauraum anzubieten.
    auch die Dusche werde ich wohl wegrationalisieren, weil wir in EG und 1OG schon jeweils über eine Dusche verfügen. Im 1. OG sogar mit Wanne. Da genügt üben WC+Waschbecken. Das Lichtkonzept finde ich auch nicht gut gelöst - die Brandschutzwand ist natürlich eine Herausforderung. Zuletzt schlugen die Architekten vor oberhalb der Treppe ein Fenster verbotenerweise einsetzen zu lassen, weil wir so auch das Problem mit der Kopffreiheit im Treppenaufgang lösen würden. Meine kindische Skizze im Anhang. Die eingezeichneten Fenster sind DFF.
     

    Anhänge:

    • image.jpg
      image.jpg
      Dateigröße:
      441,1 KB
      Aufrufe:
      140
  17. #17 Fabian Weber, 01.10.2025
    Zuletzt bearbeitet: 01.10.2025
    Fabian Weber

    Fabian Weber

    Dabei seit:
    03.04.2018
    Beiträge:
    16.306
    Zustimmungen:
    6.470
    IMG_3011.jpeg Ich würde nach Deiner Skizze Bad und Stauraum tauschen und den Stauraum im ganzen HO im Drempel unterbringen, analog dem Kinderzimmer. Dann hast Du ein wirklich großes offenes HO, was auch als Spielflur oder ähnliches dienen kann. Das HO dann mit Velux-Fenster.
     
Thema:

Optimierung Grundriss - Eure Ideen oder Empfehlung Archi

Die Seite wird geladen...

Optimierung Grundriss - Eure Ideen oder Empfehlung Archi - Ähnliche Themen

  1. Hilfe bei Grundriss-Optimierung unserer DHH in Weinheim – junges Paar sucht kreative Ideen!

    Hilfe bei Grundriss-Optimierung unserer DHH in Weinheim – junges Paar sucht kreative Ideen!: Hallo zusammen, 1. Wir sind: wir sind ein junges Paar und wollen uns für unsere Familie - 2 Erwachsene, 31 und 28 Jahre alt + 2 Kinder, 11Monate...
  2. Optimierung Warmwasserzapfzeiten , wie Zirku verlegen ?

    Optimierung Warmwasserzapfzeiten , wie Zirku verlegen ?: Hallo in die Runde.. in unserer Sanitärplanung sind wir nicht ganz glücklich mit den Warmwasserzapfzeiten... Daher wollte ich die Chance hier...
  3. Optimierung Grundriss EG

    Optimierung Grundriss EG: Hallo zusammen, als stiller Mitleser habe ich mich nun auch registriert und eröffne auch direkt ein neues Thema. Mein Name ist Eugen und ich bin...
  4. Grundriss und Ansichten EFH - Ideen zur Optimierung?

    Grundriss und Ansichten EFH - Ideen zur Optimierung?: Hallo liebe Bauexperten, bereits Anfang des Jahres hatte ich mein Debüt bei euch, es ging um Baugrenzen. Die damals erwähnte Basis für unsere...
  5. EFH 174m2 Grundriss - Optimierung?

    EFH 174m2 Grundriss - Optimierung?: Hallo an Alle, meine Freundin und ich sind gerade dabei, unser größtes Projekt anzugehen. :) Da wir beide Laien sind, würden wir uns über...