Stufen zwischen Kücher/Esszimmer und Wohnzimmer

Diskutiere Stufen zwischen Kücher/Esszimmer und Wohnzimmer im Architektur Allgemein Forum im Bereich Architektur; Wir sanieren ein Siedlungshaus aus den 60er Jahren mit Halbstöcken. Da wir gerne ebenerdig in den Garten gehen möchten, hat unser Architekt einen...

  1. dberti

    dberti

    Dabei seit:
    17.10.2025
    Beiträge:
    2
    Zustimmungen:
    0
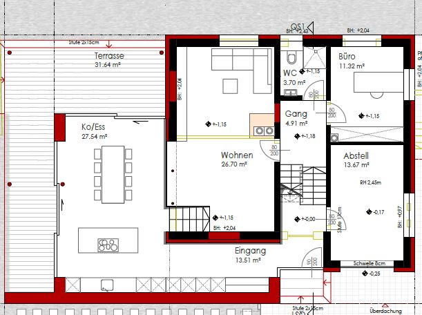
    Wir sanieren ein Siedlungshaus aus den 60er Jahren mit Halbstöcken. Da wir gerne ebenerdig in den Garten gehen möchten, hat unser Architekt einen ebenerdigen Zubau empfohlen (Eingang, Garderobe, Küche und Esszimmer). Mittels 7 Stufen wäre dann der erste Halbstock erreichbar. In diesem sind dann das Wohnzimmer, Klo und Büro untergebracht. Eine Außenwand des alten Hauses wird entfernt.

    Zuerst dachte ich das wird sehr cool, wie eine Art Galerie oder Split Level Haus. Nun bin ich mir nicht sicher, ob es evtl doch mühsam ist im Alltag. Ins Wohnzimmer kommt man eben durch 7 Stufen im Esszimmer. Die Wand wird entfernt, damit es "offen" ist.

    Wäre total froh über eure Meinungen!
     

    Anhänge:

    • frage.JPG
      frage.JPG
      Dateigröße:
      60,6 KB
      Aufrufe:
      148
  2. #2 petra345, 17.10.2025
    petra345

    petra345

    Dabei seit:
    17.02.2017
    Beiträge:
    5.207
    Zustimmungen:
    1.015
    Beruf:
    Ing. plus B. Eng.
    Ort:
    Rhein-Main-Gebiet
    Benutzertitelzusatz:
    Ing.(grad.) plus B. Eng.
    Geh´ die Stufen mal mit einem Rollator, Gehbock oder den Gehstützen!
     
  3. #3 Kriminelle, 17.10.2025
    Kriminelle

    Kriminelle

    Dabei seit:
    16.05.2013
    Beiträge:
    3.840
    Zustimmungen:
    2.163
    Beruf:
    .
    Ort:
    Niedersachsen
    Gilt diese Antwort auch hinsichtlich der Stufen zu den Schlafräumen??? Gilt diese Antwort bei jedem Haus mit mehr als eine Ebene? :mauer
    Dann hätte das Haus gar nicht gekauft oder gar gebaut werden dürfen. Wo gibt es denn hier ein erweitertes Problem? Das hat jetzt über 60 Jahre gute Dienste geleistet und den Bewohnern ein heim gegeben!
    Ich gehe mal davon aus, dass der TE keinen Rollator braucht. Und wenn es soweit sein sollte, dann gibt es Lösungen.
     
  4. dberti

    dberti

    Dabei seit:
    17.10.2025
    Beiträge:
    2
    Zustimmungen:
    0
    Ich denke auch, im sehr hohen Alter oder mit Gehhilfe ist das Haus ohnehin nicht geeignet. Meine Oma hat aber bis über 90 darin gewohnt (allerdings ohne Zubau).

    Meine Bedenken sind einfach nur, ob es uns mit der Zeit eventuell nerven könnte, dass der Wohn-Ess Bereich durch die Stufen getrennt ist. Und das eigentlich nur, weil wir einen ebenerdigen Zugang vom Esszimmer in den Garten wollten... was hat Prio, der Gartenzugang oder der Weg, den wir täglich öfters gehen. Darum wäre ich um eure Erfahrung oder Meinung froh...
     
  5. #5 VollNormal, 17.10.2025
    VollNormal

    VollNormal

    Dabei seit:
    20.11.2021
    Beiträge:
    4.230
    Zustimmungen:
    2.861
    Beruf:
    Bauingenieur
    Ort:
    Bochum
    Das kannst du für dich nur selber beantworten. Ich persönlich würde innerhalb der Wohnung keine zusätzlichen Stufen haben wollen und deshalb die neuen Räume auf dieselbe Höhe wie den Bestand setzen, aus der Terrasse einen Balkon machen und von diesem dann eine Treppe in den Garten führen lassen.
     
    driver55 und Netzer gefällt das.
  6. #6 Kriminelle, 17.10.2025
    Kriminelle

    Kriminelle

    Dabei seit:
    16.05.2013
    Beiträge:
    3.840
    Zustimmungen:
    2.163
    Beruf:
    .
    Ort:
    Niedersachsen
    siehe orangenes Forum!
     
  7. #7 driver55, 18.10.2025
    driver55

    driver55

    Dabei seit:
    22.02.2008
    Beiträge:
    6.933
    Zustimmungen:
    1.843
    Beruf:
    Dipl.-Ing.
    Ort:
    Pforzheim
    Immer diese doppelt-, dreifach-, vierfach-Fragen in Foren…
    Da musst du dich/euch fragen, nicht die Foren!
     
  8. #8 ichweisnix, 18.10.2025
    ichweisnix

    ichweisnix

    Dabei seit:
    21.11.2022
    Beiträge:
    1.926
    Zustimmungen:
    733
    Treppen halten jung. Mit 55 suchst du dir dann eine andere Bleibe.
     
Thema:

Stufen zwischen Kücher/Esszimmer und Wohnzimmer

Die Seite wird geladen...

Stufen zwischen Kücher/Esszimmer und Wohnzimmer - Ähnliche Themen

  1. Dachtreppe letzte Stufe zu niedrig

    Dachtreppe letzte Stufe zu niedrig: Hilfe! Die letzte Stufe zum Dachboden hat gerade so 1cm Höhe über der OSB-Platte. Dabei war dort eine FBH geplant. Jetzt wird der DB-Ausbau mit...
  2. Nasse Stufen und nasse Steine in der Einfahrt.

    Nasse Stufen und nasse Steine in der Einfahrt.: Hallo zusammen, vor ein paar Monaten wurde der Belag in meiner Einfahrt gelegt und die Treppenalnage zu meiner Haustüre gemacht. Und seitdem hab...
  3. Kellertreppe um eine Stufe erhöhen

    Kellertreppe um eine Stufe erhöhen: Hallo Leute, unsere Kellertreppe aus dem Bestand ragt uns leider etwas zu weit in unseren neuen Hausflur hinein. Schön wäre es daher, wenn wir...
  4. Ausbildung einer Stufe mit 26cm Höhe - Erfahrungen

    Ausbildung einer Stufe mit 26cm Höhe - Erfahrungen: Ich habe da bei meinem Sanierungsprojekt noch so ne kleine Aufgabenstellung, die im Laufe des Jahres ansteht, und bei der ich noch keine so...
  5. Womit Riss in Stufe/Bodensockel vor Terrassentür abdichten und überstreichen?

    Womit Riss in Stufe/Bodensockel vor Terrassentür abdichten und überstreichen?: Liebes Forum, ich möchte einen kleinen Riss in der Stufe/dem Bodensockel vor der Terrassetür abdichten und die Stufe überstreichen, um eine...