Tipps für Umgestaltung EG, Anbau oder Wintergarten?

Diskutiere Tipps für Umgestaltung EG, Anbau oder Wintergarten? im Architektur Allgemein Forum im Bereich Architektur; Hallo liebe Hausbesitzer, wir wohnen seit Oktober 19 in unserem neuen Haus, ein denkmalgeschütztes Reihenmittelhaus von 1924. Vor dem Kauf hatten...

  1. pstef

    pstef

    Dabei seit:
    05.07.2020
    Beiträge:
    3
    Zustimmungen:
    0
    Hallo liebe Hausbesitzer,

    wir wohnen seit Oktober 19 in unserem neuen Haus, ein denkmalgeschütztes Reihenmittelhaus von 1924.
    Vor dem Kauf hatten wir bereits geplant, dass wir das EG umgestalten wollen, da es ungenutzte Fläche gibt und die Küche zu klein für uns ist, dadurch, dass dort 3 Türen und 1 Fenster keine Fläche für Schränke bieten.

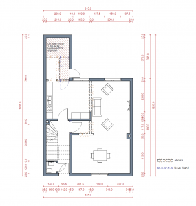
    Auf dem beigefügten Bild sieht man die derzeitige Aufteilung, die Wände die mit roten Kreuzen markiert sind, sind nach wie vor vorhanden. Das WZ ist von der Küche getrennt und so soll es auch bleiben. Wir möchten keinen offenen Wohn- und Essbereich, sondern am Liebsten eine Wohnküche. Nun ist es so, dass ein alter Anbau an der Küche grenzt, mit 2 Abstellräumen und einem Zugang zum Garten.

    Die 1. Überlegung war es, die 3 Abstellräume vom Anbau zu verbinden und zur Küche hin zu öffnen, sodass die Küche eine L-Form hat. Allerdings beträgt die Breite dieses Teil nur ca. 2m und unser Traum ist ein Wohnküche mit Kücheninsel. Dies wäre bei einer L-Form so nicht möglich, da die Eingangstür zur Küche an ungeeigneter Stelle steht. Die 2. Überlegung ist nun, den Anbau zu erweitern, entweder durch einen Wohn-Wintergarten (lohnt es sich bei einem Reihenmittelhaus?) oder einen normalen Anbau. Vielleicht wäre auch ein Eker ein Option? Zudem ist der Zugang von Baggern etc. und die Entsorgung von Bauschutt erschwert, da man als Reihenmittelhaus keinen direkten Zugang nach hinten hat.

    Bei der ganzen Umbau Entscheidung fragen wir uns nun, was das Optimale wäre. Und, ob es vielleicht sogar möglich wäre ein Gäste-WC im alten Anbau unterzubringen, da das derzeitige nur winzige 1qm groß ist.
    Wir wollen ungern mehr als 50.000 EUR dafür ausgeben und würden uns über jeden Tipp freuen. Vielleicht ist auch eine Realisierung einer Wohnküche mit Insel durch Verschiebung der Eingangstür zur Küche möglich? Fragen über Fragen. Wir sind derzeit sehr verwirrt und würden gerne eine endgültige Planung stehen haben, bevor wir es angehen.

    Vielen Dank vorab.
    Fam. Stef

    Abmessungen EG.PNG

    Abmessungen EG.PNG
     
  2. #2 Fabian Weber, 05.07.2020
    Fabian Weber

    Fabian Weber

    Dabei seit:
    03.04.2018
    Beiträge:
    16.320
    Zustimmungen:
    6.486
    Vielleicht So? Abmessungen EG.PNG
     
  3. pstef

    pstef

    Dabei seit:
    05.07.2020
    Beiträge:
    3
    Zustimmungen:
    0
    Hallo,

    vielen Dank! Aber so steht die Kücheninsel ja an 2 Wänden. Dabei ist ja das besondere daran, dass sie freisteht. Wäre aber leider allein wegen der Heizung vorm Fenster gar nicht möglich.

    VG,
    Stef
     
  4. #4 Fabian Weber, 05.07.2020
    Fabian Weber

    Fabian Weber

    Dabei seit:
    03.04.2018
    Beiträge:
    16.320
    Zustimmungen:
    6.486
    Naja die Insel steht nur an der Außenwand, das andere ist ein Schrank, aber den kannst Du ja weglassen und dann die Insel mittig stellen, dann kann man auch rumlaufen.

    Muss halt noch der Wandstummel weg.
     
  5. pstef

    pstef

    Dabei seit:
    05.07.2020
    Beiträge:
    3
    Zustimmungen:
    0
    Dafür ist es dort leider zu eng, die Wand zum Wohnzimmer soll ja bleiben wo sie ist.
    Danke trotzdem!
     
  6. #6 Fabian Weber, 05.07.2020
    Fabian Weber

    Fabian Weber

    Dabei seit:
    03.04.2018
    Beiträge:
    16.320
    Zustimmungen:
    6.486
    Warum soll denn dieser kleine Wandstummel bleiben?
     
  7. #7 driver55, 05.07.2020
    driver55

    driver55

    Dabei seit:
    22.02.2008
    Beiträge:
    6.892
    Zustimmungen:
    1.801
    Beruf:
    Dipl.-Ing.
    Ort:
    Pforzheim
    Hab’s 3 x gelesen und 5 x die Pläne angesehen....hm....
    3 Abstellräume im Anbau, die ins Hau integriert werden sollen? Wieviel qm sind es denn? Zeig das bitte mal separat und nicht alles in einem Plan mit vorher nachher...
     
  8. #8 JohnBirlo, 07.07.2020
    JohnBirlo

    JohnBirlo

    Dabei seit:
    28.05.2020
    Beiträge:
    1.232
    Zustimmungen:
    461
    Du schreibt von einem Denkmalgeschütztem Haus.... Darfste da überhaupt viel verändern?

    Im Übrigen könnte die Wand zwischen Esszimmer und Küche tragend sein. Ist das ein Holzständerhaus oder gemauert?
     
    simon84 gefällt das.
Thema:

Tipps für Umgestaltung EG, Anbau oder Wintergarten?

Die Seite wird geladen...

Tipps für Umgestaltung EG, Anbau oder Wintergarten? - Ähnliche Themen

  1. Treppe aus den 90er verkleiden - Tipps

    Treppe aus den 90er verkleiden - Tipps: Hallo zusammen, wir haben ein Haus gekauft und möchten nun die alte Metalltreppe optisch modernisieren. Ich plane zwei wesentliche Schritte in...
  2. KFW297 Förderung Tipps

    KFW297 Förderung Tipps: Hallo zusammen, ich baue ein Massivhaus nach dem KFW55 Standard. Hierzu würde ich gerne den KFW297er 100.000 Kredit in Anspruch nehmen. Das...
  3. Betonplatte hinterm Haus – Pfütze, schleifen & abdichten – Tipps gesucht

    Betonplatte hinterm Haus – Pfütze, schleifen & abdichten – Tipps gesucht: Hallo zusammen, ich habe hinter dem Haus (direkt am Anschluss zum Haus) eine Gartenmauer mit einer etwa 40 cm breiten Betonplatte. Diese Platte...
  4. Tipps zum Grundriss - Änderungen

    Tipps zum Grundriss - Änderungen: Hallo, wir haben uns von einer bekannten Baufirma in unserer Nähe einen Entwurf für unser zukünftiges Bauvorhaben anfertigen lassen und diesen...
  5. Aufbau eines Duschpodests mit Duschboard auf Dachboden – Tipps gesucht

    Aufbau eines Duschpodests mit Duschboard auf Dachboden – Tipps gesucht: Hallo zusammen, ich plane gerade den Einbau einer Dusche auf meinem Dachboden und bin mir unsicher, wie man den Aufbau am besten realisieren...