Tragende Wände im DG? Welche Dachkonstruktion liegt hier vor?

Diskutiere Tragende Wände im DG? Welche Dachkonstruktion liegt hier vor? im Architektur Allgemein Forum im Bereich Architektur; Hallo, wir sind Besitzer von 2 Wohneinheiten (1.OG und DG) in einem 3 Familienhaus (BJ1970), wobei wir selbst die Wohnung im 1.OG (110 qm mit...

  1. #1 Dennis84, 09.10.2020
    Dennis84

    Dennis84

    Dabei seit:
    11.09.2013
    Beiträge:
    47
    Zustimmungen:
    0
    Beruf:
    Ingenieur
    Ort:
    Bürstadt
    Hallo,

    wir sind Besitzer von 2 Wohneinheiten (1.OG und DG) in einem 3 Familienhaus (BJ1970), wobei wir selbst die Wohnung im 1.OG (110 qm mit Balkon) bewohnen.

    Die Wohnung im DG ist aktuell noch vermietet, allerdings planen wir in den kommenden 2-3 Jahren die beiden Wohneinheiten durch eine Treppe zusammen zu legen. Daher machen wir uns auch schon Gedanken zur Gestaltung und Aufteilung der Dachgeschosswohnung.

    Zunächst stellt sich uns die Frage:
    Haben wir tragende Wände im DG? Wie ich verstanden habe hängt das auch von der Art der Dachkonstruktion ab. Beim Pfettendach könnte es eher problematisch werden, ein Kehlbalkendach ist eher unproblematisch. Soweit richtig?

    Zum Glück habe ich einige Fotos vom Vorbesitzer zum Zeitpunkt der Renovierung 2005 auftreiben können.

    Ich vermute ja, dass es sich um ein Kehlbalkendach handelt. Somit könnten doch die Wände ohne größere Probleme entfernt werden? Geplant hätte ich dann mit Trockenbauwänden und der komplette Aufbau sollte etwas luftiger werden.

    Vielleicht könnt ihr mal einen Blick darauf werfen und mir weiterhelfen...

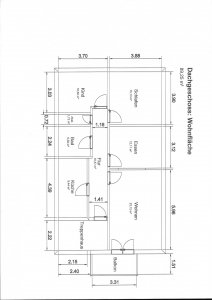
    Habe auch mal einen Plan vom Dachgeschoss mit beigefügt, der Durchbruch sollte dann im Esszimmer erfolgen, wobei das aufgrund des schmalen Flurs (Aufteilung darunter liegende Wohnung ähnlich) recht knapp werden könnte.

    Danke schonmal im Voraus!

    DSC02889.JPG DSC02910.JPG DSC02911.JPG Wohnfläche DG.jpg
     
  2. #2 petra345, 10.10.2020
    petra345

    petra345

    Dabei seit:
    17.02.2017
    Beiträge:
    5.186
    Zustimmungen:
    1.004
    Beruf:
    Ing. plus B. Eng.
    Ort:
    Rhein-Main-Gebiet
    Benutzertitelzusatz:
    Ing.(grad.) plus B. Eng.
    Die waagrechten Hölzer sind noch kein Kehlbalkendach.

    Wie ist das Fußende der Sparren ausgebildet?
    Wie ist das Firstende der Sparren ausgebildet?

    Der Wechsel am Dachfenster ist ein deutlicher Hinweis gegen ein Kehlbalkendach!!

    Also das wird nichts mit Wände rausreißen.
     
    11ant gefällt das.
  3. #3 Dennis84, 10.10.2020
    Zuletzt bearbeitet: 10.10.2020
    Dennis84

    Dennis84

    Dabei seit:
    11.09.2013
    Beiträge:
    47
    Zustimmungen:
    0
    Beruf:
    Ingenieur
    Ort:
    Bürstadt
    Hallo Petra,

    erstmal vielen Dank für die Rückmeldung. Zu gegebenem Zeitpunkt werden wir natürlich auch noch einen Architekten hinzuziehen, ist jetzt erstmal rein informativ für die Vorabplanung. Es sollen auch nicht alle Wände rausgerissen werden, die Raumaufteilung soll nur geändert und etwas luftiger gestaltet werden.

    Wird denn bei Kehlbalkendächern normalerweise kein Wechsel verbaut? Dachte das wäre dort ebenfalls vorgesehen.

    Was mich wundert: Auf den alten Archivfotos haben die Wände ja auch keine Verbindung mit dem Dach, da wurde am Ende einfach nur beigespachtelt. Die Wände sind auch extrem dünn, muss nochmal nachmessen aber mehr als 11,5er Steine sind das nicht. Aus diesen Gründen habe ich mich halt gefragt, ob diese überhaupt eine tragende Funktion haben können.

    Ich habe mal noch Fotos vom First (Dachboden) rausgesucht, vom Fußende habe ich leider keine richtigen Aufnahmen. Vielleicht lässt sich damit noch eine bessere Aussage machen.

    PS:
    Leider liegen mir zum Gebäude keine Pläne vor... wie könnte ich denn noch drankommen? Mal beim Amtsgericht nachfragen? Dort liegt ja die Teilungserklärung... Oder ab zum Bauamt?

    Danke!
     

    Anhänge:

  4. #4 petra345, 10.10.2020
    petra345

    petra345

    Dabei seit:
    17.02.2017
    Beiträge:
    5.186
    Zustimmungen:
    1.004
    Beruf:
    Ing. plus B. Eng.
    Ort:
    Rhein-Main-Gebiet
    Benutzertitelzusatz:
    Ing.(grad.) plus B. Eng.
    Ganz kurz, ich muß weg.

    Die Pläne sollen auf dem Bauamt liegen.

    Bei Aachen hat man Wohnhäuser mit 4 Stockwerken zur Demonstration mit ausschließlich 11,5 cm Wände aus KS gebaut.
     
  5. #5 petra345, 12.10.2020
    petra345

    petra345

    Dabei seit:
    17.02.2017
    Beiträge:
    5.186
    Zustimmungen:
    1.004
    Beruf:
    Ing. plus B. Eng.
    Ort:
    Rhein-Main-Gebiet
    Benutzertitelzusatz:
    Ing.(grad.) plus B. Eng.
    Bei einem wirklichen Kehlbalkendach hat man sehr hohe Druckkräfte in den Sparren.

    Da ist ein Wechsel schwierig bzw unmöglich.
     
  6. #6 Gast 85175, 13.10.2020
    Gast 85175

    Gast 85175 Gast

    Es sieht jedenfalls nach einem Sparrendach aus. Wie auch immer, ich sehe auf den Bildern nur Gipsdielenwände und wenn die tragend sind, dann ist sowieso irgendwas grandios schief gelaufen, dazu sind die nämlich nicht geeignet, das sind immer nicht tragende Trennwände. Aber wir sind da halt im Bestand und die Wege der Vorbesitzer sind manchmal unergründlich. Wieso zwischen Kehlen und Gipsdielenwänden „Unterlagen“ zu sehen sind verstehe ich jedenfalls noch nicht ganz, ist aber eigentlich auch egal, weil wenn an den Stellen statisch wirksame Unterstützungen drin sind, dann ist da schon wieder was grandios schief gelaufen.

    Ich sehe da nichts was irgendwas tragen dürfte, ob es nicht doch was trägt sehe ich aber nicht, hab halt keinen ferntelepathischen Röntgenblick...
     
    Dennis84 und simon84 gefällt das.
  7. #7 Dennis84, 13.10.2020
    Dennis84

    Dennis84

    Dabei seit:
    11.09.2013
    Beiträge:
    47
    Zustimmungen:
    0
    Beruf:
    Ingenieur
    Ort:
    Bürstadt
    Danke fürs Feedback :28:

    Das mit den Wänden habe ich mir ehrlich gesagt auch so gedacht... Aber ich habe mittlerweile auch den damaligen Architekten ausfindig machen können. Da frage ich auch mal bez. Plänen an.

    Das mit den Unterlagen bzw. den Keilen hat mich ebenfalls stutzig gemacht. Eine tragende Funktion können die ja auf keinen Fall haben, zumal bei manchen Balken unterfüttert wurde und bei anderen wiederum nicht.
     
Thema: Tragende Wände im DG? Welche Dachkonstruktion liegt hier vor?
Besucher kamen mit folgenden Suchen
  1. Tragende wände

Die Seite wird geladen...

Tragende Wände im DG? Welche Dachkonstruktion liegt hier vor? - Ähnliche Themen

  1. Tragende Wand

    Tragende Wand: Hallo zusammen, anbei der Grundriss einer Doppelhaushälfte Baujahr 2008. Die rot eingezeichneten Wände hat die Voreigentümerin einbauen lassen...
  2. Rissbildung nicht-tragende Wand

    Rissbildung nicht-tragende Wand: Hallo zusammen, Wollte die Frage eigentlich schon länger mal stellen. Ich habe einen längeren Riss in einer Ytongwand (nichttragend). Ich habe...
  3. 11er Mauer verstärken um eine tragende Wand zu erhalten

    11er Mauer verstärken um eine tragende Wand zu erhalten: Hallo zusammen, das Haus meiner Eltern wurde 1975 gebaut. Eine Wand, die sich vom Keller bis unter den Dachstuhl zieht, ist als 11er Mauer...
  4. Tragende Wände? - Tür und Kernbohrung

    Tragende Wände? - Tür und Kernbohrung: Hallo, vorab: Wir sind langjährige Mieter (seit 18 Jahren), keine Eigentümer. Bitte keine Rügen oder Belehrungen, die Einsicht ist da, dass wir...
  5. Entfernung Wand + Kamin - tragend?

    Entfernung Wand + Kamin - tragend?: Hallo zusammen, bevor ich einen Statiker hinzuziehe - das werde ich auf jeden Fall tun, ich möchte mir nur schonmal Gedanken machen bzgl...