Traufhöhe

Diskutiere Traufhöhe im Architektur Allgemein Forum im Bereich Architektur; oberhalb der zwei vollgeschosse kommt ein staffelgeschoss mit satteldach, zwischen staffelgeschoss und satteldach eine eingezogene decke, sodass...

  1. #21 Hohmann, 06.07.2008
    Hohmann

    Hohmann

    Dabei seit:
    19.06.2008
    Beiträge:
    24
    Zustimmungen:
    0
    Beruf:
    Juristin
    Ort:
    Wiesbaden
    oberhalb der zwei vollgeschosse kommt ein staffelgeschoss mit satteldach, zwischen staffelgeschoss und satteldach eine eingezogene decke, sodass das dachgeschoss nicht bewohnbar ist, mir würde es aber lieber sein, wenn zwischen staffelgeschoss und dach keine decke wäre, ich könnte auch mal die pläne reinstellen, wenn ihr wollt.
     
  2. Julius

    Julius

    Dabei seit:
    25.03.2004
    Beiträge:
    23.204
    Zustimmungen:
    10
    Beruf:
    Kabelaffe
    Ort:
    Franken
    Benutzertitelzusatz:
    Werbung hier erfolgt gegen meinen Willen!
    Ist vielleicht besser. Denn Deine Beschreibung hab ich jetzt nicht verstanden...
     
  3. #23 VolkerKugel (†), 06.07.2008
    VolkerKugel (†)

    VolkerKugel (†)

    Dabei seit:
    11.01.2006
    Beiträge:
    6.966
    Zustimmungen:
    4
    Beruf:
    Architekt
    Ort:
    63110 Rodgau
    Benutzertitelzusatz:
    Architekt . Nachweisberechtigter für Wärmeschutz
    Ich glaub´ ich weiß, was sie meint ...

    ... auf das zweite Vollgeschoss kommt ein zurückgesetztes weiteres Geschoss mit voller Höhe (aber nur knapp 2/3 der Fläche des darunterliegenden Vollgeschosses) und darauf ein Satteldach.
    Theoretisch kann der Dachraum (ja auch wieder unter 2/3) auch noch ausgebaut werden.

    Hamm wer alles schon gemacht. Und was hat die Stadtplanung gemault (und die Frankfurter sind härtere Brocken als die Wiesbadener :konfusius ).

    [​IMG] :lock
     
  4. #24 Hohmann, 06.07.2008
    Hohmann

    Hohmann

    Dabei seit:
    19.06.2008
    Beiträge:
    24
    Zustimmungen:
    0
    Beruf:
    Juristin
    Ort:
    Wiesbaden
    ja genau! Ursprünglich war das Staffelgeschos mit einer höhe von nur 2,10 vorgesehen, weil das dach was sich anschliesst als satteldache ohne decke geplant war (als art dachterasse) so hätten wir auch eine schöne raumhöhe, da aber das planungsamt der auffassung war das sei kein staffelgeschoss haben wir die decke eingezogen jedoch die raumhöhe auf 2,40 hochgezogen, dass haus ist jetzt also um 30 cm höher. - aber definitiv immer noch kein vollgeschoss. oh jee, ich glaube ich lade mal den grundriss hoch, muss ich aber erst noch einscannen, bitte in der zwischenzeit nicht verschwinden!
     
  5. #25 VolkerKugel (†), 06.07.2008
    VolkerKugel (†)

    VolkerKugel (†)

    Dabei seit:
    11.01.2006
    Beiträge:
    6.966
    Zustimmungen:
    4
    Beruf:
    Architekt
    Ort:
    63110 Rodgau
    Benutzertitelzusatz:
    Architekt . Nachweisberechtigter für Wärmeschutz
    Die Höhe ...

    ... spielt doch bei einem Staffelgeschoss überhaupt keine Rolle!

    Allein maßgebend ist, dass die Grundfläche mit einer Höhe von 2,30m nicht mehr als 3/4 (sorry, die 2/3 von vorhin waren noch aus der alten HBO) des darunterliegenden Geschosses hat,
    Oder: Wenn das Staffelgeschoss nur knapp 3/4 der Grundfläche hat, dann könnt Ihr die Räume so hoch machen wie Ihr wollt.

    Gib´ denen doch mal die HBO zu lesen :mauer (§ 2 (4) Satz 4).
     
  6. #26 Hohmann, 06.07.2008
    Hohmann

    Hohmann

    Dabei seit:
    19.06.2008
    Beiträge:
    24
    Zustimmungen:
    0
    Beruf:
    Juristin
    Ort:
    Wiesbaden
    Danke für die Antwort Volker. Da Du aus der Gegend bist, scheinst du die Damen und Herren aus Wiesbaden zu kennen. Was mich bei der ganzen Geschichte auch erstaunt hat, dass die Dame sofort vorschlug mit dem Architekten vorbeizukommen und einen neuen Entwurf zu planen, so nach dem Motto: kommt mal vorbei und ich sage euch dann was ich gerne hätte. wenn es dir nichts ausmachen würde, dann lade ich heute abend mal die entwürfe vor, es würde mir wirklich weiterhelfen, wenn ein objektiver dritter was dazu sagen könnte.
     
  7. juwido

    juwido

    Dabei seit:
    15.11.2006
    Beiträge:
    326
    Zustimmungen:
    4
    Beruf:
    Maschinenbauingenieur
    Ort:
    Dortmund
    Also, je nach dem, wie die Vorgabe "2 Vollgeschosse + Dach" im B-Plan gemacht ist, geht das zusätzliche Staffelgeschoss möglicherweise schon etwas über die Vorgabe hinaus und sollte dann ev. nicht zu offensichtlich werden........
    Viel Glück beim Verhandeln ............juwido
     
  8. #28 VolkerKugel (†), 07.07.2008
    VolkerKugel (†)

    VolkerKugel (†)

    Dabei seit:
    11.01.2006
    Beiträge:
    6.966
    Zustimmungen:
    4
    Beruf:
    Architekt
    Ort:
    63110 Rodgau
    Benutzertitelzusatz:
    Architekt . Nachweisberechtigter für Wärmeschutz
    Nein, lieber juwido ...

    ... das Staffelgeschoss darf nur kein Vollgeschoss nach der HBO-Definition sein.
    Ansonsten sind der planerischen Krativität keine Grenzen gesetzt und das Mädel von der Stadtplanung kann nur einschreiten, wenn das Ergebnis grob verunstaltend ist.

    Die fehlende Festlegung von First- und Traufhöhen im B-Plan zeigt, dass hier bewusst ein gestalterischer Spielraum vorgesehen ist.
    (So würde ich jedenfalls u.a. argumentieren :shades .)
     
  9. #29 Hohmann, 07.07.2008
    Hohmann

    Hohmann

    Dabei seit:
    19.06.2008
    Beiträge:
    24
    Zustimmungen:
    0
    Beruf:
    Juristin
    Ort:
    Wiesbaden
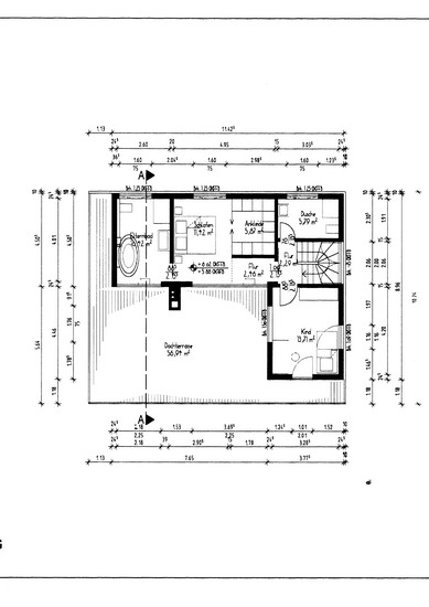
    Pläne eingestellt

    so, nun habe ich es geschafft, die Pläne sind online:
    B-Plan sagt: 2 Vollgeschosse, kein Drempel, Grz 0,4 Gfz 0,8
    habe heute noch mal bei der Dame angerufen und nochmal um konkrete Aussage zu bekommen warum das nicht gehen soll. Ihre Aussage: Sie gibt mir keine Auskunft mehr, sie habe schon etliche mal mit mir bzw, mit dem Architekten gesprochen (2mal) und habe jetzt auch die Akten nicht da!!!
    Ich war total von den Socken.




    [​IMG][​IMG][​IMG][​IMG]
     
  10. #30 VolkerKugel (†), 07.07.2008
    VolkerKugel (†)

    VolkerKugel (†)

    Dabei seit:
    11.01.2006
    Beiträge:
    6.966
    Zustimmungen:
    4
    Beruf:
    Architekt
    Ort:
    63110 Rodgau
    Benutzertitelzusatz:
    Architekt . Nachweisberechtigter für Wärmeschutz
    Uups ...

    ... irgendwie übersehen :mad: .

    ... was steht denn dazu wortwörtlich im B-Plan?
     
  11. sepp

    sepp

    Dabei seit:
    12.11.2004
    Beiträge:
    4.217
    Zustimmungen:
    5
    Beruf:
    architekt
    Ort:
    Saarland
    ???
     
  12. #32 Hohmann, 07.07.2008
    Hohmann

    Hohmann

    Dabei seit:
    19.06.2008
    Beiträge:
    24
    Zustimmungen:
    0
    Beruf:
    Juristin
    Ort:
    Wiesbaden
    Dachform Satteldach, Neigung 20-35
    Bei zweigeschossige Bebauung sind Drempel, kniestöcke und Zwerchgiebel nicht zulässig.Keine Aussage zur Höhe, auch in der Begründung nicht. Hilft das weiter?
     
  13. #33 Baufuchs, 07.07.2008
    Baufuchs

    Baufuchs Gast

    Schlampig

    aufgesteller B-Plan.
    Ich ahne schon, wie die Ablehnung begründet wird.
     
  14. #34 Hohmann, 07.07.2008
    Hohmann

    Hohmann

    Dabei seit:
    19.06.2008
    Beiträge:
    24
    Zustimmungen:
    0
    Beruf:
    Juristin
    Ort:
    Wiesbaden
    das mag ja sein, aber weiter hilft mir das nicht. Der Plan ist aus dem Jahr 1968
     
  15. Baumal

    Baumal

    Dabei seit:
    02.08.2007
    Beiträge:
    16.077
    Zustimmungen:
    8
    Beruf:
    Architekt
    Ort:
    Ravensburg
    irgendwie, muß man ihnen auch immer alles aus der nase ziehen. :motz

    das ist ja nu nicht zweigeschossig mit satteldach, ohne drempel
     
  16. #36 Hohmann, 07.07.2008
    Hohmann

    Hohmann

    Dabei seit:
    19.06.2008
    Beiträge:
    24
    Zustimmungen:
    0
    Beruf:
    Juristin
    Ort:
    Wiesbaden
    Sorry, war nicht die Absicht. Aber aus den Plänen kann man jetzt doch alles gut erkennen. Meine Frage ist auch, brauche ich die Decke zwischen Staffelgeschoss und Decke? Oder anders herum gefragt, habe ich auch ein Staffelgeschoss wenn ich die Höhe des Geschosses auf 2,12 reduziere und die Decke wegnehme, sodass man im Staffelgeschoss bis zur Decke sehen kann?
     
  17. Baumal

    Baumal

    Dabei seit:
    02.08.2007
    Beiträge:
    16.077
    Zustimmungen:
    8
    Beruf:
    Architekt
    Ort:
    Ravensburg
    die decke brauchen sie nicht, dann könnten sie bis unter dach sehen.

    ändert aber an der tatsache nichts, dass sie zwei vollgeschosse und
    ein sattelldach, mit ziemlich hohen drempel haben.
     
  18. #38 Baufuchs, 07.07.2008
    Baufuchs

    Baufuchs Gast

    So

    wirds laufen mit der Ablehnung...
     
  19. Baumal

    Baumal

    Dabei seit:
    02.08.2007
    Beiträge:
    16.077
    Zustimmungen:
    8
    Beruf:
    Architekt
    Ort:
    Ravensburg
    die decke über OG könnte man noch weg lassen, dann passt
    es auch wieder mit dem staffelgeschoss, welches keins mehr ist.

    das ist aber kein schöner wohnen... :)
     
Thema:

Traufhöhe

Die Seite wird geladen...

Traufhöhe - Ähnliche Themen

  1. Bezugsebene Traufhöhe

    Bezugsebene Traufhöhe: Hallo zusammen, frisch angemeldet, um eine Frage zu stellen, die bei einiger Recherche nicht wirklich gelöst wurde, oder von mir einfach...
  2. Min. Traufhöhe von 5,5m - Eingeschossiger Anbau erlaubt?

    Min. Traufhöhe von 5,5m - Eingeschossiger Anbau erlaubt?: Moin zusammen, bei diesem Bebauungsplan (https://www.schermbeck.de/system/files/2022-05/Bebauungsplan%2055%20Wohnbebauung%20Spechort%20Plan.pdf)...
  3. Bebauungsplan (4m Traufhöhe, 38 grad Sattel)

    Bebauungsplan (4m Traufhöhe, 38 grad Sattel): Hi, Ich überlege ein Grundstück zu kaufen, dass folgende Informationen im Bebaungsplan enthält (NRW): Vollgeschossanzahl: 1 Maximale Traufhöhe:...
  4. Bebauungsplan (Rückfrage zur Traufhöhe / Nutzung eines Dachkranz)

    Bebauungsplan (Rückfrage zur Traufhöhe / Nutzung eines Dachkranz): Hallo zusammen, wir sind gerade dabei ein Grundstück kaufen. Der Bebauungsplan gibt folgendes vor: TH <=4,5m, FH <= 9,5m, OK < =7m, SH <= 0,5m,...
  5. Flachdach, Pultdach und Traufhöhe

    Flachdach, Pultdach und Traufhöhe: Einen guten Abend allerseits, ich bin neu hier und habe die letzten Stunden alles gelesen, was ich zu dem Thema finden konnte. Ich habe...