Umbau Grundriss zum Zweifamilienhaus

Diskutiere Umbau Grundriss zum Zweifamilienhaus im Architektur Allgemein Forum im Bereich Architektur; Guten Tag, Wir haben kürzlich ein Haus aus dem Baujahr 1932 gekauft und möchten nun ein paar Veränderungen im Grundriss vornehmen. Aktuell ist...

  1. #1 Frank32, 24.04.2020
    Zuletzt bearbeitet: 24.04.2020
    Frank32

    Frank32

    Dabei seit:
    11.04.2020
    Beiträge:
    11
    Zustimmungen:
    0
    Guten Tag,

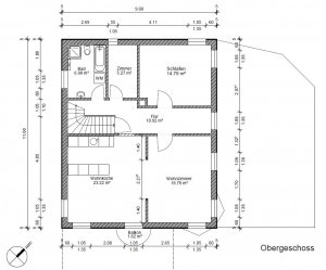
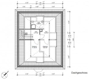
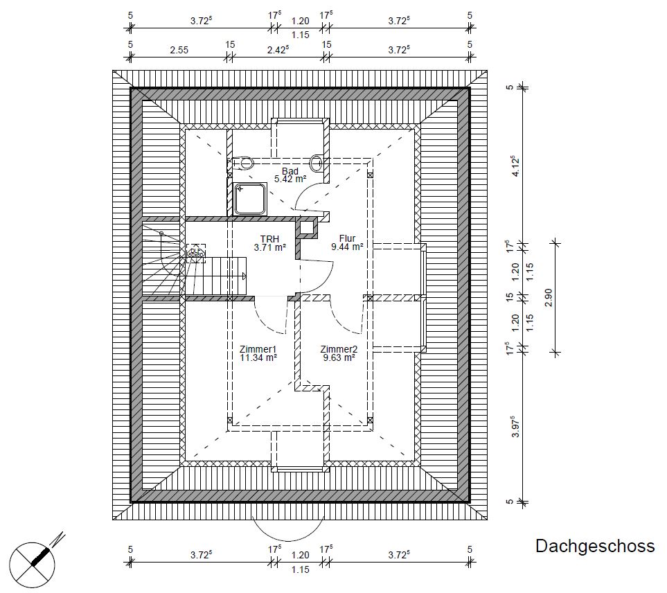
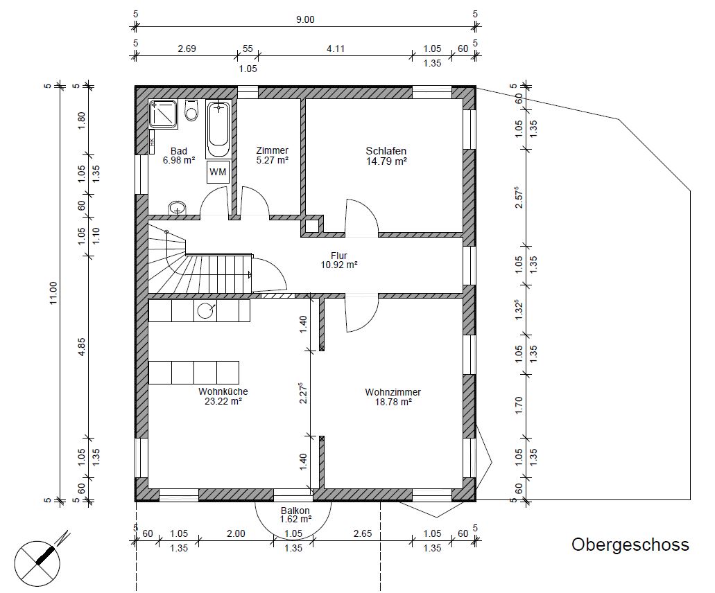
    Wir haben kürzlich ein Haus aus dem Baujahr 1932 gekauft und möchten nun ein paar Veränderungen im Grundriss vornehmen. Aktuell ist das komplette Haus für nur eine Wohneinheit vorgesehen.

    Als Große Umbaumaßnahme ist ein Ausbau des Dachgeschosses geplant. Der aktuelle Zustand ist hauptsächlich noch aus der Entstehungszeit und damit sanierungsbedürftig. Es soll eine Dämmung in das Dach installiert werden und neu eingedeckt werden. Als kostensteigender Faktor für eine Wohnraumnutzung kommen natürlich die Gauben sowie der Innenausbau dazu.

    Mit einer Wohnfläche von insgeamt ca. 200 qm ist das Haus für uns (3 Personen) zu groß. Wir würden gerne das Erdgeschoss vom restlichen Bereich abtrennen um somit zwei separate Wohneinheiten zu bekommen. Das EG soll zunächst vermietet werden. Vermutlich zieht dort jedoch mittelfristig ein Elternteil und langfristig wir selbst ein. Wir selbst würden vorher das 1. OG + DG bewohnen, sowie den Keller für uns nutzen wollen.

    Ich finde den Grundriss aktuell auch nicht optimal gelöst. Das Problem ist hauptsächlich die Raumaufteilung im Erdgeschoss. Die Schwierigkeit besteht hier darin das Kellergeschoss weiterhin dem Treppenhaus, und damit auch dem Obergeschoss, zugänglich zu machen. Wenn man den Flur bis zum Kellereingang verlängert hat man das Prblem mit den Durchgangszimmers erledigt. Weiterhin finde ich es problematisch, dass das Schlafzimmer im EG unter der Küche des OG liegt. Ich würde es bevorzugen, wenn das EG die gleiche Raumaufteilung wie das OG hätte. Das Problem ist dann nur, dass man durch das Schlafzimmer in das Bad müsste.

    Wie ist eure Meinung dazu?
     

    Anhänge:

    • EG.JPG
      EG.JPG
      Dateigröße:
      119,3 KB
      Aufrufe:
      357
    • OG.JPG
      OG.JPG
      Dateigröße:
      100,9 KB
      Aufrufe:
      307
    • DG.JPG
      DG.JPG
      Dateigröße:
      144,7 KB
      Aufrufe:
      317
  2. #2 jodler2014, 24.04.2020
    jodler2014

    jodler2014

    Dabei seit:
    20.12.2014
    Beiträge:
    3.907
    Zustimmungen:
    543
    Beruf:
    Angestellter
    Ort:
    RP
    Da brauche ich einen Schnitt und echte Schlaumeier bauchen dafür einen Termin der Baustelle...
     
  3. #3 Wieland, 26.05.2020
    Wieland

    Wieland

    Dabei seit:
    06.10.2012
    Beiträge:
    649
    Zustimmungen:
    127
    Beruf:
    Maurer u. Stahlbetonbaumeister
    Ort:
    Bürstadt
    Benutzertitelzusatz:
    Maurer und Stahlbetonbaumeister
    Sofern Genehmigungsfähig ? Treppenhaus rauswerfen,Decken schließen. Und neu anbauen.
     
    simon84 gefällt das.
Thema: Umbau Grundriss zum Zweifamilienhaus
Besucher kamen mit folgenden Suchen
  1. wie hoch ist ein haus mit 2 vollgeschossen

Die Seite wird geladen...

Umbau Grundriss zum Zweifamilienhaus - Ähnliche Themen

  1. Haus BJ'90 übernehmen / Umbau / Ideen / Grundriss

    Haus BJ'90 übernehmen / Umbau / Ideen / Grundriss: Hallo zusammen, ich hab hier im Forum schon ganz viel gelesen und traue mich nun meinen eigenen Fall vorzustellen. Bei uns (2 Erwachsene und...
  2. Ideen Grundriss - großer Umbau/Sanierung

    Ideen Grundriss - großer Umbau/Sanierung: Hallo Zusammen, wir haben ein Grundstück, 890 qm groß in Regensburg. Darauf befindet sich ein 2 Familienhaus (Wohnung EG, Wohnung 1. OG,...
  3. Umbau Erdgeschoss - Meinung zum offenen Grundriss

    Umbau Erdgeschoss - Meinung zum offenen Grundriss: Nach Kauf eines älteren Reihenhauses haben wir einen Architekten mit der Planung des aktuellen sowie eines alternativen Grundrisses des...
  4. Umbau Werkstatt zu Wohngebäude -> Raumaufteilung/Grundrisse

    Umbau Werkstatt zu Wohngebäude -> Raumaufteilung/Grundrisse: Guten Tag zusammen, mein Name ist Michael, ich komme aus dem nördlichen Großraum München und bin neu hier im Forum. Demnächst möchte ich ein...
  5. Schwieriger Grundriss mit Durchgangszimmern - Umbau-Ideen bitte! Danke!

    Schwieriger Grundriss mit Durchgangszimmern - Umbau-Ideen bitte! Danke!: Guten Tag zusammen, ich habe ein Haus gekauft, das aus einem ehemaligen Reihenendhaus (Bj 1958) und einem fast ebenso breiten Anbau (Bj. 1978)...