Umbau Raumaufteilung, Feuchteschäden, altes Schwimmbad als Wohnraum

Diskutiere Umbau Raumaufteilung, Feuchteschäden, altes Schwimmbad als Wohnraum im Architektur Allgemein Forum im Bereich Architektur; Hallo, wir überlegen ein freistehendes Haus zu kaufen allerdings wären hier einige Umbauarbeiten nötig. Das Haus liegt praktisch an einem...

  1. Anonym

    Anonym

    Dabei seit:
    17.01.2015
    Beiträge:
    37
    Zustimmungen:
    1
    Beruf:
    Kfm.
    Ort:
    Bremen
    Hallo,

    wir überlegen ein freistehendes Haus zu kaufen allerdings wären hier einige Umbauarbeiten nötig.
    Das Haus liegt praktisch an einem kleinen Hang, auf der Südseite ist das Grundstück ebenerdig auf der Nordseite guckt der Keller ca. 1 m aus der Erde.

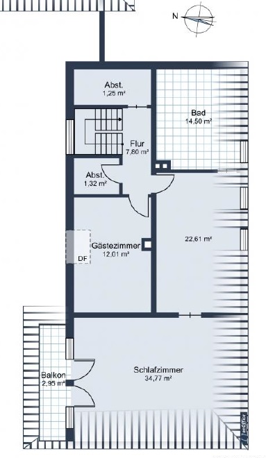
    Punkt 1: Drittes Schlafzimmer
    Hauptsächlich geht es erstmal darum wie man am einfachsten ein drittes Schlafzimmer als nicht durchgangszimmer herstellen könnte.
    Im Dachgeschoss gibt es zwar ein großes Eltern Schlafzimmer allerdings dreiseitig mit Dachschräge und uns fällt einfach nicht ein wie man einen Flur ohne riesige Wege gestalten kann.
    Alle drei Schlafzimmer sollten möglichst auf einer Ebene liegen. Habt Ihr da Ideen?

    Punkt 3: Schwimmbad als Wohnraum nutzen
    Es gibt einen altes Schwimmbad was saniert werden müsste. Dieses möchten wir als Wohnraum nutzen wie ist noch unbekannt evtl da Wohnzimmer vergrößern und ein Gäste/Schlafzimmer erstellen.
    Wie kann man kostengünstig eine Decke einziehen? Holzbalken? Nachträgliche Betondecke? Sollte man einen Schacht einbauen um alle Jahre mal zu schauen ob dort alles in Ordnung ist?

    Vielleicht hättet Ihr noch für uns Ideen? Unbenannt4.jpg Unbenannt.jpg Unbenannt2.jpg Unbenannt3.jpg
     
  2. #2 Gast943916, 21.02.2017
    Gast943916

    Gast943916 Gast

    das bedarf einer korrekten Planung mit vorheriger Bestandsaufnahme, dafür gibt es speziell ausgebildete Leute, nennt sich Architekt, der das aber nicht für lau macht....

     
  3. am1003

    am1003

    Dabei seit:
    30.11.2015
    Beiträge:
    1.678
    Zustimmungen:
    412
    Beruf:
    Installateur
    Ort:
    Spreenhagen, Brandenburg
    Der TE fragte nicht nach Detailplanung, sondern nach Ideen.

    Gesendet von meinem GT-I9505 mit Tapatalk
     
  4. #4 Andybaut, 24.02.2017
    Andybaut

    Andybaut

    Dabei seit:
    02.04.2015
    Beiträge:
    5.127
    Zustimmungen:
    329
    Beruf:
    Architekt
    Ort:
    Baden-Württemberg
    also kostengünstig und auch nicht federnd wie eine holzbalkendecke ist sicher
    das ganze mit Schotter als verlorene Schalung auffüllen, Anschlusseisen in die Deckenplatte
    und eine Betondecke einziehen.

    Dafür ist aber ein Statiker hinzuzuziehen, der das ganze auf Umsetzbarkeit prüft.
     
Thema: Umbau Raumaufteilung, Feuchteschäden, altes Schwimmbad als Wohnraum
Besucher kamen mit folgenden Suchen
  1. schwimmbad umfunktionieren

    ,
  2. schwimmbad umbauen wohnraum

    ,
  3. Altes Schwimmbad umfunktionieren

    ,
  4. Altes Schwimmbad als wohnraum,
  5. Nutzungsänderung Schwimmbad in Wohnraum,
  6. hallenbad als wohnraum umbauen,
  7. schwimmbad innen umbauen wohnraum kosten,
  8. schwimmbad im haus zu wohnraum umbau,
  9. Nutzung altes schwimmbad haus ,
  10. altes schwimmbad ideen,
  11. schwimmbad in Wohnraum umbauen,
  12. garage in wohnraum umwandeln grundriss,
  13. schwimmbad umbau wohnung,
  14. altes schwimmbad umbauen
Die Seite wird geladen...

Umbau Raumaufteilung, Feuchteschäden, altes Schwimmbad als Wohnraum - Ähnliche Themen

  1. Umbau eines Stockwerks

    Umbau eines Stockwerks: Hallo, wir planen aus 2 Räumen 3 zu machen: [ATTACH] Die Dicken Mauern außenrum sind die Außenwände und 24 cm Dick. Die dünnen Wände sind aus...
  2. Tür zum Ölraum umbauen und gestank loswerden

    Tür zum Ölraum umbauen und gestank loswerden: nach dem Heizungstausch von Öl auf Wärmepumpe möchte ich den Öl Lagerraum umbauen. Der Raum stinkt natürlich extrem nach Öl und liegt im...
  3. Bitte um fachliche Begutachtung: Umbau von Badewanne zu Dusche – Sind die Arbeiten vollständig?

    Bitte um fachliche Begutachtung: Umbau von Badewanne zu Dusche – Sind die Arbeiten vollständig?: Sehr geehrte Fachexperten, Wichtiger Hinweis an alle Kommentatoren: Bevor ich die Details darlege, bitte ich höflich darum, dass Kommentare von...
  4. : Statische Einschätzung nach Umbau des Dachgeschosses (Entfernung Kehlbalken(?) / Einbau Zangen)

    : Statische Einschätzung nach Umbau des Dachgeschosses (Entfernung Kehlbalken(?) / Einbau Zangen): Hallo zusammen, ich habe eine Frage zur statischen Beurteilung unseres bzw. meines Elternhauses, das ich aktuell bewohne. Das Gebäude zeigt...
  5. Umbau Werkstatt zu Wohngebäude -> Raumaufteilung/Grundrisse

    Umbau Werkstatt zu Wohngebäude -> Raumaufteilung/Grundrisse: Guten Tag zusammen, mein Name ist Michael, ich komme aus dem nördlichen Großraum München und bin neu hier im Forum. Demnächst möchte ich ein...