Unsere kleine stadtVilla 140qm - eure Meinung? !

Diskutiere Unsere kleine stadtVilla 140qm - eure Meinung? ! im Architektur Allgemein Forum im Bereich Architektur; Hallo! Wir wollen euch unseren grundriss zeigen und wissen ob wir irgendwas grundlegend ungeschicktes eingebaut haben :)[ATTACH] [ATTACH] Tut mir...

  1. Eny85

    Eny85

    Dabei seit:
    02.08.2018
    Beiträge:
    6
    Zustimmungen:
    0
    Hallo!
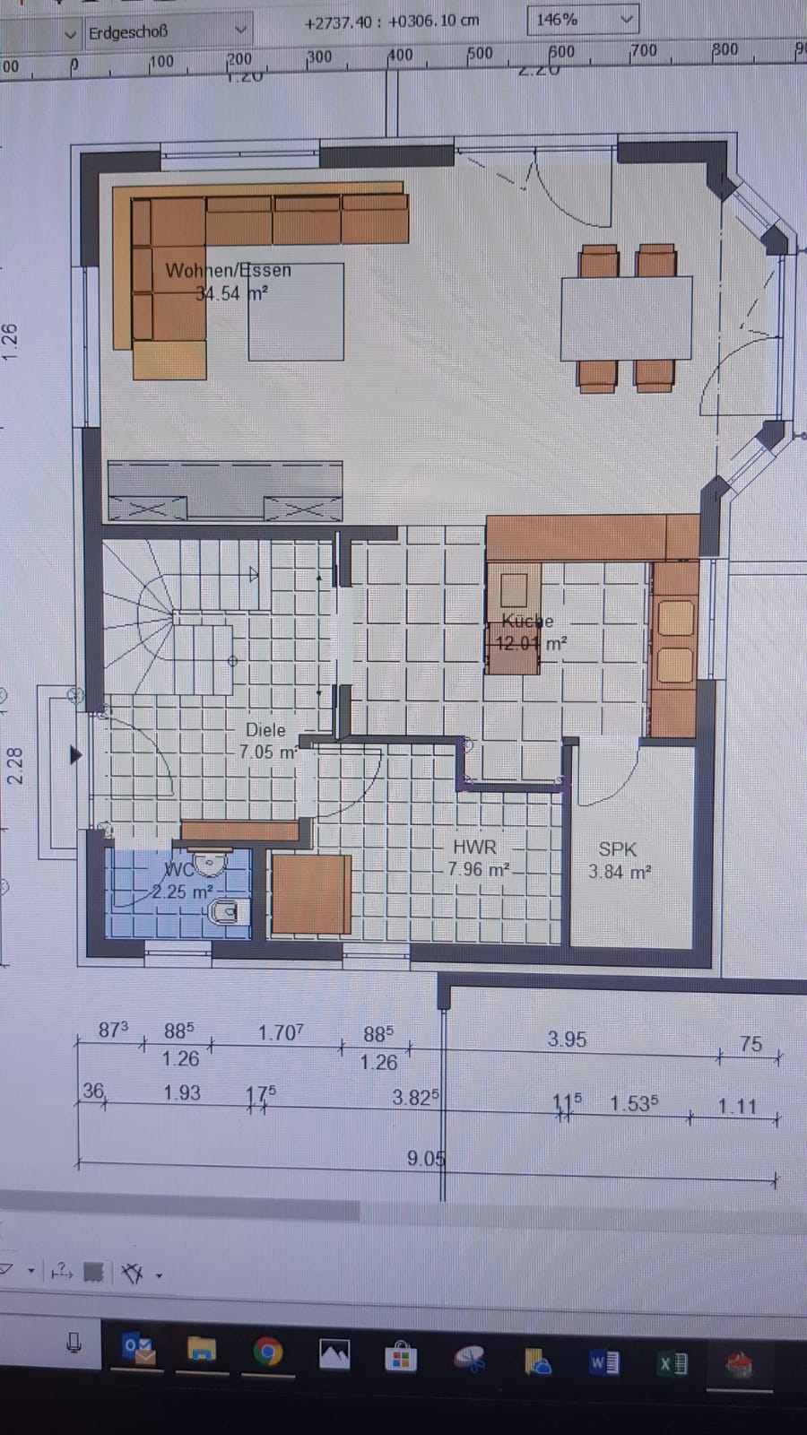
    Wir wollen euch unseren grundriss zeigen und wissen ob wir irgendwas grundlegend ungeschicktes eingebaut haben :) IMG-20180728-WA0001.jpg 20180719_223901.jpg

    Tut mir leid, dass die Bilder nicht die gleiche Ausrichtung haben .. kanns hier grad nicht drehen ...

    LG
     
  2. S216

    S216

    Dabei seit:
    06.12.2017
    Beiträge:
    283
    Zustimmungen:
    82
    Beruf:
    Vertrieb Metallindustrie
    Ort:
    RLP
    Ich habe das Gefühl, dass der gleiche Grundriss neulich schon mal da war.
    Durchgang Haustür an Treppe vorbei zur Küche finde ich beengt. Erker ("Fresswarze" nennt man es hier, glaube ich) finde ich furchtbar. Nicht hübsch, Kosten/Nutzen mies.
    Und wie so oft: warum Couch mit Rücken zu den Fenstern?
    OG: wenn ihr 3 Kinder habt oder wollt, sei es so. Keller gibts nicht? Bisschen wenig Platz für euch Eltern und für "Gerümpel".
     
    Kriminelle gefällt das.
  3. #3 Fabian Weber, 02.08.2018
    Fabian Weber

    Fabian Weber

    Dabei seit:
    03.04.2018
    Beiträge:
    16.306
    Zustimmungen:
    6.470
    Mal Dir mal die Fassaden auf, Du wirst sehen, dass diese noch nicht stimmig sind. Da liegen die Fenster irgendwie übereinander, über dem Erker wird es ganz komisch mit dem Fenster. Fassade und Grundriss müssen immer beides super werden. Durchgangsküche ist mein Fall auch nicht. Der Weg durch den Flur ist schon arg eng. Dafür kommt mir der HAR recht groß vor, da kann man noch 2m2 abknabbern bei guter TGA-Planung, dann entspannt sich das mit dem Flur auch.
     
    Kriminelle gefällt das.
  4. Eny85

    Eny85

    Dabei seit:
    02.08.2018
    Beiträge:
    6
    Zustimmungen:
    0
    Danke Fabian Fürstin antwort.
    Wie viel Durchgang sollte man wohl an der Treppe vorbei haben? Wir dachten durch die große zweiflügelige glasschiebetür entspannt sich sie enge .. Grade auch mit großem Fenster im Treppenhaus und heller treppe ...
    An den Fassaden wurde gearbeitet... Ging eigentlich. Ich besorge die 3d Ansicht mal ..

    Was bedeutet tga?
     
  5. #5 Lexmaul, 02.08.2018
    Lexmaul

    Lexmaul

    Dabei seit:
    15.09.2014
    Beiträge:
    8.921
    Zustimmungen:
    2.163
    Benutzertitelzusatz:
    Mimosenlecker
    Technische Gebäude Anlagen - vergiss es, die Planung gibt es beim EFH faktisch nicht ;)
     
    Kriminelle gefällt das.
  6. #6 Fabian Weber, 02.08.2018
    Fabian Weber

    Fabian Weber

    Dabei seit:
    03.04.2018
    Beiträge:
    16.306
    Zustimmungen:
    6.470
    Na dann zwingt man die halt in einen kleineren HAR :)

    Im zuletzt von mir geplanten HAR sind drin: Wärmepumpe mit integriertem Speicher, großer Kühlschrank, Waschmaschine, Sicherungskasten, Stromanschluss und Wasseranschluss. Der Raum ist als Durchgangsraum in den Garten gebaut und ist 1,60m x 2,50m groß.

    1,20m finde ich als Flurbreite angenehm.
     
  7. #7 Lexmaul, 02.08.2018
    Lexmaul

    Lexmaul

    Dabei seit:
    15.09.2014
    Beiträge:
    8.921
    Zustimmungen:
    2.163
    Benutzertitelzusatz:
    Mimosenlecker
    Wäre für mich ein Albtraum - echt :D

    Unser Anschluss- und Waschraum hat knapp 13 qm2 und das ist auch gut so.
     
  8. Eny85

    Eny85

    Dabei seit:
    02.08.2018
    Beiträge:
    6
    Zustimmungen:
    0
    13 qm sind leider nicht drin ..
     
  9. #9 Fabian Weber, 02.08.2018
    Fabian Weber

    Fabian Weber

    Dabei seit:
    03.04.2018
    Beiträge:
    16.306
    Zustimmungen:
    6.470
    Ich finde den EG-Grundriss noch unglücklich. In der Küche gibt es eine Ausstülpung in den HAR, damit man um den freistehenden Tresen laufen kann. Der Tresen selbst orientiert sich aber zum Treppenhaus, der Raum davor hat keine Qualität, man kann auch keine Barhocker hinstellen, weil man die dann immer umrennt.

    Auch wenn ich das als Architekt nur ungern sage, aber gerade diese kleinen Häuser sind halt nicht ohne. Die Bettdecke ist immer irgendwo zu kurz. Und die Fertighausanbieter haben da schon die optimalsten Grundrisse entwickelt. Ich würde nochmal dort Ausschau halten.
     
  10. #10 Fabian Weber, 02.08.2018
    Fabian Weber

    Fabian Weber

    Dabei seit:
    03.04.2018
    Beiträge:
    16.306
    Zustimmungen:
    6.470
    Das ist ja auch Dein Spielzimmer :)
     
  11. Eny85

    Eny85

    Dabei seit:
    02.08.2018
    Beiträge:
    6
    Zustimmungen:
    0
    Also die Küche ist überhaupt nicht fix so! Die ausstülpung sollte Kühlschrank und Hochschränke mit Ofen beherbergen... quasi bündig mit der wand abschließen. Meint ihr das ginge nicht? Vorher hatten wir eine Tür ins Wohnzimmer und eine in die geschlossene küche. Aber dann die Küche mit drei Türen .. War auch nicht so optimal!? Deshalb dann diese offenere Lösung
     
  12. #12 Kriminelle, 02.08.2018
    Kriminelle

    Kriminelle

    Dabei seit:
    16.05.2013
    Beiträge:
    3.707
    Zustimmungen:
    2.048
    Beruf:
    .
    Ort:
    Niedersachsen
    Die Küche ist total ungemütlich: sie ist sichtlich offen zur Eingangstür und zum Flur. Vor dem Tresen ist der Hauptverkehrsweg für 5 Personen. HWR ist zu klein, für 3 Personen wird es eng, bei 5 geht gar nicht. Habe mir sagen lassen, dass man ab 2 Kinder schon eine zweite WM brauchen kann... oder war‘s für drei? T:shades
    Elternschlafzimmer ist eingekesselt.
    Erker ist 90er Style.
    Wo lässt ihr denn Euren PC oder Drucker? Wo Eure Ordner? Diese ganzen Lasten von Medikamenten, Vasen, Getränkekisten, Staubsauger usw. , wo wollt ihr das lassen?

    P.s. Auch wenn die Küche nicht fix ist... wie Sol sie denn besser und effektiver eingerichtet werden?
     
  13. #13 Fabian Weber, 02.08.2018
    Fabian Weber

    Fabian Weber

    Dabei seit:
    03.04.2018
    Beiträge:
    16.306
    Zustimmungen:
    6.470
    Naja da haben wir schonmal drei Meinungen zur Größe des HAR. Aber das Haus ist halt im EG auch nur 10m x 9m.

    Da muss man jetzt alles reinpressen. Die Küche ist der Schlüssel zum besseren Grundriss. Diese Küche hat ja auch keine Oberschränke, das ist natürlich sehr stylisch, aber auch nicht gerade platzsparend.

    Kleines Haus = alles kleiner
     
  14. Eny85

    Eny85

    Dabei seit:
    02.08.2018
    Beiträge:
    6
    Zustimmungen:
    0
    Alles was so in die oberschränke gehört muss halt in die speisekammer ...
     
  15. #15 Annette1968, 02.08.2018
    Annette1968

    Annette1968

    Dabei seit:
    05.02.2013
    Beiträge:
    756
    Zustimmungen:
    15
    Beruf:
    Ärztin
    Ort:
    Bayern
    Und wo kommt dann das hin, was eigentlich in die Speisekammer gehört?

    Ich hab ca. 3,5 m nur Oberschränke dazu 1,2 m Hochschränke, wenn das alles in die Speisekammer soll - ohne Keller?
    Da muss die Vorratshaltung und der wochenplan aber immer funktionieren, sonst muss man alle 2 Tage einkaufen.
     
  16. #16 Kriminelle, 02.08.2018
    Kriminelle

    Kriminelle

    Dabei seit:
    16.05.2013
    Beiträge:
    3.707
    Zustimmungen:
    2.048
    Beruf:
    .
    Ort:
    Niedersachsen
    Du willst doch nicht für jedes Glas in die Speis gehen? Du planst 3! Kinder ein! Das kann doch nur ein Gedanke eines Menschen sein, der keinen Bezug zu Lebensmittelzubereitung, sondern nur Tischlein-Deck-Dich im Kopf hat... wie oft muss man mal schnell... den Mann bedienen :bierchen:... einen Teller greifen, ohne sich bücken zu müssen...
     
  17. Eny85

    Eny85

    Dabei seit:
    02.08.2018
    Beiträge:
    6
    Zustimmungen:
    0
    Das finde ich nicht in Ordnung von dir! Hier wird täglich frisch und gemüselastig in einer 8qm küche gekocht ...
     
  18. #18 jodler2014, 02.08.2018
    Zuletzt bearbeitet: 02.08.2018
    jodler2014

    jodler2014

    Dabei seit:
    20.12.2014
    Beiträge:
    3.907
    Zustimmungen:
    542
    Beruf:
    Angestellter
    Ort:
    RP
    8 qm zum Kochen sind absolut ausreichend.
    Kurze Wege .
    Aber der Weg zur Speisekammer ist sehr lang .
    Da ist das Gemüse ja schon welk ,bevor es auf das Schneidebrett kommt.:lock

    Ohne Keller ist der HWR ein HTR !
    Speisekammer und HTR zusammenfassen würde Sinn machen.
    Somit eine Grundriss-Änderung .
    Den Erker weg.
    Braucht kein Mensch .
    Die Hausbreite auf den angedachten Erker verbreitern .
    Ist das ein Grundriss-Vorschlag vom Hausbauer ?
    Da wird gerne mal ein Grundriss gespiegelt .
     
  19. #19 Lexmaul, 02.08.2018
    Lexmaul

    Lexmaul

    Dabei seit:
    15.09.2014
    Beiträge:
    8.921
    Zustimmungen:
    2.163
    Benutzertitelzusatz:
    Mimosenlecker
    Ne, das ist schräg gegenüber und hat neben einer unfangreichen Disney-Comicsammlung noch nen SuperNintendo, Wii, PS3 und PS4, Sat und Streamingzeugs in meinem 18 qm2 Spielzimmer - das ganze im Keller mit schöner Aussicht bei ganzjährigen 22 Grad :D

    Aber nicht falsch verstehen, ich würde einen 13qm2 Anschlussraum nicht als. Musthave definieren, aber da müssen Menschen arbeiten und warten - das sollte man immer bedenken.
     
  20. #20 Kriminelle, 02.08.2018
    Kriminelle

    Kriminelle

    Dabei seit:
    16.05.2013
    Beiträge:
    3.707
    Zustimmungen:
    2.048
    Beruf:
    .
    Ort:
    Niedersachsen
    Dann weißt Du, was kurze Wege und „griffbereit“ bedeuten. Das sollte man auch in einem Neubau einplanen.
     
Thema:

Unsere kleine stadtVilla 140qm - eure Meinung? !

Die Seite wird geladen...

Unsere kleine stadtVilla 140qm - eure Meinung? ! - Ähnliche Themen

  1. Material unserer Wände

    Material unserer Wände: Guten Morgen und einen schönen Sonntag allen. Ich möchte eine Heizlastberechnung mit Ubakus durchführen und benötige dazu das Material unserer...
  2. Hilfe bei Grundriss-Optimierung unserer DHH in Weinheim – junges Paar sucht kreative Ideen!

    Hilfe bei Grundriss-Optimierung unserer DHH in Weinheim – junges Paar sucht kreative Ideen!: Hallo zusammen, 1. Wir sind: wir sind ein junges Paar und wollen uns für unsere Familie - 2 Erwachsene, 31 und 28 Jahre alt + 2 Kinder, 11Monate...
  3. DHH-Nachbar will Terrasse bis an unseren Erker bauen - Feuchtschutz?

    DHH-Nachbar will Terrasse bis an unseren Erker bauen - Feuchtschutz?: Wir haben in einem Neubaugebiet eine DHH gebaut mit vorstehendem Erker, welcher auf der Grundstücksgrenze zum Nachbarn steht. Jetzt geht es an die...
  4. Stabilität unseres Balkons gefährdet?

    Stabilität unseres Balkons gefährdet?: Hallo zusammen, ich hatte kürzlich einen Handwerker im Haus der meinte unser Balkon (23.5 m²) hätte mögliche Mängel die man beachten sollte. Er...
  5. Wie und welche kleine Pöller an unserer Straßengrenze setzen für Parkplatz

    Wie und welche kleine Pöller an unserer Straßengrenze setzen für Parkplatz: Hallo, wir möchten unseren Vordergarten pflastern um da von links kommend seitlich ein kleinen Parkplatz zu haben. Da der Vorgarten bis zur...