Verbesserungsvorschläge für unseren Grundriss

Diskutiere Verbesserungsvorschläge für unseren Grundriss im Architektur Allgemein Forum im Bereich Architektur; Hallo, wir würden uns freuen wenn Ihr uns helft unseren Grundriss zu optimieren. Wir wollen viele Schiebetüren z. B. zur Küche, zur Terrasse und...

  1. #1 Klaus85, 27.01.2018
    Klaus85

    Klaus85

    Dabei seit:
    27.01.2018
    Beiträge:
    4
    Zustimmungen:
    0
    Hallo,
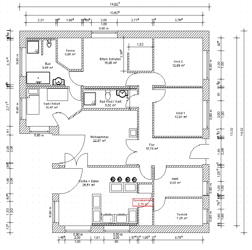
    wir würden uns freuen wenn Ihr uns helft unseren Grundriss zu optimieren. Wir wollen viele Schiebetüren z. B. zur Küche, zur Terrasse und ins große Bad, lässt sich nur nicht darstellen mit dem Programm. Hinzu kommt ein großer Dachraum mit Klappe im HWR, hier soll auch mal die Treppe hin, falls wir das DG einmal ausbauen sollten.
     

    Anhänge:

  2. #2 Klaus85, 28.01.2018
    Klaus85

    Klaus85

    Dabei seit:
    27.01.2018
    Beiträge:
    4
    Zustimmungen:
    0
    Haben Ihn nochmal verbessert
     

    Anhänge:

  3. #3 Andybaut, 28.01.2018
    Andybaut

    Andybaut

    Dabei seit:
    02.04.2015
    Beiträge:
    5.127
    Zustimmungen:
    329
    Beruf:
    Architekt
    Ort:
    Baden-Württemberg
    Guten Morgen,

    da ist leider so vieles so schlecht, dass es schwerfällt irgendwo anzufangen.
    Besonders schmerzhaft finde ich das Wohnzimmer.
    Man kann hier von Glück sprechen, dass es überhaupt noch ein Außenfenster gegeben hat.
    Der Esssbereich ist auch mehr was für Menschen mit kleinen Stühlen und schmalen Tischen.

    Google lieber im Internet nach Grundriss und Bungalow, such dir einen hübschen aus und passe ihn
    an eure Bedürfnisse an.

    Was hier meiner Meinung nach passiert ist (so ähnlich habe ich das schon zigmal erlebt):
    Der Bauherr möchte Bereiche die unbedingt nebeneinander liegen sollen und "müssen".
    Dann wird krampfhaft versucht genau das in Architektur umzusetzen.
    "Die Küche muss eine Bar haben"
    "Die Sauna muss neben dem Schlafzimmer sein"
    "Es muss ein Elternbad mit direkter Anbindung geben"
    So in der Art.
    Dann wird das haarklein umgesetzt und raus kommt das.

    So etwas funktioniert aber nur bei Grundrissen die riesig und unbegrenzte Mittel vorhanden sind.
    Aber auch da gibt es dann den Kompromiss der langen Wege.

    Also lieber noch ein wenig googeln und Abstriche an Teilbereichen machen um das große ganze gut umzusetzen.
     
  4. #4 Klaus85, 28.01.2018
    Klaus85

    Klaus85

    Dabei seit:
    27.01.2018
    Beiträge:
    4
    Zustimmungen:
    0
    Hallo,
    danke für deine Kritik, wir haben uns gedacht, dass die Flügeltüren zur Küche und zum Flur einen Glasanteil bekommen und so das Lich der Eingangstür und des Küchenfensters ins Wohnzimmer lassen. Die Küche machen wir dann in der Feinplanung als nächstes. Ist Küche und Essen insgesamt zu klein oder nur schlecht angeordnet? Spricht etwas dagegen ein Elternbad zu haben, hast du da Erfahrungen? Was sollte deiner Meinung größer werden?

    Danke für deine Antwort (:
     
  5. #5 Klaus85, 28.01.2018
    Klaus85

    Klaus85

    Dabei seit:
    27.01.2018
    Beiträge:
    4
    Zustimmungen:
    0
    Hallo,
    würde eine Öffnung die Lichtprobleme beheben? Würden wir nebenbei auch noch eine Tür sparen (:
     

    Anhänge:

  6. #6 driver55, 28.01.2018
    driver55

    driver55

    Dabei seit:
    22.02.2008
    Beiträge:
    6.872
    Zustimmungen:
    1.798
    Beruf:
    Dipl.-Ing.
    Ort:
    Pforzheim
    Du hast das gelesen? Die Bewertung kommt ja nicht von einem Bäcker.
    Ich sag's mal direkter --> Rundablage!

    Schreibt auf, was ihr ungefähr wollt, wie ihr euch das neue Zuhause grob vorstellt: Anzahl der Räume, grob die Ausrichtung, evtl. auch die Größe etc. und geht zu einem Planer.
    Dann kann man einen Grundriss diskutieren, alles andere ist Zeitverschwendung.
     
  7. #7 Andybaut, 28.01.2018
    Andybaut

    Andybaut

    Dabei seit:
    02.04.2015
    Beiträge:
    5.127
    Zustimmungen:
    329
    Beruf:
    Architekt
    Ort:
    Baden-Württemberg
    jetzt verabschiedet euch mal ein paar Tage von all euren Vorstellungen und schaut
    euch einige scheinbar für euch abwegige Grundrisse an.
    Nach ein paar Tagen schaut ihr euren nochmals an.
    Wenn ihr dann immer noch überzeugt seid, ist es scheinbar euer Ding.
    Ich glaub das aber nicht.

    Elternbad ist natürlich toll und auch die Ankleide. Da sind lauter schöne Dinge drin.
    Aber die Anordnung ist halt bescheiden :-(

    Also, Kopf frei machen. Das geht mir als Planer auch nicht anders.
    Manchmal verkopft man sich zu stark und muss loslassen.
     
  8. Tobseb

    Tobseb

    Dabei seit:
    04.12.2017
    Beiträge:
    25
    Zustimmungen:
    5
    Zeichne mal bitte in euer Elternschlafzimmer ein Doppelbett (180-200cm breit) und links und rechts ein Nachtschränkchen. So 70-80 cm neben dem Bett sollte schon Platz sein, oder krabbelt ihr vom Fußende ins Bett?

    Und steht eure Dusche tatsächlich vor dem fenster?

    Da ich auch gerade in der Planungsphase bin (die Tage das erste Architektengespräch) weiss ich wie schnell man sich in seinen laienhaften Planungswahn verrennt und denkt das perfekte Haus geplant zu haben.
     
  9. 11ant

    11ant

    Dabei seit:
    28.02.2017
    Beiträge:
    2.486
    Zustimmungen:
    1.564
    Beruf:
    Bauherrenberater
    Ort:
    RLP Nord
    Benutzertitelzusatz:
    bringt Sie gut beraten ins Eigenheim
    Genau. Solchen hanebüchenen Käse wie der TE habe ich selber auch schon gezeichnet. Da war ich Zwölf, habe da nach den Hausaufgaben zwei Tage dran rumgesessen und fand das Ergebnis entsprechend wohlüberlegt. Der TE hier wohl auch: Abgleich mit der Checkliste der Wünsche: volle Punktzahl = kann ja garnicht anders sein als alles prima.

    Ist aber in Wirklichkeit großer Mist. Kinderbad in einem Schlauch von Abstellkammer, ohne Tageslicht. Weg dorthin aus dem Durchgangszimmer des Gastes: entweder nach Canossa durch das Wohnzimmer, oder Auszug aus Ägypten durch das Hauptbad und das Schlafzimmer hindurch (!)

    Hinter keine Tür könnte man einen Schrank stellen. Das Schlafzimmer ist unmöblierbar. Das alles macht fast jeder lieblose GU-Grundriß besser. Daß der Schornstein eine Firstpfette teilt, sei als Laienfehler verziehen. Im günstigen Fall (max. je eine Einzelgarage in den Bauwich, neben Ankleide / Kind 2 bzw. Technik / Ankleide) werden etwa 21 m Grundstücksbreite gebraucht.

    Wo zwischen den Grundrißversionen "Verbesserungen" erfolgt sein sollen, ist ein Suchbild für fortgeschrittene Rätselfreunde. Ich finde schon die Veränderungen nicht (in angemessener Zeit für das Betrachten eines Forenbeitrages). Die Kühltruhen (?) als Beispiel-Symbole im Küchengrundriß schaffen auch nicht gerade ein Gefühl für wie das mal aussehen soll. Ich kann mich Andybaut nur anschließen.
     
  10. #10 Onkel Dagobert, 29.01.2018
    Onkel Dagobert

    Onkel Dagobert

    Dabei seit:
    23.10.2014
    Beiträge:
    724
    Zustimmungen:
    33
    Beruf:
    Bauingenieur
    Ort:
    Emlichheim (Nds.)
    Nur mal ein paar spontane Einwürfe zu dem (sorry, wirkliche schlechtem) Entwurf:
    - Wohnzimmer nicht möblierbar
    - Wohnzimmer dunkel
    - inneliegendes Bad, sorry aber in einem EFH ein NoGo für mich, außerdem extremst unglücklicher Zuschnitt
    - Elternbad: wenn einer am WT steht kommt keiner mehr rein
    - Essbereich zu klein
    - Gästezimmer ist (fast) der zentralste Raum im ganzen Haus

    Ein wirklixh Ernst gemeinter Rat:
    Entwurf entsorgen und zurück auf LOS, oder einen Experten beauftragen
     
    Kriminelle und simon84 gefällt das.
  11. #11 Schwarz, 22.02.2018
    Schwarz

    Schwarz

    Dabei seit:
    22.04.2009
    Beiträge:
    681
    Zustimmungen:
    2
    Beruf:
    Architekt
    Ort:
    Hessen
    Man kann das bauen, man kann darin wohnen aber ... es ist nicht gut!

    Das macht überhaupt keinen Sinn, da mit irgendwas anzufangen und rumzuschieben.
     
Thema:

Verbesserungsvorschläge für unseren Grundriss

Die Seite wird geladen...

Verbesserungsvorschläge für unseren Grundriss - Ähnliche Themen

  1. Wandaufbau - Fragen / Verbesserungsvorschläge

    Wandaufbau - Fragen / Verbesserungsvorschläge: Hallo zusammen, ich plane gerade meine Garage weiter und wollte fragen ob meine bisherige Idee so machbar ist bzw. wo ich noch etwas an meinem...
  2. Badplanung (Bestand) - Verbesserungsvorschläge

    Badplanung (Bestand) - Verbesserungsvorschläge: Hallo, ich möchte mich da Bitte mit einer Frage anhängen: Sind 6,5 m2 für ein Bad zu klein? Skizze siehe Anhang! Nur prov. Zeichnung. Danke für...
  3. Badplanung (Bestand) - Verbesserungsvorschläge

    Badplanung (Bestand) - Verbesserungsvorschläge: Hallo zusammen, wir denken über die Badsanierung nach und wünschen uns Meinungen und Verbesserungsvorschläge. Der Bungalow ist aus dem BJ1980 und...
  4. Verbesserungsvorschläge und Ideen wünschenswert

    Verbesserungsvorschläge und Ideen wünschenswert: Hallo Bauexperten, im Anhang ist mein derzeitiger Grundriss zu sehen. Ich habe mich für einen Bungalow entschieden. Die Treppe ist zwar in...
  5. Verbesserungsvorschläge zu unserem Grundriss erwünscht

    Verbesserungsvorschläge zu unserem Grundriss erwünscht: Hallo, wir sind eine Familie mit zwei Kindern im Kindergartenalter und wir planen ein Einfamilienhaus zu bauen. Wir haben nun einen Grundriss...