Vorentwurf EFH 170m2 - Bitte um eure Meinungen

Diskutiere Vorentwurf EFH 170m2 - Bitte um eure Meinungen im Architektur Allgemein Forum im Bereich Architektur; Hallo, hier der Vorentwurf des Architekten, ich wäre sehr froh um eure Meinungen und Inputs. Grundstück ist 510 m2 groß, leichte Hanglage....

  1. gokus

    gokus

    Dabei seit:
    14.12.2019
    Beiträge:
    11
    Zustimmungen:
    0
    Hallo,

    hier der Vorentwurf des Architekten, ich wäre sehr froh um eure Meinungen und Inputs.

    Grundstück ist 510 m2 groß, leichte Hanglage. Gebaut wird ohne Keller, massiv. Satteldach ist von der Gemeinde vorgegeben.
    Gewünscht ist Erdwärme, PV, KWL, BKA, Dämmung mit Hanf.

    Budget liegt bei 600 000.

    Was meint ihr dazu?
     

    Anhänge:

  2. #2 Lexmaul, 14.12.2019
    Lexmaul

    Lexmaul

    Dabei seit:
    15.09.2014
    Beiträge:
    8.921
    Zustimmungen:
    2.163
    Benutzertitelzusatz:
    Mimosenlecker
    Zu niedrige Decken im EG, was soll der Balkon, der nie genutzt wird? Was ist das mit den beiden Bädern, aber nur eine Dusche??

    Technik draußen - denk an die Leitungswege, die Dämmung - und trotzdem Verluste, weil der Raum selbst nicht beheizt wird.
     
  3. gokus

    gokus

    Dabei seit:
    14.12.2019
    Beiträge:
    11
    Zustimmungen:
    0
    Warum ist eine Deckenhöhe von 2,6m zu niedrig?
    Mit dem Balkon hast du recht.

    Das GZ soll eine Nasszelle in der Nähe haben.

    Hast du eine Idee wo man die Technik im EG sonst unterkriegt? Dann müsste man ja Platz vom ESS/Wohnbereich wegnehmen. Oder die Außenwand Richtung Carport verlängern.
     
  4. #4 Lexmaul, 14.12.2019
    Lexmaul

    Lexmaul

    Dabei seit:
    15.09.2014
    Beiträge:
    8.921
    Zustimmungen:
    2.163
    Benutzertitelzusatz:
    Mimosenlecker
    Stand da nicht 2,40m?

    Im Hauptbad ist doch nur eine Wanne...? Sonst wäre das ja ok...

    Klar, verlänger doch einfach. Sowas gehört in die thermische Hülle.
     
  5. gokus

    gokus

    Dabei seit:
    14.12.2019
    Beiträge:
    11
    Zustimmungen:
    0
    2,40 ist die Türr, 2,62 die Decke.

    Gegenüber der Wanne, das Dreieck, soll eine Dusche sein.

    Danke für den Tipp bezügl. Technik und thermische Hülle.
     
  6. #6 Lexmaul, 14.12.2019
    Lexmaul

    Lexmaul

    Dabei seit:
    15.09.2014
    Beiträge:
    8.921
    Zustimmungen:
    2.163
    Benutzertitelzusatz:
    Mimosenlecker
    Ja, dann passen zwei wesentliche Sachen - schau echt, ob Du den Anschlussraum nicht ins Gebäude bekommst.

    Und lass bitte dem Balkon weg - allein das spart ja schon was.
     
    gokus gefällt das.
  7. #7 Jo Bauherr, 14.12.2019
    Jo Bauherr

    Jo Bauherr

    Dabei seit:
    19.06.2018
    Beiträge:
    1.049
    Zustimmungen:
    516
    Beruf:
    (Ex)-Vermieter
    Ort:
    Randberlin
    Balkon ist fast immer Unsinn im EFH, das würde ich optimieren. Ansonsten schon außergewöhnlich passabel die Grundrisse.
    Vlt. noch eine Trennung zwischen Garderobe-Gang? Damit bei Haustüröffnung nicht gleich alles kalt wird.
     
  8. #8 Fabian Weber, 14.12.2019
    Fabian Weber

    Fabian Weber

    Dabei seit:
    03.04.2018
    Beiträge:
    16.392
    Zustimmungen:
    6.522
    Ich finde den Balkon in Kombination mit der Nutzung Büro/Fitness sehr gut. Auch für das Gästezimmer.

    Ich würde nochmal in die Details gehen und die Fassade feiner ausdefinieren.

    Den Flur oben mit einem Dachflächenfensterband belichten.

    Ich könnte mir hier sehr gut eine Holzfassade vorstellen. Den Dachüberstand entweder weiter raus oder noch besser weglassen.

    Die ganze Hausform bietet sich für mich gerade zu für einen Holzbau an.
     
  9. gokus

    gokus

    Dabei seit:
    14.12.2019
    Beiträge:
    11
    Zustimmungen:
    0
    Der Architekt meint Balkon weil sonst zu wenig Licht in die beiden Zimmer fällt. Nordseitig gibt es scheinbar wenig Sonneneinstrahlung. Wenn kein Balkon, würde ein Dachflächenfenster mehr Licht bringen, oder?
     
  10. gokus

    gokus

    Dabei seit:
    14.12.2019
    Beiträge:
    11
    Zustimmungen:
    0
    Was verstehst du unter "Fassade feiner ausdefinieren"?

    Holzbau wär für uns auch eine Option (auch der Architekt baut lieber mit Holz), er meint aber dass es (im EG) nicht möglich sei weil das Haus in den Hang gebaut wird und somit Erdberührung hat (ich hoffe ich hab das richtig wiedergegeben, jedenfalls hab ich es so verstanden).
     
  11. #11 Jo Bauherr, 14.12.2019
    Jo Bauherr

    Jo Bauherr

    Dabei seit:
    19.06.2018
    Beiträge:
    1.049
    Zustimmungen:
    516
    Beruf:
    (Ex)-Vermieter
    Ort:
    Randberlin
    Da kann man, falls der Belichtungsnachweis wirklich nicht hinkommt, eine Lichtkuppel oder ein Dachfenster einplanen - und es wird taghell. Dann aber bitte auch über Verschattungen nachdenken.
    Das "Draußen"-Familienleben im EFH findet erfahrungsgemäß immer auf der Terrasse im EG statt - und quasi nie auf einem "Balkon".
     
  12. #12 Fabian Weber, 14.12.2019
    Fabian Weber

    Fabian Weber

    Dabei seit:
    03.04.2018
    Beiträge:
    16.392
    Zustimmungen:
    6.522
    Ja das mit dem Hang stimmt natürlich, OG wäre trotzdem denkbar.

    Die Fassade braucht noch Feinschliff. Da würde ich mal noch 4-5 Varianten durchprobieren.
     
  13. #13 Kriminelle, 14.12.2019
    Kriminelle

    Kriminelle

    Dabei seit:
    16.05.2013
    Beiträge:
    3.843
    Zustimmungen:
    2.163
    Beruf:
    .
    Ort:
    Niedersachsen
    Den Zusammenhang versteh ich ehrlich gesagt nicht,
    Wenn der Balkon nicht wäre, würde wohl viel mehr Licht in diese beiden Räume fallen. Außerdem: ist doch Südseite...

    Ich finde den Entwurf gar nicht so schlecht.
    Mir sagt aber der Eingangsbereich innen sowie außen nicht zu.
    Außen ist wohl meine persönliche Vorliebe, die Hauseingangstür auch entsprechend zu dekorieren.
    Was ich aber viel schlimmer finde, ist der Schneckengang des Flures, um den Wohnbereich, also den Allraum zu erreichen. Das ist gar nicht schön. Das Haus heißt den Bewohner nicht willkommen, da erstreckt sich der Wohnbereich nicht dem Eintretenden ggü.
    Außerdem ist der Flur im vorderen Bereich zu dunkel, viel zu dunkel. Da ist nirgendwo Tageslicht. In einem Neubau, und dann noch bei einem so schönen schlanken, wo es herrliche Möglichkeiten gibt, ein Nogo. Durch den Haupteingang fällt ja auch nur dunkles Carportlicht.
    Mein Vorschlag: Toilette und Treppenhaus tauschen. Der Wohnbereich kann dann etwas größer, das wäre ein Positiver Nebeneffekt. Garderobe unter die geschlossene Treppe, direkte Tür ggü des Einganges zur Küche. Küche anpassen, eher strecken statt stauchen. Essbereich etwas nach Westen rutschen lassen. Gästewc ggf drehen. Treppenhaus mit Fensterglas versehen. Rest ergibt sich.
     
    driver55 gefällt das.
  14. #14 Lexmaul, 15.12.2019
    Lexmaul

    Lexmaul

    Dabei seit:
    15.09.2014
    Beiträge:
    8.921
    Zustimmungen:
    2.163
    Benutzertitelzusatz:
    Mimosenlecker
    Wenn der Balkon weg fällt (sorry Fabian, aber das nutzt kein Schwein im EFH - und jetzt kommt nicht mit "nach der Fitness dort relaxen"), dann überdenke mal, ob man die gefangenen Räume nicht doch mit einem Flur versehen kann und die Kinderzimmer weg vom Elternschlafzimmer (wir haben alle Schlafräume voneinander getrennt) und auch etwas größer machen - wieso habt ihr für reines Schlafen mehr Platz als die Kinder für schlafen, spielen, lernen, Freunde treffen?
     
  15. #15 driver55, 15.12.2019
    Zuletzt bearbeitet: 15.12.2019
    driver55

    driver55

    Dabei seit:
    22.02.2008
    Beiträge:
    6.933
    Zustimmungen:
    1.843
    Beruf:
    Dipl.-Ing.
    Ort:
    Pforzheim
    Ich würde den Plan erstmal bemaßen lassen. Aber auch ohne ist dieser Plan mehr schlecht als recht.
    • Eingangsbereich / Schleuse furchtbar, Alles andere als einladend für 170 qm.
    • Gänge viel zu dunkel, vor allem oben!
    • 15 m Wanderung von Gast ins Bad (Kommando zurück. Sehe ein zweites Minibad)
    • Wieso überhaupt nur knapp 7 m innen?
    • Dieser Balkon ist in der Tat Geldverschwendung...
    • Kinderzimmer würde ich die Zimmer nicht nennen wollen...
    • Kein Keller, kein Speicher, keine Garage und keine Lagerfläche...wo soll das alles hin für 4 Köpfe?
    Ich würde ganz klar den Resetknopf drücken!
     
    Kriminelle gefällt das.
  16. gokus

    gokus

    Dabei seit:
    14.12.2019
    Beiträge:
    11
    Zustimmungen:
    0
    Danke euch allen für eure Antworten!

    Ich habe jetzt eine lange Liste mit der ich mich mit dem Architekten wieder zusammensetzen werde.
     
  17. gokus

    gokus

    Dabei seit:
    14.12.2019
    Beiträge:
    11
    Zustimmungen:
    0
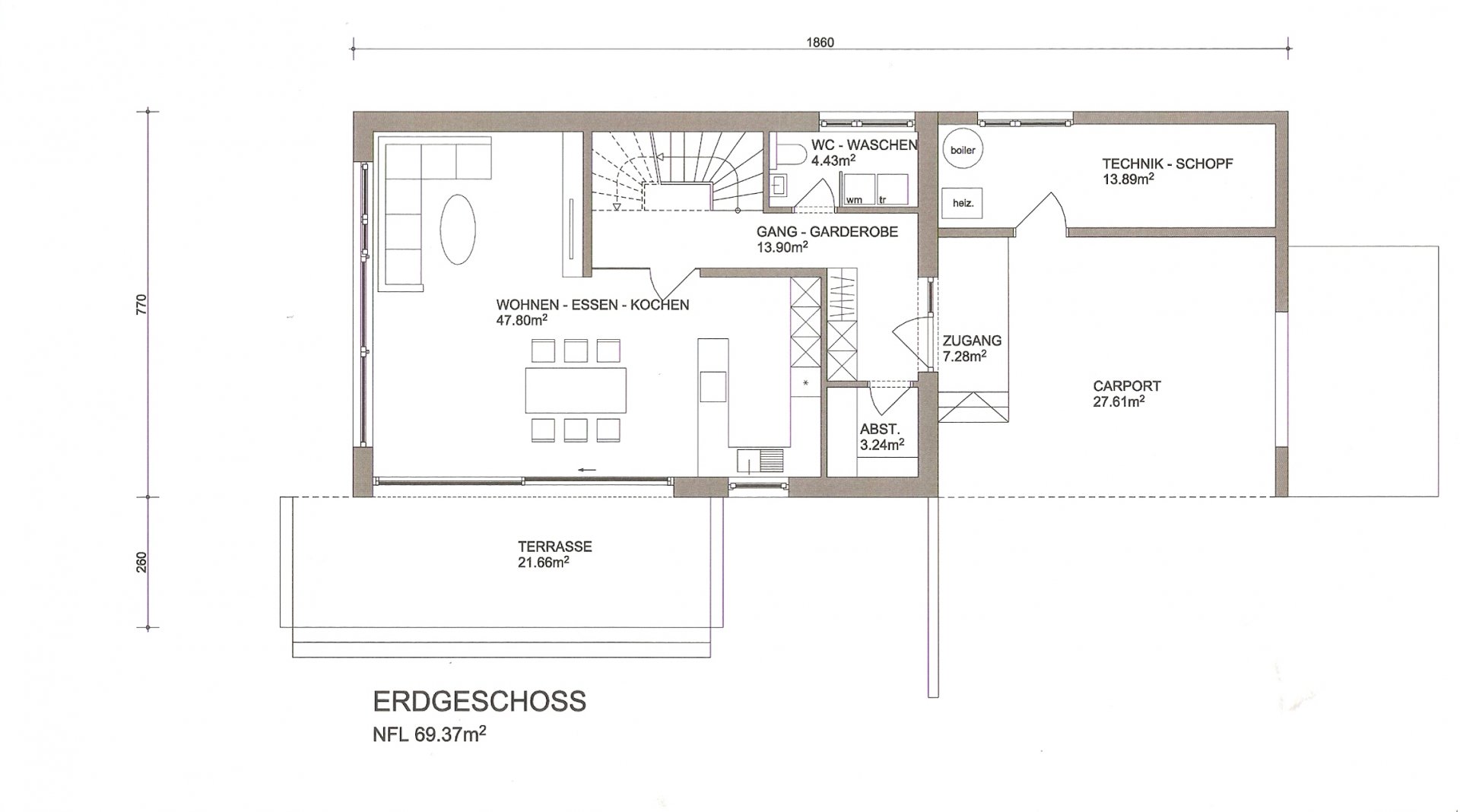
    Wir haben einen geänderten Entwurf des Architekten bekommen.
    Es passt uns noch nicht alles, weswegen ich gezielte Fragen stellen möchte:

    EG:
    1.) Ein zusätzlicher Eingang, durch die Küche.
    Wie praktikabel ist das? Zumindest entschärft das diesen Schneckenhaus ähnlichen Gang.
    2.) Der Wohnbereich kann durch eine Schiebetür geschlossen werden. Wenn die Schiebetür offen ist, ist es aber nur noch ein halboffener Bereich, das läuft doch dem Gedanken eines offenen Ohn-Ess-Kochbereich entgegen, oder?

    OG:
    1.) Der östliche Teil (Fitness + Lager bzw Stauraum) ist ein Kaltraum. Technickraum ist noch nicht eingezeichnet, ein Installateur meinte, wen die Technik nicht in der thermischen Hülle wäre käme es zwar zu Wärmeverlusten, die wären aber gering und vernachlässigbar. Er hat die Idee, die Technik in diesen Fitnessraum zu geben, dann würden die Wärmeverluste den Kaltraum (genauer den Fitnessbereich) etwas aufheizen.

    Ich freue mich über eure Antworten.

    Ist dieser Entwurf nun stimmiger? Ich zweifle mittlerweile ehrlich gesagt ein bisschen an der Kompetenz vom Architekten.
     

    Anhänge:

  18. #18 Wilma66, 21.12.2019
    Wilma66

    Wilma66

    Dabei seit:
    31.05.2019
    Beiträge:
    105
    Zustimmungen:
    25
    Der Flur ist sehr lang und schmal, da staut es sich schnell (denke ich). Wäscheraum oben finde ich gut. Habt ihr genug Stauraum? (Wieviel ist Fitness, wieviel wirklich Lager) Habt ihr so oft Besuch, dass ihr ein Gästezimmer benötigt?
     
  19. gokus

    gokus

    Dabei seit:
    14.12.2019
    Beiträge:
    11
    Zustimmungen:
    0
    Stauraum wäre vor allem der Kaltraum im OG (etwa so wie eingezeichnet).
    Das Gästezimmer würde ich mit einem Büro kombinieren (Schreibtisch und Bücherregal muss noch rein, dafür vielleicht Dusche ins WC).
     
  20. #20 Wilma66, 21.12.2019
    Wilma66

    Wilma66

    Dabei seit:
    31.05.2019
    Beiträge:
    105
    Zustimmungen:
    25
    2 Arbeitszimmer?
     
Thema:

Vorentwurf EFH 170m2 - Bitte um eure Meinungen

Die Seite wird geladen...

Vorentwurf EFH 170m2 - Bitte um eure Meinungen - Ähnliche Themen

  1. Architekten Honorar bereits nach Vorentwürfe

    Architekten Honorar bereits nach Vorentwürfe: Hallo zusammen, für die Planung unseres Projektes habe ich eine Architektin (Freie Architektin) pauschal mit der Erstellung der Entwürfe LP1–3...
  2. Vorentwurf vom Architekt

    Vorentwurf vom Architekt: Guten Morgen zusammen, mein Bauvorhaben im Detail werde ich in einem separaten Beitrag ausführlich vorstellen. Heute geht es für mich um zwei...
  3. Neuer Vorentwurf - Bitte um Meinungen

    Neuer Vorentwurf - Bitte um Meinungen: Hallo, Mich würden eure Meinungen zur Gebäudeform und zur Hülle interessieren. Die Innenräume, vor allem die Schlafräume im OG, werden sich noch...
  4. Eure Meinung zur Vorentwurf für unseren Bungalow

    Eure Meinung zur Vorentwurf für unseren Bungalow: Hallo zusammen, wir haben heute von unsere Bauträger einen Vorentwurf für unserem Bungalow bekommen. Bemerkung: 1. Der ist einen Barrierefreies...
  5. Überarbeiteter Vorentwurf - mit Input vom Forum

    Überarbeiteter Vorentwurf - mit Input vom Forum: Ich habe hier vor etwa 2 Wochen schon mal meinen Grundriss zur Diskussion gestellt und einiges an Feedback erhalten. (Siehe hier). Habe viele...