Walmdach mit Neigung von ca. 13 grad

Diskutiere Walmdach mit Neigung von ca. 13 grad im Architektur Allgemein Forum im Bereich Architektur; Du meinst, ab dem in diesem Beispiel 51ten Zentimeter würde der Grenzabstand bis zur Außenkante des Dachüberstands gemessen? Nein, aber ab dem 55....

  1. 11ant

    11ant

    Dabei seit:
    28.02.2017
    Beiträge:
    2.367
    Zustimmungen:
    1.434
    Beruf:
    Bauherrenberater
    Ort:
    RLP Nord
    Benutzertitelzusatz:
    bringt Sie gut beraten ins Eigenheim
    Nein, aber ab dem 55. würde ich mit Rücküberweisung des Bauantrages an den Einreicher rechnen.
    Insbesondere in Verbindung mit einem King Size Dachüberstand braucht es bei einem solchen Flachwalmdach tatsächlich Smokey Eyes, um sich von einer Hommage an Wright zu distanzieren, ja. Und eine Kunst wird es gewiß, dieses "Mittelklasse Einfamilienhaus" "deutlich unter 500k" zu schaffen - als Ausbauhaus ?
    Vermutlich, weil ich sagte, man werde erst aus riesiger Entfernung überhaupt mehr als nur Überstand vom Dach wahrnehmen können.
    Zum Verschwenken und Wenden, und natürlich zum Verballern der GRZ.
     
  2. #22 simon84, 13.05.2023
    simon84

    simon84
    Moderator

    Dabei seit:
    11.11.2012
    Beiträge:
    22.967
    Zustimmungen:
    6.748
    Beruf:
    Schrauber
    Ort:
    Muenchen
    Reality check ?

    Das geht vielleicht sogar. Aber nicht so.
    Standard Satteldach 1,5 geschossen mit 180 qm ausm Katalog

    Die Garage kostet ja allein schon 30-40
    Die ist ja fast so groß wie das Haus
     
    Jo Bauherr gefällt das.
  3. borish

    borish

    Dabei seit:
    06.06.2020
    Beiträge:
    230
    Zustimmungen:
    37
    Das Grundstück ist in Nord-Süd-Richtung länger als in Ost-West-Richtung. Warum baut ihr das Haus nicht mit Südausrichtung und die Garage dahinter an der Nordgrenze?
     
  4. 11ant

    11ant

    Dabei seit:
    28.02.2017
    Beiträge:
    2.367
    Zustimmungen:
    1.434
    Beruf:
    Bauherrenberater
    Ort:
    RLP Nord
    Benutzertitelzusatz:
    bringt Sie gut beraten ins Eigenheim
    Wie "dahinter" ? - die Garage ist doch schon an der Nordgrenze.
     
  5. borish

    borish

    Dabei seit:
    06.06.2020
    Beiträge:
    230
    Zustimmungen:
    37
    Mir ging es um die Ausrichtung des Hauses davor. Das hätte ich um 90° gedreht, so dass das WoZi nach Süden geht. Und die Garage direkt dahinter. Würde natürlich eine Umplanung erfordern. Aber wenn der TE nur ein Budget deutlich unter 500 T€ hat, muss das ganze Projekt sowieso deutlich geschrumpft werden.
     
    11ant gefällt das.
  6. #26 driver55, 13.05.2023
    driver55

    driver55

    Dabei seit:
    22.02.2008
    Beiträge:
    6.652
    Zustimmungen:
    1.661
    Beruf:
    Dipl.-Ing.
    Ort:
    Pforzheim
    Ist da überhaupt (schon) ein Planer oder Architekt am Werk?
    Ich las hier von Beiträgen/Hinweisen aus März 22. (hab‘s jetzt auch gesehen…erste Überlegungen vor über einem Jahr)

    Die Grundstückskizze ist jedenfalls selbst „gemalt“.
     
    11ant gefällt das.
  7. #27 SvenF86, 13.05.2023
    Zuletzt bearbeitet: 13.05.2023
    SvenF86

    SvenF86

    Dabei seit:
    08.03.2022
    Beiträge:
    55
    Zustimmungen:
    3
    Wir haben mit einem freien Architekten geplant und anschließend einen Schlüsselfertig-Vertrag mit einem regionalen Hausbauer unterschrieben. Dort sind wir mit dem zugehörigen Planer nun in der Endphase der Planung. Bauanzeige soll in 6-8 Wochen eingereicht werden.

    Die genannten Kosten beziehen sich auf das Haus alleine, ohne Garage oder sonstiges. Mit allem Drumherum werden wir wohl in die Region der 500 T€ kommen. Eigentlich soll das hier aber gar nicht Thema sein sondern ich hatte mir ernst- und gutgemeinte Ratschläge zur Optik erhofft - kein Bashing.
    Wie gesagt, Verträge sind eh unterschrieben und der Preis steht fest.

    Die Größe der Einfahrt ist so gewählt um dort wenden und parken zu können. Beides ist in der Privatstraße nicht möglich.

    Die Westausrichtung ist so gewählt, weil wir im Westen keinen Nachbarn haben. Die Option mit der Südausrichtung haben wir auch lange überlegt. Allerdings haben wir uns am Ende aus genanntem Grund für den Garten im Westen entschieden.
     
  8. #28 simon84, 13.05.2023
    simon84

    simon84
    Moderator

    Dabei seit:
    11.11.2012
    Beiträge:
    22.967
    Zustimmungen:
    6.748
    Beruf:
    Schrauber
    Ort:
    Muenchen
    Ob 70 oder 50 cm dachüberstand wird „egal“ sein
     
  9. #29 driver55, 13.05.2023
    driver55

    driver55

    Dabei seit:
    22.02.2008
    Beiträge:
    6.652
    Zustimmungen:
    1.661
    Beruf:
    Dipl.-Ing.
    Ort:
    Pforzheim
    Dann zeig mal die echten Pläne!
    Bzgl. Dachüberstand. Bei 50 cm wäre das Gebäude ca. 20 m lang, wären es 70 cm, wären wir bei über 28 m!
    Das sind also 30 cm! (Gebäude 13 m).

    Wenn der Prei feststeht, gibt’s auch keine Änderungen mehr!
     
  10. 11ant

    11ant

    Dabei seit:
    28.02.2017
    Beiträge:
    2.367
    Zustimmungen:
    1.434
    Beruf:
    Bauherrenberater
    Ort:
    RLP Nord
    Benutzertitelzusatz:
    bringt Sie gut beraten ins Eigenheim
    Auch Warnungen sind gutgemeinte Ratschläge. Da ich hier wie gesagt ein dem Gestaltungswillen des Bebauungsplanes zuwiderlaufendes Haus vermute, halte ich einen Freisteller entsprechend für gewagt. Der Gedanke an ein Menschenrecht auf eine Anstattvilla-Hausform wird von vielen Gemeinden nicht geteilt ;-)
     
  11. #31 SvenF86, 14.05.2023
    Zuletzt bearbeitet: 14.05.2023
    SvenF86

    SvenF86

    Dabei seit:
    08.03.2022
    Beiträge:
    55
    Zustimmungen:
    3
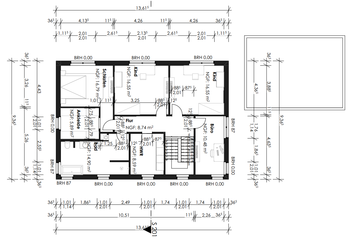
    Folgend sind die Pläne unseres freien Architekten. Die der eigentlichen Hausbaufirma dürfen nicht geteilt werden, basieren aber auf diesen bzw. sind praktisch identisch. Rechts ist Norden:
    upload_2023-5-14_15-20-33.png
    upload_2023-5-14_15-21-16.png
    upload_2023-5-14_15-22-9.png
    Mit dem Grundriss und den Dimensionen sind wir sehr zufrieden. Das ist auch vertraglich alles schon so vereinbart. Änderungen jeder Art gehen trotzdem immer, zumindest bis zur Einreichung der Bauanzeige. Nennt sich dann Nachtrag. Ist auch kein Hexenwerk.
    Auch das Dach ist für uns, vor allem mangels echter Alternativen, praktisch gesetzt. Ändern würden wir zum aktuellen Zeitpunkt eigentlich nur noch die Fenster (bei gleichbleibendem Grundriss) und/oder die Fassadengestaltung. Und natürlich auch Dinge wie Dachüberstand etc.

    Den vollständigen Bebauungsplan möchte ich zum Schutz des konkreten Ortes ungern öffentlich teilen. Grundsätzlich steht dort aber folgendes:
    upload_2023-5-14_15-34-57.png
    Wir liegen im Gebiet "WA" und dürfen zwei Vollgeschosse bauen. Das würden wir auch gerne tun, da wir die Wohnfläche benötigen, das Grundstück aber nicht das Größte ist (609m²). Wir haben eine GRZ von 0,4 und eine Oberkante von 7,00m:
    upload_2023-5-14_15-36-56.png
    Es gibt im gleichen Gebiet auch Grundstücke mit nur einem Vollgeschoss, einer GRZ von 0,25 und derselben maximalen OK von 7,00m. Mit unserer Planung zielen wir also auf keine Freistellung oder dergleichen ab. Wir halten uns zu 100% an den Bebauungsplan.
    Was die gestalterische Idee oder der Wille bei dessen Erstellung war, kann ich nicht sagen. Eventuell Flachdächer? Das flache Walmdach ist für uns aber deutlich wirtschaftlicher (laut Bauunternehmen rund 15-20 T€ mehr für das Flachdach) und zumindest auf dem Papier auch hübscher...
     
    11ant gefällt das.
  12. borish

    borish

    Dabei seit:
    06.06.2020
    Beiträge:
    230
    Zustimmungen:
    37
    Die Anordnung der Fenster lässt sich nicht mehr so leicht ändern, ohne auch die Grundrisse zu ändern. Wenn man ein Haus plant, kann man zuerst den Grundriss festlegen, hat dann aber nur noch beschränkte Möglichkeiten bei der Fassadengestaltung. Man kann auch in umgekehrter Reihenfolge vorgehen oder beides zusammen machen.

    Den Haustechnikraum an die Südseite zu legen, ist keine planerische Glanzleistung. Auch die Lage des Kinderzimmers in NW und des Schlafzimmers in SW ist nicht optimal. Umgekehrt wäre es besser, denn ein SZ muss nicht im Süden liegen, aber das KiZ würde von einem Fenster nach S profitieren. Gleiches gilt für Büro und Bad.

    Da hättet ihr euch gleich ein Haus von der Stange kaufen können. Was nützt ein Planer, der nur wenig auf die Besonderheiten des Grundstücks eingeht? Ihr wollt doch sehr lange darin leben.
     
    Kriminelle und 11ant gefällt das.
  13. #33 SvenF86, 14.05.2023
    SvenF86

    SvenF86

    Dabei seit:
    08.03.2022
    Beiträge:
    55
    Zustimmungen:
    3
    Alles ist immer irgendwo ein Kompromiss. Wir haben einen langen Weg mit unserem Planer hinter uns und ich würde definitiv sagen, dass er auf unser Grundstück eingegangen ist. Viel mehr, als das der Planungsumfang im ‚Paket‘ des Bauunternehmens hätte leisten können. Wir haben bspw. das Haus deutlich schmaler gestaltet, als es ‚von der Stange‘ gekommen wäre. Zum Einen um die Dachneigung steiler zu bekommen und zum Anderen um möglichst viel Gartenfläche im Westen zu haben. Zugleich wollten wir den Eingang gerne neben der Garage, über die schmale Nordseite haben. Das war nicht ganz einfach. Vorgabe vom Bauunternehmen war dann noch, dass das Bad möglichst über dem Technikraum liegt und Frau wollte das Schlafzimmer gerne neben dem Bad haben… so ergibt sich alles.

    Die Planung lief grundsätzlich von Innen nach außen, was ich auch für sinnvoll halte. Form follows function.

    Nun sind wir aber alle ein wenig betriebsblind geworden und etwas Input von außen tut immer gut.
     
  14. #34 SvenF86, 12.06.2023
    SvenF86

    SvenF86

    Dabei seit:
    08.03.2022
    Beiträge:
    55
    Zustimmungen:
    3
    Wir haben nun nochmal das Bad mit dem Wäschezimmer getauscht. Dadurch ergeben sich andere Möglichkeiten der Fensterpositionierung. Insbesondere haben wir zwei Optionen:
    upload_2023-6-12_21-45-1.png upload_2023-6-12_21-44-37.png
    Was haltet ihr denn für ansehnlicher? Danke
     

    Anhänge:

  15. #35 simon84, 13.06.2023
    simon84

    simon84
    Moderator

    Dabei seit:
    11.11.2012
    Beiträge:
    22.967
    Zustimmungen:
    6.748
    Beruf:
    Schrauber
    Ort:
    Muenchen
    Das muss in erster Linie dir gefallen

    ich finde die Fenster allgemein potthässlich besonders das über Eck aber das ist doch reine Geschmacksache
     
  16. #36 Fasanenhof, 13.06.2023
    Fasanenhof

    Fasanenhof

    Dabei seit:
    20.02.2023
    Beiträge:
    1.298
    Zustimmungen:
    712
    Beruf:
    Ing für Maschinenbau
    Ort:
    Norddeutschland
    Ist modern.

    Aber ich finde von der optik draußen ist die Besonderheit der Raumplanung innen einfach nur schwierig, wenn man ein Eckfenster hat.
    Auch Details wie Vorhänge/Lichtschutz sind bei diesen Eckfenstern sehr speziell. Naja, ist ein Feature, das man haben wollen muss.
     
    11ant gefällt das.
  17. #37 Kriminelle, 13.06.2023
    Kriminelle

    Kriminelle

    Dabei seit:
    16.05.2013
    Beiträge:
    3.498
    Zustimmungen:
    1.897
    Beruf:
    .
    Ort:
    Niedersachsen
    Ich würde auf der langen Fassade (Ost?) die planrechten Fenster weglassen (und eventuell je das Pendant im Norden einziehen). Letzteres muss man schauen, wie innen möbliert wird. Somit erreicht man etwas mehr Harmonie im Osten..
     
  18. #38 Brunnsae, 15.06.2023
    Brunnsae

    Brunnsae

    Dabei seit:
    15.06.2023
    Beiträge:
    1
    Zustimmungen:
    0
    Wir haben ein solches Dach mit dieser Neigung. Vorab; es ist gefällig und alle fanden und finden es gut.
    Das PROBLEM
     
  19. #39 JohnBirlo, 15.06.2023
    JohnBirlo

    JohnBirlo

    Dabei seit:
    28.05.2020
    Beiträge:
    1.228
    Zustimmungen:
    460
    Wir haben an drei Seiten einen Dachüberstand von 50cm und an der Südseite 1m. Ist super, weil zur Mittagszeit die Südseitenfassadefenster beschattet werden.

    Im übrigen fällt weder so ein von dir geplanter der Dachüberstand, noch die Dachneigung überhaupt auf. Da schaut doch kein Schwein dauerhaft hin.
     
Thema:

Walmdach mit Neigung von ca. 13 grad

Die Seite wird geladen...

Walmdach mit Neigung von ca. 13 grad - Ähnliche Themen

  1. Garage mit Walmdach, Holzbalkendecke dämmen

    Garage mit Walmdach, Holzbalkendecke dämmen: Hi zusammen, ich beschäftige mich derzeit mit der Frage, wie ich sinnvoll die Decke in meiner Garage dämmen kann. Zur Garage: Gemauert,...
  2. Walmdach mit Nagelplattenbinder – kleinen Raum ausbauen möglich?

    Walmdach mit Nagelplattenbinder – kleinen Raum ausbauen möglich?: Hallo ihr Lieben, ich bin hier neu (im Forum und auch unter den Hausbesitzern). Wir haben einen kleinen Bungalow gekauft und würden gerne wenn...
  3. Walmdach (Warm) Aufbau Zwischendecke

    Walmdach (Warm) Aufbau Zwischendecke: Hallo, ich habe einen Neubau bei dem auch das Walmdach komplett ausgebaut werden soll. Es handelt es sich um eine Holzbalkendecke. Im EG wurde...
  4. Walmdach zu Satteldach

    Walmdach zu Satteldach: Hallo Wissende, wir haben einen Altbau im Besitz der Familie aus dem Jahr 1930, mit Grundstruktur Vollziegel und einem Dach in Leichtbauweise. Am...
  5. Anleitung zum Schiften am ungleich geneigtem Walmdach

    Anleitung zum Schiften am ungleich geneigtem Walmdach: Hi Leute! Ich mache gerade eine Ausbildung zum Zimmerer und bin aktuell im zweiten Lehrjahr. Wir haben gerade mit dem Schiften am...