Wand abreißen und Wand ersetzen/verlegen

Diskutiere Wand abreißen und Wand ersetzen/verlegen im Architektur Allgemein Forum im Bereich Architektur; Hallo Bauexperten, Wir würden in unserem Haus ein paar Änderungen vornehmen. Die blaue markierte Wände mit dem Rote ersetzen, Und die gelbe...

  1. #1 Rob88, 22.01.2023
    Zuletzt bearbeitet: 22.01.2023
    Rob88

    Rob88

    Dabei seit:
    22.01.2023
    Beiträge:
    2
    Zustimmungen:
    1
    Hallo Bauexperten,
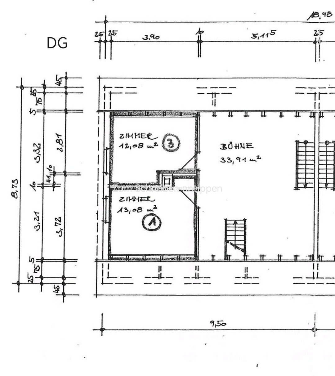
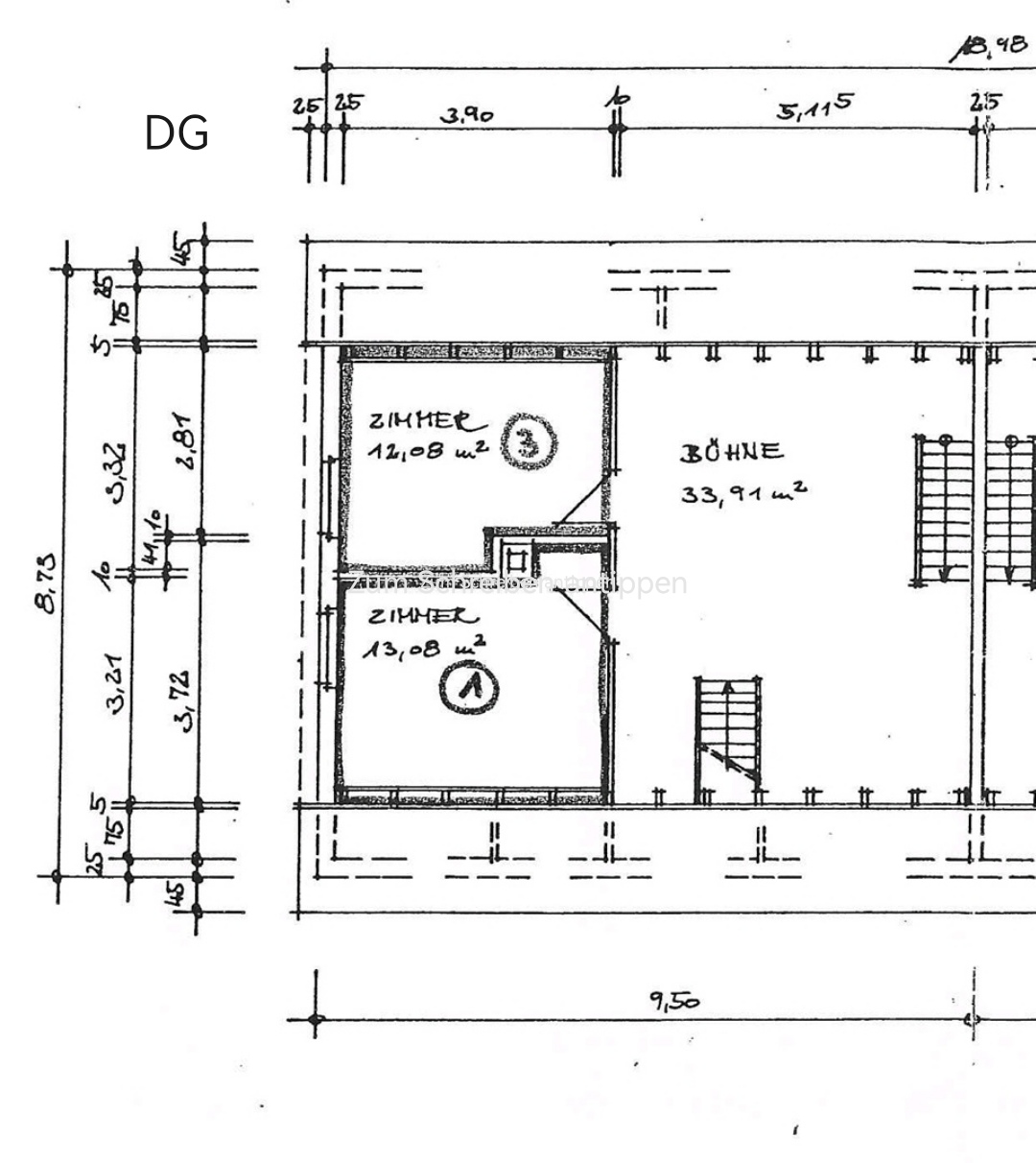
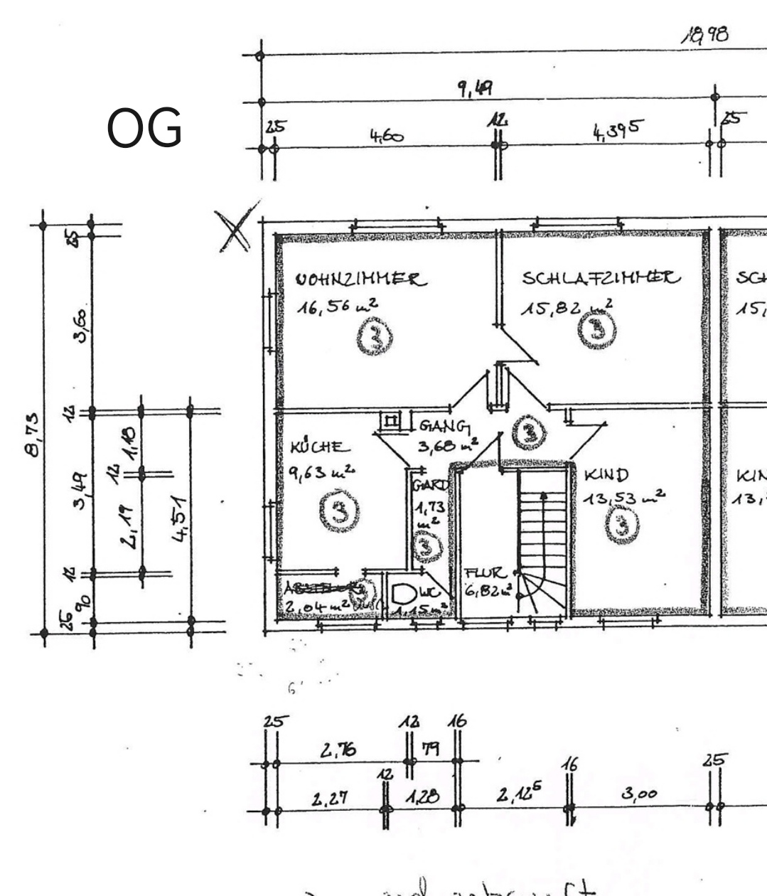
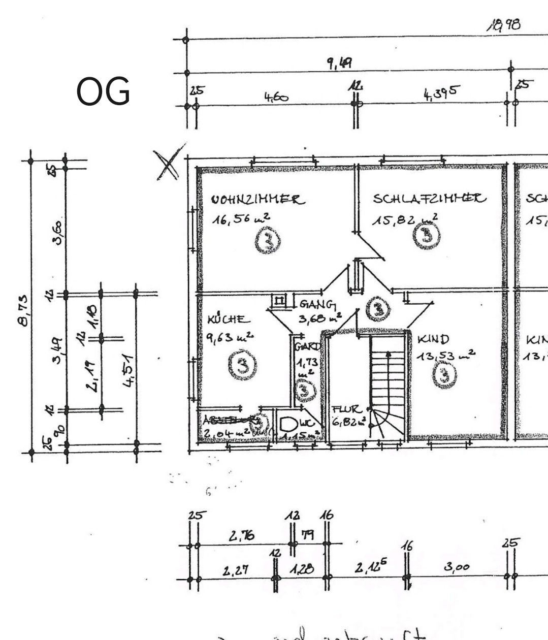
    Wir würden in unserem Haus ein paar Änderungen vornehmen. Die blaue markierte Wände mit dem Rote ersetzen,
    Und die gelbe einfach abreißen um einen größeren Wohnbereich zu haben. Haus befindet sich in BW, deklariert Massivbauweise und stammt aus dem 50er Jahre. Zwischendeckebauweise nicht bekannt vermutlich Holz.
    Vielen Dank im Voraus für eure Hilfe.
     
  2. 11ant

    11ant

    Dabei seit:
    28.02.2017
    Beiträge:
    2.486
    Zustimmungen:
    1.564
    Beruf:
    Bauherrenberater
    Ort:
    RLP Nord
    Benutzertitelzusatz:
    bringt Sie gut beraten ins Eigenheim
    Zur besseren Klärbarkeit Deiner Frage empfiehlt sich, daß Du Einblick in die Genehmigungsakte beim Bauamt nimmst (die hier gezeigten Zeichnungen entstammen vermutlich einer WEG-Teilungserklärung und lassen es entsprechend an bautechnischen Angaben mangeln). Das Baujahr des Hauses vermute ich in der Zwischenkriegszeit oder frühen Nachkriegszeit bis maximal Ende der 50er Jahre; nur innenliegende Toiletten, aber keine Bäder lassen eher ersteres vermuten. Die Decken werden Balkendecken sein. Leider läßt die Stärke der blauen Wände zwischen Küche und Garderobe eine Bundwand vermuten, die nur zusammen mit der im OG herausgenommen werden kann, möglicherweise aber auch bis in den Dachstuhl hinein eine Rolle spielt (dort oben sollte sich das per Ortstermin mit einem Zimmerer bestätigen oder bezweifeln lassen). Falls die blauen Wände entnommen werden können, wären sie durch leichte Wände zu ersetzen. Da ihr Aussteifungsbeitrag vermutlich entbehrlich ist, wäre dies als Trockenbauwand naheliegend, andernfalls eher aus Porenbeton. Auch die gelbe Wand halte ich nicht für entbehrlich, näheres sollte ihr "nackter Anblick" klären: also ob sie ohne Putz - ggf. nimmt man ersteinmal ein Balkensuchgerät - offenbart, Diagonalverstrebungen zu enthalten. Falls nein, mag es genügen, an ihrer Oberkante einen Unterzug einzusetzen. Kläre auch, ob nicht sogar Ensembleschutz besteht (ich vermute eine Werkssiedlung).
     
    hanghaus2000 und Rob88 gefällt das.
  3. #3 hanghaus2000, 23.01.2023
    hanghaus2000

    hanghaus2000

    Dabei seit:
    24.11.2021
    Beiträge:
    1.514
    Zustimmungen:
    625
    Beruf:
    Bauleiter, Kalkulator, Controller, Salzdesign
    Ort:
    Bayern
    Ohne Hilfe eines Fachmanns am besten eines Statikers würde ich über das Entfernen von Wänden nichts entscheiden.
     
    Rob88 und 11ant gefällt das.
  4. Rob88

    Rob88

    Dabei seit:
    22.01.2023
    Beiträge:
    2
    Zustimmungen:
    1
    Ich habe meinen alten Beitrag noch einmal gefunden und bin erstaunt, wie Sie alles aus der Karte herausfinden konnten. Daraufhin habe ich natürlich einen Statiker hinzugezogen.
    Leider gab es beim Bauamt keine Genehmigungskarte aus dem Jahr 1952 für diese Werkswaldsiedlung. Die Holzbalken in der Decke wurden dann ausgemessen, und die gelbe Wand bekam nebenan eine Kopie, um die anderen Wände abreißen zu können.
    Nach drei Jahren Sanierung bedanke ich mich nochmals für Ihre wertvolle Antwort.
    Übrigens: Die Wände waren in Mischbauweise ausgeführt, Holz mit Querstreben.
     

    Anhänge:

    11ant gefällt das.
Thema:

Wand abreißen und Wand ersetzen/verlegen

Die Seite wird geladen...

Wand abreißen und Wand ersetzen/verlegen - Ähnliche Themen

  1. Q3 Spachteln der Wände

    Q3 Spachteln der Wände: Guten Tag zusammen, wir bauen aktuell mit einem Bauunternehmen, zu dem das Vertrauen leider bereits stark gelitten hat. Nun wurde das Gewerk...
  2. Wand in Baupläne nicht vorhanden, hast das, die Wand ist nicht tragend?

    Wand in Baupläne nicht vorhanden, hast das, die Wand ist nicht tragend?: Hallo, ich habe leider noch keine passende Antwort gefunden. Wir möchten gerne einen Türdurchbruch machen. Leider ist die Wand jedoch nicht in...
  3. Wand Abreißen in Altbauwohnung 1901 - Unterlagen für den Bauantrag

    Wand Abreißen in Altbauwohnung 1901 - Unterlagen für den Bauantrag: Guten Tag zusammen, Wir besitzen 2 nebeneinander liegenden Wohnungen in einem typischen Leipziger Altbau von 1901. Das gebäude hat Keller, EG, 3...
  4. durchgemauerte Wand abreißen

    durchgemauerte Wand abreißen: Hallo zusammen, wir haben ein 1936 gebautes Haus erstanden. Die Substanz ist gut - alle Deckenbalken sind trocken und es gibt keinen...
  5. Loggia "abreissen" - Tragende Wand?

    Loggia "abreissen" - Tragende Wand?: Hallo zusammen, nachdem ich jetzt genug mitgelesen habe, kommt auch meine erste konkrete Frage. Ich habe ein RMH BJ. 65 gekauft, hier soll...