Welche Traufhöhe zählt?

Diskutiere Welche Traufhöhe zählt? im Architektur Allgemein Forum im Bereich Architektur; Gute Tag, ich mache gerade meinen Meister und bin gerade bei einem Projekt unschlüssig welche Traufhöhe nun gillt.(Rot oder Grün) Ich habe das...

  1. #1 Zimmermann96, 23.05.2020
    Zuletzt bearbeitet: 23.05.2020
    Zimmermann96

    Zimmermann96

    Dabei seit:
    23.05.2020
    Beiträge:
    1
    Zustimmungen:
    0
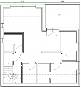
    Gute Tag,

    ich mache gerade meinen Meister und bin gerade bei einem Projekt unschlüssig welche Traufhöhe nun gillt.(Rot oder Grün)
    Ich habe das Dachgeschoss und ein Schnitt beigefügt. Die zulässge Trauhöhe ist 4,50m.
    Danke für´s antworten.
     

    Anhänge:

  2. Dimeto

    Dimeto

    Dabei seit:
    22.07.2017
    Beiträge:
    1.635
    Zustimmungen:
    2.145
    Beruf:
    Vermessungsingenieur
    Ort:
    NRW
    Rot, vorausgesetzt der BPlan bestimmt nichts anderes.
     
  3. #3 Wieland, 26.05.2020
    Wieland

    Wieland

    Dabei seit:
    06.10.2012
    Beiträge:
    649
    Zustimmungen:
    127
    Beruf:
    Maurer u. Stahlbetonbaumeister
    Ort:
    Bürstadt
    Benutzertitelzusatz:
    Maurer und Stahlbetonbaumeister
    4.49m
     
    BaUT gefällt das.
  4. #4 Fabian Weber, 26.05.2020
    Fabian Weber

    Fabian Weber

    Dabei seit:
    03.04.2018
    Beiträge:
    16.331
    Zustimmungen:
    6.489
    Grün, weil das die Haupt Hausform ist. Rot ist doch nur ein Rücksprung im Baukörper im Dachgeschoss.

    Jedenfalls hast Du jetzt zwei Meinungen :)
     
    BaUT gefällt das.
Thema:

Welche Traufhöhe zählt?

Die Seite wird geladen...

Welche Traufhöhe zählt? - Ähnliche Themen

  1. Bezugsebene Traufhöhe

    Bezugsebene Traufhöhe: Hallo zusammen, frisch angemeldet, um eine Frage zu stellen, die bei einiger Recherche nicht wirklich gelöst wurde, oder von mir einfach...
  2. Min. Traufhöhe von 5,5m - Eingeschossiger Anbau erlaubt?

    Min. Traufhöhe von 5,5m - Eingeschossiger Anbau erlaubt?: Moin zusammen, bei diesem Bebauungsplan (https://www.schermbeck.de/system/files/2022-05/Bebauungsplan%2055%20Wohnbebauung%20Spechort%20Plan.pdf)...
  3. Bebauungsplan (4m Traufhöhe, 38 grad Sattel)

    Bebauungsplan (4m Traufhöhe, 38 grad Sattel): Hi, Ich überlege ein Grundstück zu kaufen, dass folgende Informationen im Bebaungsplan enthält (NRW): Vollgeschossanzahl: 1 Maximale Traufhöhe:...
  4. Bebauungsplan (Rückfrage zur Traufhöhe / Nutzung eines Dachkranz)

    Bebauungsplan (Rückfrage zur Traufhöhe / Nutzung eines Dachkranz): Hallo zusammen, wir sind gerade dabei ein Grundstück kaufen. Der Bebauungsplan gibt folgendes vor: TH <=4,5m, FH <= 9,5m, OK < =7m, SH <= 0,5m,...
  5. Zählt eine Zwerchhaus mit zur Traufhöhe?

    Zählt eine Zwerchhaus mit zur Traufhöhe?: Guten Tag, wir planen gerade ein MFH und sind uns nicht sicher, ob die Traufhöhe der "Dachaufbauten" mit zur der im B-Plan festgelegten 6...