Grundriss 10x8/8,5: Schlafzimmer im Erdgeschoss

Diskutiere Grundriss 10x8/8,5: Schlafzimmer im Erdgeschoss im Architektur Allgemein Forum im Bereich Architektur; Wir werden beim 10x9 Grundriss bleiben. Meiner Frau gefällt die langgezogene Form des Hauses nicht. Die ist irgendwie wie eine DHH nur ohne andere...

  1. #261 Gast48331, 09.12.2018
    Gast48331

    Gast48331 Gast

    Wir werden beim 10x9 Grundriss bleiben. Meiner Frau gefällt die langgezogene Form des Hauses nicht. Die ist irgendwie wie eine DHH nur ohne andere Hälfte.
    Sie möchte sich auch nicht auf einen Grundriss einlassen.
    Der jetzige vom Architekten gefällt uns beiden soweit, sind aber für Anregungen offen.

    Der Grundriss wird gespiegelt, so das das Wohn-/Esszimmer auf der Westseite noch ein Fenster bekommen kann.
    Auf der Westseite kommen dann 2 Stellplätze (einer ggf. mit Carport) hintereinander.
    Auf der Ostseite kommt ein Anbau oder ähnliches hin, um dort Fahrräder usw. zu lagern. Optional steht dort noch ein weiterer Stellplatz zur Verfügung.

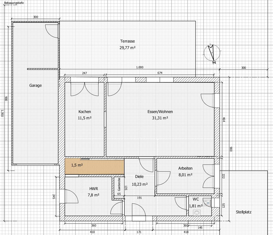
    Hier noch einmal meine Fragen und weitere.

    EG:
    • Ist der TV-Bereich groß genug oder solltem man diesen um x cm tiefer machen (dementsprechend die Treppe schieben)?
    • Die Diele ist insgesamt 2,35 m breit. Die Treppe ist 1 m breit (im OG plus 0,2 m Austritt). Sollte man die Breite so lassen oder ggf. etwas schmaler machen?
    • Die Tür von der Diele zum Wohn-/Esszimmer in den Raum oder in die Diele aufgehen lassen?
    • Wie sieht die Treppe bzw. die Diele einladender aus?
      • Treppe so lassen
        • Was macht man mit der Fläche unter der Treppe?
          • Offen lassen?
          • Abstellraum (von wo aus zugänglich)?
          • Auf die andere Seite packen, also zum HWR gewandt?
          • Einbauschränke für die Garderobe?
      • Treppe um 180° drehen
        • Hierdurch könnte der Eingangsbereich größer werden oder Einbauschränke für die Garderobe
    • Der HWR ist recht groß und läd vielleicht das ein oder andere Gewerk ein sich auszutoben ;-).
      • Vielleicht dort vom Flur aus die Garderobe einbuchten?
        • Im Gegenzug die Fläche vorm WC öffnen und ggf. den HWR um ca. 25 cm nach planunten verlängern.
    • Wie breit sollten die Türen zum HWR und WC sein?
      • Reichen 73,5er-Türen aus oder auch 86er-Türen?
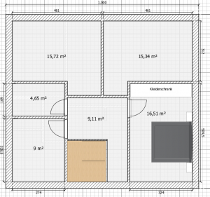
    OG:
    • Den Bereich vor den Kinderzimmern so lassen oder die Tür von Kind 2 weiter schieben, also bündig zum Treppenaustritt?
    • Der Abstellraum etwas schmaler machen, so das auf der einen Seite 50 oder 60 cm breite Regale passen.
      • Die Dusche wird etwas weiter in Richtung Kind verlängert, jedoch mit einem Zwischenraum, z.B. für Technik usw.
    • Wie breit sollte die Tür zum Abstellraum sein?
      • Reicht eine 73,5er-Tür aus oder auch eine 86er-Tür?
    • Die Tür zum Bad (und dementsprechend zum Schlafzimmer) 40-45 cm hochschieben, so dass dahinter noch Schränke passen? Oder reicht der Platz zwischen Badewanne und Dusche aus um dort 1-2 schmale Schränke hinzustellen?
    • Wenn die Treppe so bleibt: einen Überstand machen?
     

    Anhänge:

    • 4b EG.PNG
      4b EG.PNG
      Dateigröße:
      96,4 KB
      Aufrufe:
      5.472
    • 4b OG.PNG
      4b OG.PNG
      Dateigröße:
      61,7 KB
      Aufrufe:
      1.533
    11ant gefällt das.
  2. simon84

    simon84
    Moderator

    Dabei seit:
    11.11.2012
    Beiträge:
    22.968
    Zustimmungen:
    6.749
    Beruf:
    Schrauber
    Ort:
    Muenchen
    Gemeint ist vermutlich damit: Das Wohnzimmer ist so zugeballert mit Fenstern und Möbeln, dass es überhaupt keine freien Stellflächen mehr gibt.
     
  3. #263 Gast48331, 13.12.2018
    Gast48331

    Gast48331 Gast

    Hm, einerseits sollen Fenster rein, damit Licht reinkommen kann, anderseits müssen ein paar Möbel ins Wohnzimmer.
    Eigentlich sind es nicht mal viele Möbel: eine Couch, TV-Schrank, ein Schrank und die Esstisch-Gruppe.

    Wenn das Haus 10 Meter breit ist, dann kann man die Bereiche Kochen/Essen/Wohnen entweder auf diese Breite, also eigentlich nur 9,30 Meter verteilen und diesen Bereich tiefer machen. Oder aber nutzt einen L-Raum uns lässt den Bereich der in den Hintergrund soll um die Ecke verschwinden. Hierbei hätte man dann die 9,30 Meter zum Garten für 2 Bereiche, dafür nicht ganz so tief.

    Oder gibt es noch eine andere Idee?

    Ich hab auch nochmal einen 8,5 Meter-Grundriss, welcher hier nicht sofort auseinander genommen wurde, auf 9 Meter verlängert und die Treppe anders gesetzt. Hab leider nur noch ein Screenshot.
    3 EG 9 Meter.png 3 OG 9 Meter.png
    Vielleicht zieht man das Arbeitszimmer noch etwas hoch, damit der Bereich vorm WC etwas größer wird. Die Wand zwischen Küchen und Wohnzimmer könnte auch weg oder zum Garten hin halbhoch werden. Im Flur oben gehört natürlich noch ein Fenster. Den Flur oben könnte man auch noch etwas breiter machen, falls dieser zu eng sein sollte. Dann würden die eigentlich zu großen Kinderzimmer etwas kleiner werden.

    Und dann hätte ich hier noch einen Grundriss (ohne Fenster und Türen), aufbauend auf dem Danwood P 151.3.
    P151.3W EG.png P151.3W OG.png
    Kann sein, dass die U-Treppe etwas zu groß ist. Die Treppe könnte man vielleicht auch noch etwas nach unten ziehen. Der Antritt wäre noch offen. Angedacht hätte ich diesen vor der Tür zum Wohnzimmer, so dass der Bereich unter der Treppe rechts unten begehbar wäre.

    Des Weiteren hätte ich noch den Park 151W von Danwood. Vielleicht kann auf diesem auch aufbauen?
    upload_2018-12-13_9-59-48.png upload_2018-12-13_10-0-6.png
     
  4. simon84

    simon84
    Moderator

    Dabei seit:
    11.11.2012
    Beiträge:
    22.968
    Zustimmungen:
    6.749
    Beruf:
    Schrauber
    Ort:
    Muenchen
    Machen kann man viel. Wolltet ihr nicht auch bauen ? Bald ist 2019 :)
     
  5. #265 Gast48331, 13.12.2018
    Gast48331

    Gast48331 Gast

    Das wollen wir ... aber sind mit den bisherigen Grundrissen irgendwie nicht so ganz zufrieden.
    OK, wir werden durchs Internet leider wohl auch sehr verunsichert.
     
  6. simon84

    simon84
    Moderator

    Dabei seit:
    11.11.2012
    Beiträge:
    22.968
    Zustimmungen:
    6.749
    Beruf:
    Schrauber
    Ort:
    Muenchen
    Ein paar wenige, Eckpunkte müsst ihr euch knallhart setzen.

    Fang doch mal mit den Baukörpermaßen außen und Position und Form vom Treppenhaus an.

    Einigt euch darauf. Das wird bei euch in der Familie besprochen, beschlossen und dann NICHT mehr geändert.

    Zwischenwände, Fensterposition usw. könnt ihr ja weiter nach belieben schieben.

    Sonst kommt ihr hier echt nicht weiter, wenn jede Woche ein anderer Vorlagegrundriss aus dem Ärmel geschüttelt wird.
     
    Kriminelle und 11ant gefällt das.
  7. #267 Gast48331, 13.12.2018
    Gast48331

    Gast48331 Gast

    Meine Frau kann sich nicht auf ein 90° gedrehtes Haus einlassen, daher bleibt es bei 10 Meter breit und 9 Meter tief.

    Da sind wir flexibel. Es muss keine gerade Treppe sein. Es sollte nur noch so eine total verwinkelte Treppe sein wie #44.

    Wir sind uns auch einig, dass auf der Westseite keine Garage kommt, sondern 2 Stellplätze hintereinander, ggf. einer mit Carport.
     
  8. simon84

    simon84
    Moderator

    Dabei seit:
    11.11.2012
    Beiträge:
    22.968
    Zustimmungen:
    6.749
    Beruf:
    Schrauber
    Ort:
    Muenchen
    Ihr sollt nicht flexibel sein, sondern euch endlich mal festlegen, damit ihr weiterkommt und euch nicht ständig im Kreis dreht !!
    Thema Treppe und Treppenhaus abhaken und weitermachen, es gibt noch viel zu tun.
     
    11ant gefällt das.
  9. #269 Gast48331, 13.12.2018
    Gast48331

    Gast48331 Gast

    Natürlich finden wir eine gerade Treppe schön, aber wenn diese nicht funktioniert, dann kann es auch eine U-Treppe, 1/4 oder 2/4 gewendelte Treppe sein. Auch eine Eck-Treppe ist in Ordnung.

    Ich hatte bei manchen Grundrissen mit einer U-Treppe nicht das Gefühl, dass hierdurch wirklich weniger Flur/Diele entsteht. Eine gerade Treppe teilt das Haus genauso auf wie die andere Treppenformen.
     
  10. #270 jodler2014, 13.12.2018
    Zuletzt bearbeitet: 13.12.2018
    jodler2014

    jodler2014

    Dabei seit:
    20.12.2014
    Beiträge:
    3.906
    Zustimmungen:
    540
    Beruf:
    Angestellter
    Ort:
    RP
    Einen passenden Grundriss für Euer GS findet man auch nicht im Internet .
    Und fertige Grundrisse von Hausbaufirmen passen auch nicht ,weil durch Verschieben von Wänden etc. der ganze Grundriss nicht mehr funktioniert.
    Hausbau ist keine Geometrie .
    Und Fußball ist keine Mathematik .
    Vertrag unterschrieben?
     
    11ant gefällt das.
  11. #271 Gast48331, 14.12.2018
    Gast48331

    Gast48331 Gast

    Nein, warum?
    Einen Vertrag wird es erst geben, wenn der Grundriss soweit im Klaren ist. Vorher weiß man ja auch noch nicht wie teuer es werden wird.

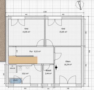
    Aber was ist denn mit diesem Grundriss (Türen und Fenster sind nur exemplarisch)?
    upload_2018-12-14_10-47-13.png upload_2018-12-14_10-47-43.png
    Die 1/4 gewendelte Treppe stört im EG nicht und erzeugt unnötige Diele. OK, dafür oben im Flur, aber dort ist tendenziell auch Platz. Irgendwo wird man immer Verkehrsfläche um eine Treppe haben.

    Auf dem 1. Blick sehen die Raumgrößen in Ordnung aus. Der HWR ist vielleicht was blöd zu stellen und die Küche vielleicht ein wenig zu lang gezogen. Unter der Treppe ist jedoch auch noch ein wenig Abstellfläche.
     
  12. 11ant

    11ant

    Dabei seit:
    28.02.2017
    Beiträge:
    2.368
    Zustimmungen:
    1.434
    Beruf:
    Bauherrenberater
    Ort:
    RLP Nord
    Benutzertitelzusatz:
    bringt Sie gut beraten ins Eigenheim
    So viel Glühwein kann ich garnicht picheln, daß da etwas in Ordnung aussieht. Auf den ersten Blick sehe ich da nur im OG einen Flur mit mehr Andertreppeentlanglauffläche, als jemals im EG an eigentlicher Treppenfläche gespart werden könnte. Sechs und setzen langt da nicht mehr, eine Woche Hofdienst !

    Nein, kann man ganz gewiß nicht: ein Grundriß, der in einer Dimension zu groß ist, funktioniert NIE. Egal wie annähernd flächengleich er mit den Soll-Maßen wäre, denn das wäre nur die quantitative Ebene. Auf einem Bein steht man schlecht, auch wenn man noch so große Ohren hat.

    Du solltest wirklich endlich aufhören, Rosenkränze mit Beispielgrundrissen zu beten.
     
    Kriminelle und simon84 gefällt das.
  13. #273 Fabian Weber, 14.12.2018
    Fabian Weber

    Fabian Weber

    Dabei seit:
    03.04.2018
    Beiträge:
    15.847
    Zustimmungen:
    6.191
    Nimm den, das beste Gefühl ist, wenn die Entscheidung endlich gefallen ist.
     
    simon84 gefällt das.
  14. #274 jodler2014, 14.12.2018
    jodler2014

    jodler2014

    Dabei seit:
    20.12.2014
    Beiträge:
    3.906
    Zustimmungen:
    540
    Beruf:
    Angestellter
    Ort:
    RP
    Grundriss in #274 geht .
    Oder die Treppe gegen einen Aufzug tauschen.
     
  15. #275 Gast48331, 15.12.2018
    Gast48331

    Gast48331 Gast

    Nun ja, ich sehe in kaum einem Standard-Grundriss einer 130-150 m² Statdtvilla im OG einen kleineren Flur ;-).
    Ich hab bei dem Grundriss mal eine U-Treppe probiert. Davon ab, das diese dann im Wohnzimmer Stellfläche wegnehmen würde, wäre der Flur, wenn dort ein Fenster drin sein soll, oben genauso groß.

    Wir reden bei diesem Grundriss aber von 7 cm, die das Haus schmaler werden würde, dafür aber einiges tiefer.

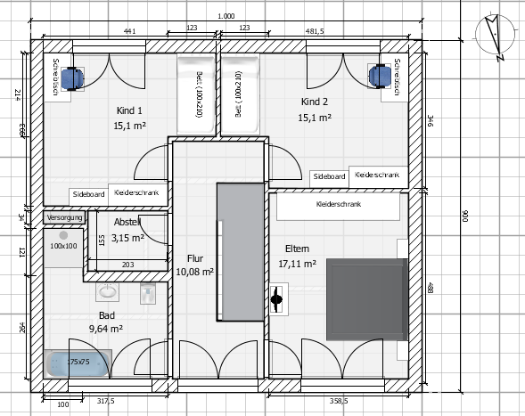
    Hier mal auf die Schnelle ein wenig umgezeichnet (U-Treppe beispielhaft mit 213x200). Fenster fehlen noch und oben die Kinderzimmer, den Abstellraum und das Bad könnte man vielleicht auch noch schieben:
    upload_2018-12-15_16-28-9.png upload_2018-12-15_16-28-53.png

    Ernst gemeint?

    Durch diese Äußerung kommt eher etwas Ironie durch ;-).

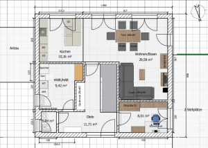
    Der HWR war mit dem Durchgang unter die Treppe nicht wirklich doll. Dadurch ging Stellfläche im HWR verloren. Anderseits ist die Küche auch recht lang gezogen, so dass ich die ein wenig verkleinert habe und von dort aus einen Zugang unter die Treppe (mit kleinem Vorraum) geschaffen habe. Diese Fläche kann dann als Speisekammer oder vielleicht auch in der Ecke als Abstellraum genutzt werden.
    upload_2018-12-15_13-24-15.png upload_2018-12-15_13-24-42.png

    Oben gefällt mir das mit dem Abstellraum irgendwie nicht so wirklich. Eigentlich geht es doch nur darum Fläche (ca, 200x60 cm) zu schaffen. Hab schon überlegt, ob man nicht analog der Garderobe im EG auch im OG einen Einbauschrank im Flur (z.B. bei einem Kinderzimmer) machen kann.
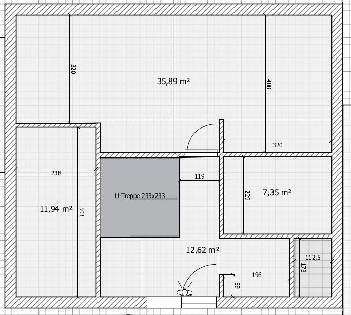
    Eine andere Idee wäre im EG das WC nach vorne zur Diele zu ziehen und die Fläche dahinter als Kofferraum (Abstellraum) vom Arbeitszimmer aus zu nutzen. Dann sollte man doch eigentlich genug Abstellflächen haben. Der Schreibtisch ist automatisch höhenverstellbar (und dahinter dann eine 1 Meter hohen Tür), oder man stellt dort nen Schrank (mit Hinterausgang) hin.
    upload_2018-12-15_13-45-36.png
     
  16. #276 Kriminelle, 15.12.2018
    Kriminelle

    Kriminelle

    Dabei seit:
    16.05.2013
    Beiträge:
    3.500
    Zustimmungen:
    1.898
    Beruf:
    .
    Ort:
    Niedersachsen
    Boah, was für Prioritäten in den Einlässen ... ich gehe davon aus, dass das Erstgeborene ein Junge sein sollte, bei einer Zwillingsgeburt wäre das egal ;)

    Was soll sich da ändern? Nichts. Alle Faktoren stehen fest.

    Dann nutz diesen langen Flur und ziehe da Einbauschränke ein.
     
  17. #277 Gast48331, 16.12.2018
    Gast48331

    Gast48331 Gast

    Ich gehe davon aus, dass Du keine Kinder hast? Man wünscht sich in erster Linie eines: gesunde Kinder.
    Und warum wäre es bei einer Zwillingsgeburt egal? Zwillinge sind nicht zwangsläufig ein Pärchen. Es gibt zweieiige Zwillinge, bei denen es ein Junge und ein Mädchen sind, aber auch bei denen es 2 Jungen oder Mädchen sind. Und dann gibt es auch noch die eineiige Zwillinge, bei denen i.d.R. beide das gleiche Geschlecht haben und die DNA zu 99% übereinstimmt.

    Keine Ahnung, vielleicht die Anzahl/Sonderformen von Fenster und dementsprechend elektr. Rollos, die zu fliesende Flächen, Anzahl von Türen, laufende Meter an innencliegenden Wänden. Der BT möchte erst den Grundriss abwarten.
    Soll uns doch recht sein. Denn ist es nicht so, dass wenn erstmal was unterschrieben ist, dass ab dann die Änderungen kosten?
     
  18. #278 Gast82596, 16.12.2018
    Gast82596

    Gast82596 Gast

    Kühlschrank und Ofen nebeneinander
     
  19. #279 driver55, 16.12.2018
    driver55

    driver55

    Dabei seit:
    22.02.2008
    Beiträge:
    6.658
    Zustimmungen:
    1.667
    Beruf:
    Dipl.-Ing.
    Ort:
    Pforzheim
    Bis das hier was wird, sind die Zinsen wieder bei 4%:biggthumpup:
     
    11ant gefällt das.
  20. simon84

    simon84
    Moderator

    Dabei seit:
    11.11.2012
    Beiträge:
    22.968
    Zustimmungen:
    6.749
    Beruf:
    Schrauber
    Ort:
    Muenchen
    Jetzt wird die Küche schon wieder geplant bevor der Baukörper fest ist.....
     
Thema: Grundriss 10x8/8,5: Schlafzimmer im Erdgeschoss
Besucher kamen mit folgenden Suchen
  1. grundriss einfamilienhaus 10 x 8

    ,
  2. smarte Grundrissplanung 10x8m

    ,
  3. erdgeschoss grundriss haus 10x10

    ,
  4. grundriss haus 8 5 x 10,
  5. reihenhaus grundrisse beispiele,
  6. haus 10x8,
  7. Haus Grundriss 8 x 10 m nur erdgeschoss,
  8. grundriss haus 10x10,
  9. grundrisse 8.5 mal 10,
  10. einfamilienhaus pultdach gerade treppe,
  11. grundriss 100 qm 3 schlafzimmer,
  12. grundriss eg einfamilienhaus 8×12,
  13. einfamilienhaus schlafzimmer erdgeschoss,
  14. grundriss unten schlafen oben wohnen,
  15. grundriss haus 10 x 8 5,
  16. bautagebuch signus,
  17. grundrisse einfamilienhäuser 10x8 m,
  18. erdgeschoss schlafzimmer plan,
  19. 10x8 grundriss,
  20. Grundriss Erdgeschoss mit Schlafzimmer und arbwitszimmer,
  21. reihenhaus grundriss 8 5 x 9 8 m,
  22. offener grundriss einfamilienhaus,
  23. grundriss 10 x 10,
  24. grundriss 10 x 8 5,
  25. grundriss haus oben Schlafzimmer
Die Seite wird geladen...

Grundriss 10x8/8,5: Schlafzimmer im Erdgeschoss - Ähnliche Themen

  1. Grundriss Stadtvilla (155qm2) - Eure Anmerkungen werden gebraucht!

    Grundriss Stadtvilla (155qm2) - Eure Anmerkungen werden gebraucht!: Hallo zusammen, meine Frau und ich planen bald zu bauen (Grundstück, 760qm2 ist bereits in unserem Besitz). Wir möchten gerne zweigeschossig...
  2. Grundriss Haus

    Grundriss Haus: [ATTACH] [ATTACH] Ich wollte euch mal nach eurer Meinung zu diesen Grundrissplänen unseres Einfamilienhauses fragen? Wie findet ihr diese...
  3. Grundriss EFH Nordgarten - Feedback erwünscht

    Grundriss EFH Nordgarten - Feedback erwünscht: Hallo zusammen, wir sind eine Familie mit zwei Kindern (2+5J) und haben ein Grundstück für den Bau eines EFH (Satteldach, 1 Vollgeschoss)...
  4. Optimierung Grundriss - Eure Ideen oder Empfehlung Archi

    Optimierung Grundriss - Eure Ideen oder Empfehlung Archi: Ihr Lieben, Wir bauen den DB aus. Weil wir wenig Erfahrung haben und möglicherweise eine Baugenehmigung brauchen, haben wir ein Architekturbüro...
  5. Hilfe bei Grundriss-Optimierung unserer DHH in Weinheim – junges Paar sucht kreative Ideen!

    Hilfe bei Grundriss-Optimierung unserer DHH in Weinheim – junges Paar sucht kreative Ideen!: Hallo zusammen, 1. Wir sind: wir sind ein junges Paar und wollen uns für unsere Familie - 2 Erwachsene, 31 und 28 Jahre alt + 2 Kinder, 11Monate...