Grundriss 10x8/8,5: Schlafzimmer im Erdgeschoss

Diskutiere Grundriss 10x8/8,5: Schlafzimmer im Erdgeschoss im Architektur Allgemein Forum im Bereich Architektur; Beim letzten sehe ich eher eine 2/4 gewendelte Treppe, da sparst Du Dir den unsinnigen Flur im OG. Unten springt dann noch unter der Treppe ein...

  1. #81 Kriminelle, 22.10.2018
    Kriminelle

    Kriminelle

    Dabei seit:
    16.05.2013
    Beiträge:
    3.638
    Zustimmungen:
    1.997
    Beruf:
    .
    Ort:
    Niedersachsen
    Beim letzten sehe ich eher eine 2/4 gewendelte Treppe, da sparst Du Dir den unsinnigen Flur im OG.
    Unten springt dann noch unter der Treppe ein Abstellraum raus, den man als Garderobenschrank nutzen kann.
    DIese 35cm tiefe Garderobennische reicht ja gerade mal für die Tagesjacken.
     
  2. #82 Gast48331, 23.10.2018
    Gast48331

    Gast48331 Gast

    Auf die Schnelle habe ich den Entwurf noch einmal umgezeichnet. So könnte man vielleicht die Garderobe zwischen Eingang Treppe EG und Ausgang Treppe OG packen, Die Treppe könnte vielleicht auch noch ein wenig weiter in Richtung Außenwand oder auch anders geschwungen sein. Wichtig wäre nur, dass man oben so rauskommt, dass man ins Badezimmer kommt.

    Im EG wäre die Küche hingegen entweder zu klein (wenn man diese einzeilig positioniert) oder zu groß (wenn es eine U-Form wird). Aber das schaue ich mir später noch einmal an.

    Ganz ehrlich, ich hab unsere Garderobe (Garderobenleiste) nachgemessen, und da hängen einige Jacken. Die ist noch nicht mal 35 cm tief mit Jacken und nur 70-80 cm breit ... aber hier kann man bestimmt noch ein wenig nachjustieren ;-).
     
  3. #83 simon84, 23.10.2018
    simon84

    simon84
    Moderator

    Dabei seit:
    11.11.2012
    Beiträge:
    23.215
    Zustimmungen:
    6.872
    Beruf:
    Schrauber
    Ort:
    Muenchen
    Und bei mir sind 3 Meter Garderobenschrank im Flur mit 60 Tiefe und alles ist voll.
    Da sieht man mal wieder wie sinnlos solche allgemeinen Grundrissdiskussionen teilweise sind.
    Es muss für dich passen und für niemand anders.
    Der einzige der hier helfen kann ist ein Architekt der auf die persönlich eingeht und die kritischen Fragen stellt.
    Deshalb bin ich auch kein Fan davon mit Skizzem zum Architekt zu gehen, sondern lieber mit Checklisten der Nutzungs/Funktionsanforderungen.
     
  4. #84 Kriminelle, 23.10.2018
    Kriminelle

    Kriminelle

    Dabei seit:
    16.05.2013
    Beiträge:
    3.638
    Zustimmungen:
    1.997
    Beruf:
    .
    Ort:
    Niedersachsen
    Da magst Du recht haben, aber nur bedingt. Viele Männer unterschlagen die Saisongarderobe, vor allem aber die Schuhe der Frau, sowie die anfallende Kindergarderobe, die ja noch nicht da ist.
    Mein Mann hat mittlerweile mehr Schuhabstellfläche als ich als Frau, weil ich saisonal wechsel. Das ist zusammen ein ganzes Bücherregal, ohne Arbeits- und Gummistiefel für Garten, Wald oder Sport.
    Allein für Taschen braucht man Platz.
    Anstatt einer Kammer mit zwei kleinen Regalen würde ich im Flur einen Einbauschrank einplanen. Spart Fläche und sieht edel aus.
     
    simon84 gefällt das.
  5. #85 jodler2014, 23.10.2018
    jodler2014

    jodler2014

    Dabei seit:
    20.12.2014
    Beiträge:
    3.907
    Zustimmungen:
    542
    Beruf:
    Angestellter
    Ort:
    RP
    Ist der Vertrag eigentlich schon unterschrieben ?:winken
     
  6. #86 Gast48331, 24.10.2018
    Gast48331

    Gast48331 Gast

    Doch, ich neben meiner Frau habe ich auch noch 2 Mädchen ;-).
    Unsere Garderobe ist auch jetzt schon gut gefüllt bzw. manchmal überfüllt, aber mit den 20 Haken kommen wir gut aus und Schuhe stehen von jedem nur 2-3 Paar im Flur ... aber hast schon recht, wenn der Platz verfügbar ist, dann sollte man ein wenig mehr Platz einplanen.

    Nein, wir suchen ja noch nach dem Grundriss :-). Der Architekt arbeitet dran.

    Mal ne andere Frage zum Thema HWR/HAR:
    Wenn man einen solchen Raum hinter dem Wohnzimmer platzieren würde, wie im letzten Entwurf, bekommt man davon was auf der Couch mit (wenn man jetzt nicht gerade Waschmaschine und Trockner genau auf der anderen Wandseite hat?
     
  7. #87 Lexmaul, 24.10.2018
    Lexmaul

    Lexmaul

    Dabei seit:
    15.09.2014
    Beiträge:
    8.921
    Zustimmungen:
    2.163
    Benutzertitelzusatz:
    Mimosenlecker
    Klar
     
  8. #88 Gast48331, 24.10.2018
    Gast48331

    Gast48331 Gast

    Also den Raum weit weg von der Couch?
    Hätte gedacht, dass wenn man die Technik irgendwo im Bereich zur Außenwand packt, dass es dann so wäre, wie wenn der Raum in einer anderen Ecke der Etage wäre.
     
  9. #89 Lexmaul, 24.10.2018
    Lexmaul

    Lexmaul

    Dabei seit:
    15.09.2014
    Beiträge:
    8.921
    Zustimmungen:
    2.163
    Benutzertitelzusatz:
    Mimosenlecker
    Warum sollte das so sein? Schallschutz im EFH ist meist kein echtes Thema und einen Trockner oder schleudernde WaMa hört man halt einfach - höre die sogar aus dem Keller. Aber dann nur wenn es still im Hause ist ;)

    Ist immer subjektiv, wie einen das stört - die Maschinen laufen ja nicht 24h durch.

    Wärmepumpe ist da schon nen ganz anderes Kaliber.
     
    simon84 gefällt das.
  10. #90 Gast48331, 24.10.2018
    Gast48331

    Gast48331 Gast

    Jetzt wo Du es sagst: wir hören unsere auch ein wenig, wenn die läuft ;-).
    Aber da kann man ja optional auch so ne Schallschutzmatte drunter machen, so dass nicht alles über die Fliesen aufs Mauerwerk übertragen wird.

    Es wird wohl eine Gas-Therme. Da hört man vielleicht mal das klacken zum Anzünden.
     
  11. #91 Lexmaul, 24.10.2018
    Lexmaul

    Lexmaul

    Dabei seit:
    15.09.2014
    Beiträge:
    8.921
    Zustimmungen:
    2.163
    Benutzertitelzusatz:
    Mimosenlecker
    Da hört man auch wohl mehr ;)

    Und eine Schallschutzmatte eliminiert keine Eigengeräusche.
     
  12. #92 Gast48331, 24.10.2018
    Gast48331

    Gast48331 Gast

    z.B.?

    Klar, das Schleudern verursacht nun mal Geräusche.
     
  13. #93 Lexmaul, 24.10.2018
    Lexmaul

    Lexmaul

    Dabei seit:
    15.09.2014
    Beiträge:
    8.921
    Zustimmungen:
    2.163
    Benutzertitelzusatz:
    Mimosenlecker
    Nicht nur das schleudern - und bei einer Gastherme gibt es mehr Geräusche als nur das Einschalten. Brennluftgebläse, Verbrennung - alles keine Abbruchhammer, aber man kann diese hören ;)
     
    simon84 gefällt das.
  14. #94 jodler2014, 25.10.2018
    Zuletzt bearbeitet: 25.10.2018
    jodler2014

    jodler2014

    Dabei seit:
    20.12.2014
    Beiträge:
    3.907
    Zustimmungen:
    542
    Beruf:
    Angestellter
    Ort:
    RP
    Noch keinen funktionierenden Grundriss und schon wird das Thema Schallschutz angeschnitten.:not_w1:
    Natürlich kann man Betriebsgeräusche von WaMa , WT , WP , GT eindämmen.
    Es gibt Zimmertüren mit erhöhter Schallschutzklasse und man kann auch die Innenwände so bauen , daß eine Schallübertragung minimalisiert wird.
    Machen kann man viel.
     
    11ant gefällt das.
  15. #95 Gast48331, 26.10.2018
    Gast48331

    Gast48331 Gast

    Eigentlich sollte es nur darum gehen, ob es sinniger ist den HWR soweit wie möglich vom Wohnbereich zu positionieren ;-).
     
  16. #96 Kriminelle, 26.10.2018
    Kriminelle

    Kriminelle

    Dabei seit:
    16.05.2013
    Beiträge:
    3.638
    Zustimmungen:
    1.997
    Beruf:
    .
    Ort:
    Niedersachsen
    Naja, dann schau mal, wie Du das auf kleiner Fläche mit offenem Grundriss machen willst.
    Du baust ja keinen 180qm-Bungalow, wo man das beherzigen kann.
    Unsere Gastherme und KWL hört man aus dem HWR nicht im Flur, wenn die Tür zu ist.
    Und wie oft und wann ist der Schleudermodus der WM in Gang? ... da spielen wahrscheinlich Wassergeräusche aus dem Küchenhahn oder der konventionelle Dunstabzug eine größere Rolle, aber hey: wohnen wollt Ihr. Da wird geredet, gespielt, gegessen, der TV läuft und das Radio dudelt.
     
  17. #97 driver55, 28.10.2018
    Zuletzt bearbeitet: 28.10.2018
    driver55

    driver55

    Dabei seit:
    22.02.2008
    Beiträge:
    6.812
    Zustimmungen:
    1.760
    Beruf:
    Dipl.-Ing.
    Ort:
    Pforzheim
    Aber auch nur wegen der Schuhgröße 45 vs. 38:biggthumpup:

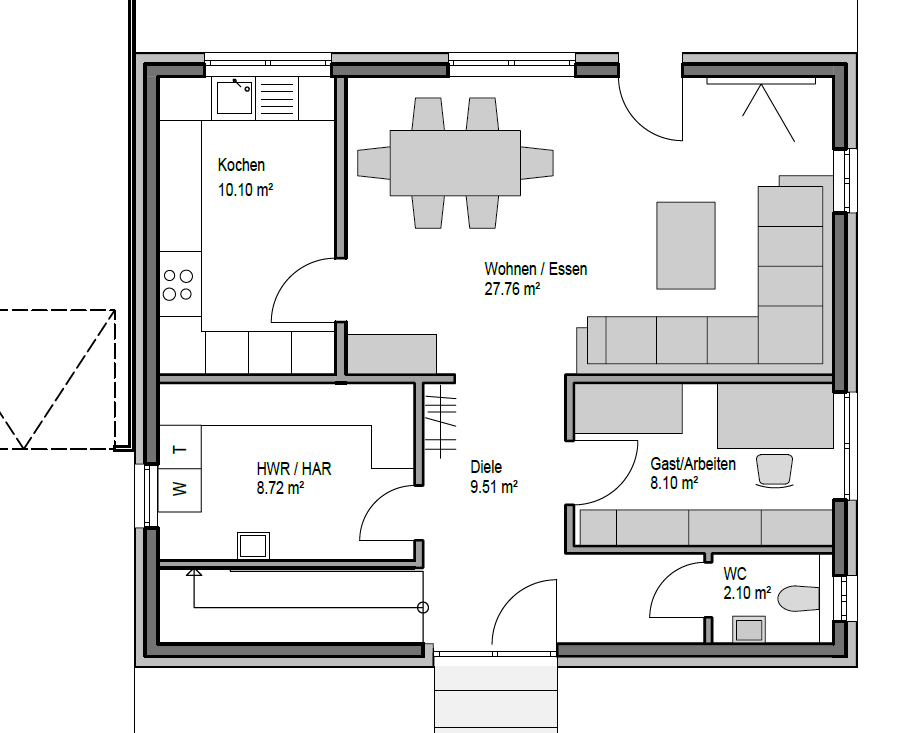
    Zum Grundriss: Ohne ordentlichen Plan (mit Bemaßung...) ist keine Bewertung möglich. Ich sehe lediglich ca. 38 m² KÜCHE/ESSEN/WOHNEN. Viel zu klein für 4 Köpfe, auch wenn du die "Hütte" so klein wie möglich haben willst.

    Ihr solltet euch lediglich notieren was ihr wollt (Bedarf) und nicht, wie es aussehen soll (Planung), denn es gibt Leute, die haben das mal studiert...;)
     
  18. #98 Gast48331, 31.10.2018
    Gast48331

    Gast48331 Gast

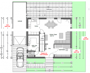
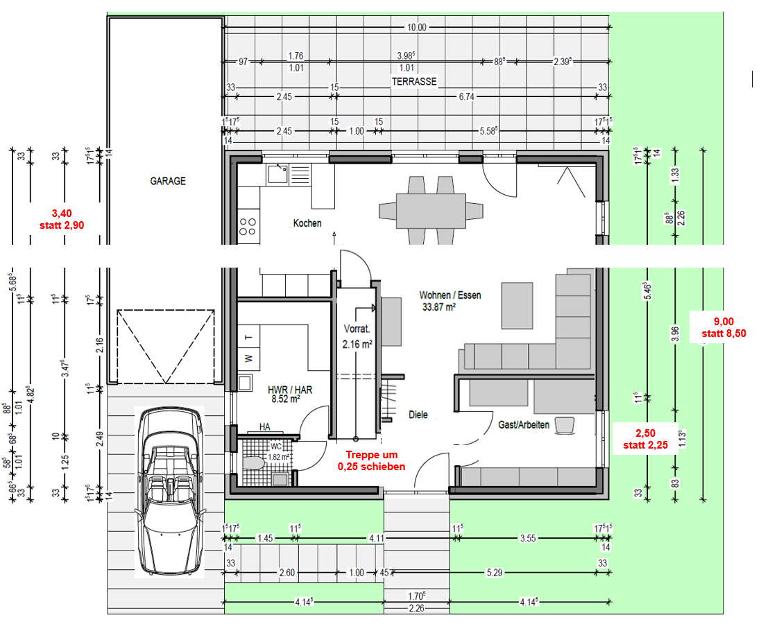
    So, der neue Grundriss (mit 10x8,5 Meter) ist da ;-) ... quasi so wie ich es mal gezeichnet habe.

    Ich weiß nicht, ob wir es zu eng sehen, aber das Wohnzimmer hat eine Tiefe von ca. 410 cm. Ist das nicht bisschen wenig Abstand zum TV?
    Wenn ich mir diverse Seiten anschaue, wie der optimale Abstand von Couch zum TV sein sollte, dann bin ich schockiert. Für unseren 42 Zoll empfiehlt man ca, 320 cm ... im Moment haben wir 490 cm und empfinden den Abstand als angenehm.

    Ansonsten finden wir den Grundriss gut gelöst. Nur der Bereich vorm WC ist ein wenig unnütze Fläche und oben der Flur direkt an der Treppe.

    Und dieser Entwurf hat auf der Eingangsseite quasi nur die Eingangstür ... nicht sonderlich einladend. OK, das Fenster im Schlafzimmer hinterm Bett könnte man noch auf die andere Seite schieben. Aber im OG im Bereich der Treppe macht ein Fenster zur Eingangsseite wahrscheinlich nur bedingt Sinn ... die kommt man dann ja quasi nicht dran (zum putzen).
     

    Anhänge:

    • 4 EG.png
      4 EG.png
      Dateigröße:
      45,4 KB
      Aufrufe:
      553
    • 4 OG.png
      4 OG.png
      Dateigröße:
      35,2 KB
      Aufrufe:
      557
  19. #99 Lexmaul, 31.10.2018
    Lexmaul

    Lexmaul

    Dabei seit:
    15.09.2014
    Beiträge:
    8.921
    Zustimmungen:
    2.163
    Benutzertitelzusatz:
    Mimosenlecker
    Also Küche ist echt klein - grad als geschlossener Raum. Bitte mal das mal auf dem Parkplatz auf und dann Kisten as Schränke drauf. Unser Schlafzimmer hat 10 qm² (mit Schräge - also noch größer) und da kochen...puuhhh....

    Würde die Parkplatzzeichnung Dir generell empfehlen, dann bekommt man etwas mehr Raumgefühl.
     
  20. #100 Gast48331, 31.10.2018
    Zuletzt von einem Moderator bearbeitet: 31.10.2018
    Gast48331

    Gast48331 Gast

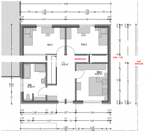
    Mittlerweile überlegen wir, ob wir nicht doch einfach auf 10x9 Meter gehen sollten ;-). Egal, ob mit dem Grundriss aus Beitrag 98 oder mit dem aus Beitrag 55.

    Den anderen Grundriss finden wir vom Ansatz her nicht schlecht. Da war die Küche mit 290 cm vielleicht ein wenig zu schmal. Aber mit den zusätzlichen 50 cm würde es schon ein wenig anders aussehen. Diesen in den Raum hinein stehenden Schrank/Theke in der Küche würden wir so nicht umsetzen, sondern eine reine U-Küche. Von der Anzahl der Schränke wären es mehr als wir aktuell haben, und damit kommen wir, inkl. Vorräte, aus.
    Und die zusätzlichen 50 cm könnte man auf der Wohnzimmer/Arbeiten-Seite in den Eingangsbereich investieren. also das Arbeitszimmer etwas größer machen und somit auch die Diele. Und die Treppe vielleicht noch um 25 cm Richtung Essen/Küche schieben.
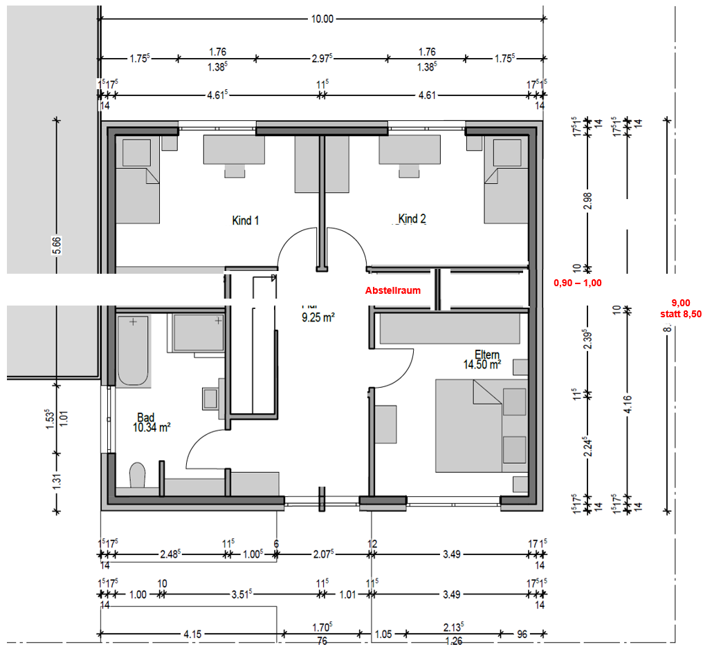
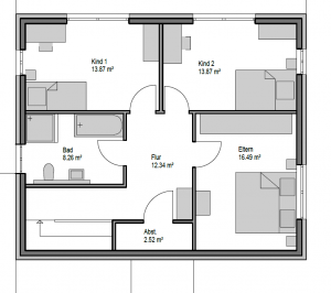
    Oben setzt man die Wand zwischen Kind 2 und Schlafzimmer auf der Höhe der Kinderzimmertür. Dadurch gewinnt man 60 cm plus die 50 cm zusätzliche Haus-Tiefe (abzgl. zusätzlicher (Trocken)-Wand) und könnte den Abstellraum (als kompletten Schlauch oder aber nur als kleinen Abstellraum) zwischen Kind 2 und Schlafzimmer positionieren.

    Hab es mal auf die Schnelle in Photoshop gemalt.

    Die Tür zum Schlafzimmer könnte man auch nach unten im Flur, gegenüber dem Bad, schieben.
    Das Bad könnte man um den Bereich an der Treppe erweitern. Der Schrank vorm Bad passt dann locker oben im Flur vorm Schlafzimmer.
     

    Anhänge:

Thema: Grundriss 10x8/8,5: Schlafzimmer im Erdgeschoss
Besucher kamen mit folgenden Suchen
  1. grundriss einfamilienhaus 10 x 8

    ,
  2. smarte Grundrissplanung 10x8m

    ,
  3. erdgeschoss grundriss haus 10x10

    ,
  4. grundriss haus 8 5 x 10,
  5. reihenhaus grundrisse beispiele,
  6. haus 10x8,
  7. Haus Grundriss 8 x 10 m nur erdgeschoss,
  8. grundriss haus 10x10,
  9. grundrisse 8.5 mal 10,
  10. einfamilienhaus pultdach gerade treppe,
  11. grundriss 100 qm 3 schlafzimmer,
  12. grundriss eg einfamilienhaus 8×12,
  13. einfamilienhaus schlafzimmer erdgeschoss,
  14. grundriss unten schlafen oben wohnen,
  15. grundriss haus 10 x 8 5,
  16. bautagebuch signus,
  17. grundrisse einfamilienhäuser 10x8 m,
  18. erdgeschoss schlafzimmer plan,
  19. 10x8 grundriss,
  20. Grundriss Erdgeschoss mit Schlafzimmer und arbwitszimmer,
  21. reihenhaus grundriss 8 5 x 9 8 m,
  22. offener grundriss einfamilienhaus,
  23. grundriss 10 x 10,
  24. grundriss 10 x 8 5,
  25. grundriss haus oben Schlafzimmer
Die Seite wird geladen...

Grundriss 10x8/8,5: Schlafzimmer im Erdgeschoss - Ähnliche Themen

  1. Symbol Grundriss ca. 1875 Preußen Bitte um Erklärung

    Symbol Grundriss ca. 1875 Preußen Bitte um Erklärung: Hallo, ich habe vor einiger Zeit eine alte Försterei gekauft und suchte ewig nach Bauzeichnungen oder Grundrissen dazu. Lange Story kurz, ich...
  2. Grundriss. EFH 1 Vollgeschoss ohne Schrägen ca. 180qm

    Grundriss. EFH 1 Vollgeschoss ohne Schrägen ca. 180qm: Hi zusammen, wir sind gerade fleißig am Planen. Der Plan ist ein DIY. Habt ihr anregungen, wie man das ganze verbessern kann oder wo Probleme...
  3. Altbau-Sanierung BJ 1904: Grundriss neu, WP/PV, Dämmung – wo übersehe ich Risiken?

    Altbau-Sanierung BJ 1904: Grundriss neu, WP/PV, Dämmung – wo übersehe ich Risiken?: Liebe Community, wir (2 Erwachsene + 2 kleine Kinder) überlegen, einen Altbau (PLZ 33739) zu kaufen und umfassend zu sanieren und würden uns sehr...
  4. Grundriss- Betriebsblind – brauche euren frischen Blick

    Grundriss- Betriebsblind – brauche euren frischen Blick: Hallo zusammen, ich beschäftige mich nun schon seit einiger Zeit intensiv mit diesem Thema/Projekt und habe mittlerweile das Gefühl, etwas...
  5. Bestandsgebäude EFH - Änderung Grundriss ?!

    Bestandsgebäude EFH - Änderung Grundriss ?!: Guten Tag zusammen, ich würde gerne das Schwarmwissen nutzen und umsetzbare Ideen für die Anpassung der Raumaufteilung bzw. des Grundrisses mit...