Grundriss EFH 160m2

Diskutiere Grundriss EFH 160m2 im Architektur Allgemein Forum im Bereich Architektur; Hallo, Wir befinden uns ganz am Anfang unserer Reise Nach langem Suchen haben wir endlich ein Grundstück gefunden (eben, ca. 900 m2,...

  1. xXbB

    xXbB

    Dabei seit:
    04.07.2024
    Beiträge:
    5
    Zustimmungen:
    0
    Hallo,
    Wir befinden uns ganz am Anfang unserer Reise Nach langem Suchen haben wir endlich ein Grundstück gefunden (eben, ca. 900 m2, Zufahrtsstraße im Süden). Das Haus soll ca 160-170 m2 haben.
    Wir haben inzwischen auch schon den zweiten Entwurf bekommen der uns schon ganz gut gefällt. Daher würden wir gerne noch ein paar Meinungen bzw Verbesserungsvorschläge dazu hören um sicher zu gehen, dass wir nichts wichtiges übersehen oder wir etwas gar nicht bedacht haben.
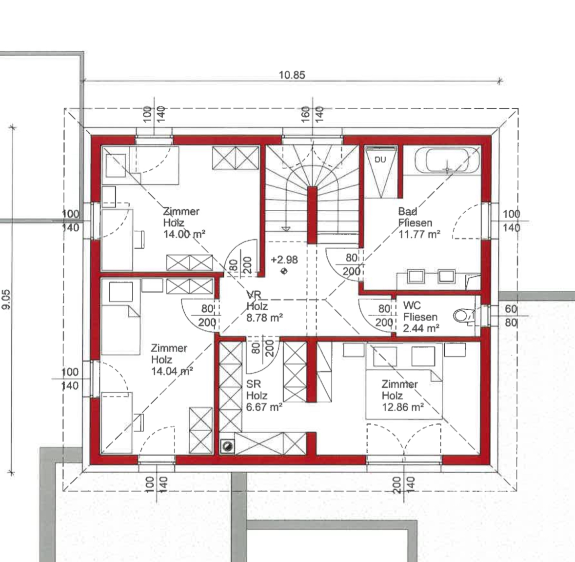
    Die eingezeichnete Einrichtung ist nur Platzhalter und auch zB das Bad muss noch extra geplant werden.
    Da es nicht dabeisteht: Norden ist in den Entwürfen oben.

    1. Wir sind:
    2 Erwachsene, 2 Kleinkinder (1+3 Jahre), Familienplanung abgeschlossen

    2. Unser Raumprogramm:
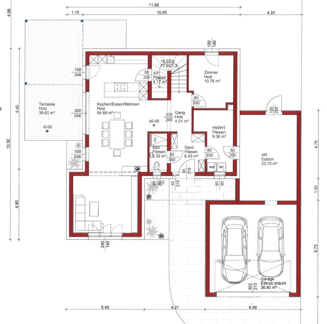
    • offener All-Raum, Wohnzimmer jedoch gerne durch L-Form oder zumindest durch Kamin etwas vom Rest abgetrennt
    • Große Küche offen mit Insel oder U-Form, Speisekammer gewünscht
    • 2 Kinderzimmer ca. gleich groß, 1 Elternschlafzimmer über Schrankraum begehbar
    • DuschWC im EG, Familienbad + WC getrennt im OG
    • 1 zusätzliches Gästezimmer/Büro für Home Office
    • Technikraum, HWR
    • Kein Keller, Doppelgarage mit Abstellraum, direkter Zugang ins Haus mit Möglichkeit für Jacken und Schuhe gewünscht
    3. Welchen Hausstil bevorzugen wir?
    - 2 Vollgeschosse, Walmdach oder Satteldach

    8. Hausentwurf
    • Generell gefallen uns die Größe und Anordnung der Räume schon ganz gut.
    • Mit der Kombination HWR und Technik im Durchgangszimmer sind wir nicht ganz glücklich. Wo im Plan Waschmaschine und Trockner eingezeichnet sind, würden wir auf jeden Fall eine Art Garderobe einrichten wollen.
    • Auch kommt uns die Speiß unter der Treppe recht klein vor, wir wollen hier auch Geräte wie Mikrowelle und Brotmaschine unterbringen
    • Unsicher sind wir uns auch, ob auch noch eine separate Tür von Garage/AR nach außen Sinn machen würde
    • Der Durchgang zwischen Garage und AR sollte auf jeden Fall auch noch größer sein
    Wir würden uns wirklich sehr über Euer Feedback zum Grundriss freuen!

    Danke!
     

    Anhänge:

  2. #2 petra345, 08.07.2024
    petra345

    petra345

    Dabei seit:
    17.02.2017
    Beiträge:
    5.207
    Zustimmungen:
    1.015
    Beruf:
    Ing. plus B. Eng.
    Ort:
    Rhein-Main-Gebiet
    Benutzertitelzusatz:
    Ing.(grad.) plus B. Eng.
    Für e ine sorgfältige Analyse brauche ich viel zu viel Zeit. Aber Türen haben das Normmaß 87,5 breit.
    Tür zum Bad auch in 75 cm Breite.
     
    Fridolin77 gefällt das.
  3. xXbB

    xXbB

    Dabei seit:
    04.07.2024
    Beiträge:
    5
    Zustimmungen:
    0
    Danke, das mit den Türen ist ein guter Punkt auf den wir ehrlich gesagt noch nicht wirklich geachtet haben!
     
  4. 11ant

    11ant

    Dabei seit:
    28.02.2017
    Beiträge:
    2.580
    Zustimmungen:
    1.624
    Beruf:
    Bauherrenberater
    Ort:
    RLP Nord
    Benutzertitelzusatz:
    bringt Sie gut beraten ins Eigenheim
    Ein zweiter Entwurf, aha - ich sehe garkeinen ersten (?)
    Mein Verbesserungsvorschlag wäre: systematisch planend vorzugehen. Gegenüber der "Methode", sich irgendwelche Grundrisse vorschlagen zu lassen bis man mit einem zufrieden ist, spart das jede Menge Geld.
     
  5. xXbB

    xXbB

    Dabei seit:
    04.07.2024
    Beiträge:
    5
    Zustimmungen:
    0
    Das stimmt, dieser ist nicht hochgeladen. Der Erstentwurf wurde anhand unserer Wünsche erstellt. Durch unsere Änderungswünsche an diesem Entwurf ist dann dieser hier entstanden, der uns, bis auf 1,2 Kleinigkeiten auch sehr gut gefällt. Wir zielen also keinesfalls auf einen komplett neuen Grundriss ab, sondern wollen sichergehen, bei dem vorliegenden Grundriss nichts „grobes“ zu übersehen und diesen noch zu verfeinern
     
  6. #6 petra345, 09.07.2024
    petra345

    petra345

    Dabei seit:
    17.02.2017
    Beiträge:
    5.207
    Zustimmungen:
    1.015
    Beruf:
    Ing. plus B. Eng.
    Ort:
    Rhein-Main-Gebiet
    Benutzertitelzusatz:
    Ing.(grad.) plus B. Eng.
    Treppe mit Zwischenpodest sieht nach Mietwohnblock aus. Aber eine solche Treppe ist sicherer als gewendelt.
    Mauern stellt man möglichst genau übereinander.
    Warum ist die Mauer im Treppenauge dicker?
    13,30 x 10,85 sollte ausreichend sein. Aber warum 9,85 x 10,85? Diese Maße sprechen nicht für eine optimale Mauerlänge.
    Die Mauerlängen sind nicht sichtbar. Aber sie sollten so gewählt werden, daß wenig Steine geschnitten werden.
    Da wartet noch etliche Optimierungsarbeit.
    An der Baustelle eines Mietobjektes konnte ich beobachten, wie die Arbeiter die schweren KS-Steine ständig vom Stapel zur Säge und zur Arbeitsstelle trugen. Das war eine teuere Baustelle, für die der Bauherr 40.000 € Plaungskosten bezahlt hatte. Diese Baustelle war nicht optimal eingerichtet und das Objekt war nicht optimal geplant. Da nützen auch billige Arbeitskräfte nichts. Das wird einfach unnötig teuer und er war etwas zerknirscht, als ich ihm das versehentlich offenbarte.

    Ohne Not würde ich nicht auf den Keller verzichten. Nachholen kann man ihn nicht.
    .
     
  7. #7 titan1981, 09.07.2024
    titan1981

    titan1981

    Dabei seit:
    30.06.2021
    Beiträge:
    769
    Zustimmungen:
    211
    Beruf:
    Ing
    Ort:
    SH
    # Ich würde eine Tür zwischen Schlafzimmer und Ankleide mit einplanen. So kann eine Person aufstehen und sich in der Ankleide mit Licht und etwas schallgedämmt anziehen.
    # Mir fehlt das Waschbecken im WC des OG
    # Wie sollen die Fenster in den Kinderzimmern zu öffnen sein wenn entweder Bett oder Schreibtisch zumindest Teilweise davor stehen?
    # Türen hätte ich im Neubau gleich mit 1m geplant.
     
  8. #8 Kriminelle, 09.07.2024
    Zuletzt bearbeitet: 09.07.2024
    Kriminelle

    Kriminelle

    Dabei seit:
    16.05.2013
    Beiträge:
    3.840
    Zustimmungen:
    2.163
    Beruf:
    .
    Ort:
    Niedersachsen
    Er hat einige Fehler (siehe Türen).
    Leider fehlen ja auch einige Angaben, hier wäre unter anderem der Lageplan wegen der Ausrichtung und Gartenseite notwendig und die Maße.

    Ich denke, die Garage mit AR ist eine Grenzbebauung??? War das ein Architekt, der die Idee hatte?

    Der Fragebogen ist übrigens hier einsehbar.
    Grundrissdiskussionen - bitte vorher lesen!

    Zu den mir offensichtlichen Fehlern:
    1. Wo ist der direkte Zugang? Er ist eher lang und
    labyrinthig. Ich hinterfrage den Gedanken des Konzeptes: Garage-AR-TK-Flur.
    Mit gleich Flur ist man besser bedient und schneller. Warum soll man TK und AR erst schmutzig machen, wenn man das auf kürzerem Wege durch den Eingang machen kann? Der Flur hat die Funktion einer Dreckschleuse und braucht keine Verlagerung einer solchen in einen Nebenraum, wo Wäsche gewaschen wird. Und wenn man das haben will, dann sollte es auch der kürzeste Weg sein.
    2. Flur hat keinen vernünftigen Stauraum (mind. 60cm Schranklänge für jeden Bewohner), sondern nur Kommodenplätze verteilt.

    Treppe scheint ein gutes Maß zu haben.

    3. Speis unter der Treppe: die Tür wäre eine Sonderanfertigung mit 160er? Höhe
    4. Küche vom Platz her nicht genügend.
    5. Küche ist wegen des fehlendes Fensters sehr dunkel
    6. das Haus ist für sich sehr dunkel: in der Mitte mit Flur und Treppe kommt kaum noch Tages-Licht an. Von O bis O ist alles sehr dunkel, die Sonne erreicht die Terrassentür nicht mehr.
    Da kommt das Labyrinth wieder zum Tragen: WC in Südausrichtung, welches umkreist werden muss, um dann die heiligen Hallen betreten zu dürfen.
    Und außerdem die Ausgrenzung der Nordseite. Dort ist auch noch Grundstück/Garten, oder?

    7. schöner großer Wohnbereich, aber leider nur mit Südfenster..
    8. Ankleide ist in diesem Fall als Hauptzugang zum SZ zu schmal und blockierend.
    9. SZ mit Südfenster
    10. WC im OG ohne Handwaschbecken, dafür Dusch-WC im EG mit nur einem Handwaschbecken.

    Um den Grundgedanken des Hauses zu verstehen bzw. warum man die Räume und Erschließung so und nicht anders geplant hat, zu erkennen, braucht es den Lageplan. Was ist mit dem Grundstück los?
    Dann erklärt sich auch, warum man sich das Südgrundstück noch weiter nimmt, indem man dort einen Anbau hinstellt und den Norden abschottet. Da ist überhaupt kein Bezug über ein Fenster in Richtung Garten.
    So wie es sich mir hier darstellt, sehe ich im Anbau eher die Küche als Sonnenfang mit Ost-, Süd- und Westfenster und den Sofabereich im Norden. Ich würde den Essbereich allerdings immer die meisten Fenster und Helligkeit spendieren, was hier wohl auch ansatzweise versucht wurde.
    Ich würde wohl versuchen, gleich am Eingang den Weg nach planlinks in Richtung Allraum zu machen und WC und co vom Süden wegzuplanen.

    Insgesamt kann man aber feststellen, dass man zuviel von 160qm erwartet. Da ist ein Hausprogramm von PiMalDaumen 180qm untergebracht. Zwar kaschiert mit schmalen Türen, aber an Handwaschbecken und 80er Gängen feststellbar. Nehmen wir beispielsweise das Gäste-WC: wer soll denn dort duschen? Da ist noch nicht einmal ein Waschtisch zum Zähneputzen oder Platz zum Abtrocknen. Und der Weg zu den Schlafräumen führt auch quer durch das Haus ohne Privatsphäre.
     
    Oehmi gefällt das.
  9. #9 Kriminelle, 09.07.2024
    Kriminelle

    Kriminelle

    Dabei seit:
    16.05.2013
    Beiträge:
    3.840
    Zustimmungen:
    2.163
    Beruf:
    .
    Ort:
    Niedersachsen
    … um nochmal auf die Grenzbebauung zu schauen: mir ist kein Bundesland bekannt, wo ü12 Meter erlaubt sind. Und wofür soll der AR denn dienen? Der ist ja sehr groß.
    Die Technik kommt also in die thermische Hülle, also in den HA/TK…
    Warum rutscht die Garage nicht weiter nach hinten, um mehr Offenheit im Süden zu erreichen? Dann kann man auch noch die Ecke als Grenzbebauung nutzen.
    Wie Du schon erkennen kannst, kommen bei einer Diskussion ohne Lage- und Grundstücksplan nur Fragen auf.
     
  10. 11ant

    11ant

    Dabei seit:
    28.02.2017
    Beiträge:
    2.580
    Zustimmungen:
    1.624
    Beruf:
    Bauherrenberater
    Ort:
    RLP Nord
    Benutzertitelzusatz:
    bringt Sie gut beraten ins Eigenheim
    Ihr habt Euch also wie ich es schon befürchtete den Luxus geleistet, bei der Entwurfserstellung nicht-systematisch vorzugehen. Das kostet erfahrungsgemäß sehr viel Geld, genauer gesagt: mehr als ein ganzes Architektenhonorar. Und es kostet auch Zeit, denn auch wenn Euch nur einskommazwo Kleinigkeiten auffallen, von einer Verfeinerungsreife ist dieser Entwurf noch meilenweit entfernt.
    Es fehlen Maße, um die Positionen der Wände flott zu prüfen. Die merkwürdige tragende Wand ist schon erklärungsbedürftig. Der fehlende Vorgängerentwurf erschwert zusätzlich, sich die Entstehung dieses Entwurfes zu erschließen.
    Das ist ja auch schon meine alte Leier: Pfuschertaschen nehmen ihren Ursprung in schlampiger Planung.
    Ich würde andererseits einen Keller aber auch nicht gegen die topografische Indikation planen. Ohne das Grundstück (mit Höhen !) zu kennen, läßt sich auch die Kellerfrage (siehe: 11ant Kellerregel Archive - bauen-jetzt.de) nicht klären.
    Laut Zeichnung soll die Tür 200 hoch sein - mit der Konsequenz, in der Türöfnung die Treppe vor dem Kopf zu haben :-(
    So isses, und wenn die Verfeinerung alle Engstellen entzerrt, sind es im Ergebnis sogar eher 190. Also zu 160 qm ein unnötiger Mehrpreis von Neunzigtausend nur wegen des "eingesparten" Architekten. Das muß man sich erst einmal leisten können. Leider kann ich meine Dienste - auch wenn es nur die Architektenfindung wäre - hier aktuell nicht anbieten (volles Wartezimmer und Urlaubszeit in Sichtweite, im Ergebnis keine Kapazitäten vor September).
     
  11. #11 Kriminelle, 09.07.2024
    Kriminelle

    Kriminelle

    Dabei seit:
    16.05.2013
    Beiträge:
    3.840
    Zustimmungen:
    2.163
    Beruf:
    .
    Ort:
    Niedersachsen
    Das sind doch alles nur Platzhaltertüren. Vielleicht im Gäste-WC die erste (berechtigt schmale) Tür, dann kopiert. Wenn man die Tür vernünftig unter die Treppe bekommt, also dort, wo auch Höhe ist, dann reicht dort tatsächlich auch eine 60er Schranktür. Denn man bewegt sich dort ja nicht, sondern es dient als Schrankersatz.
    Ich muss zugeben, die Zahl hatte ich vorher, wollte aber nicht übertreiben.
    Ja: 160 in recht schlichter Anstadt-Villenform kann einiges an Räumen aufnehmen, aber individuelle Zuschnitte fressen weitere Qm.
     
  12. #12 Kriminelle, 09.07.2024
    Kriminelle

    Kriminelle

    Dabei seit:
    16.05.2013
    Beiträge:
    3.840
    Zustimmungen:
    2.163
    Beruf:
    .
    Ort:
    Niedersachsen
    Doppelpost
     
  13. xXbB

    xXbB

    Dabei seit:
    04.07.2024
    Beiträge:
    5
    Zustimmungen:
    0
    Vielen Dank für das ganze Feedback und eure Zeit, das wirklich sehr hilfreich für uns ist und uns vor allem die Augen öffnet…

    Dieses zeigt mir deutlich, dass es nicht bei der ein oder anderen Adaption des Grundrisses bleiben kann, sondern wir das Konzept und auch das Hausprogramm nochmal hinterfragen müssen. Für uns gibt es noch einiges zu tun!

    Es sind auf jeden Fall sehr viele Sachen, die wir uns definitiv genauer ansehen, durchdenken und priorisieren müssen bevor wir überhaupt erst versuchen diesen Grundriss durch Adaptionen weiter anzupassen! Das müssen wir wohl ganz anders angehen und sind da zu euphorisch an das Thema rangegangen.

    Auch Mauerlängen/positionen - einen Punkt den ich ehrlicherweise nicht direkt am Schirm hatte, müssen wir uns definitiv genau anschauen und mitdenken.

    Die Tür zur Speis soll sich auf Grund der Position unter der Treppe und der geplanten Rohbauhöhe im EG von ca 3 m lt. Planer ausgehen, wohlwisssend, dass in dem Raum definitiv kein Platz für eine Zweitküche oder sonstiges ist, sondern um Vorräte, Getränke,.. unterzubringen.

    Die Küche haben wir in unserer aktuellen Wohnung in ähnlicher Größe und das reicht uns, auch mit der nur kleinen Speisekammer.

    Zum Keller: wir wollten auf Grund persönlicher Befinden von Beginn an keinen Keller, sonder stattdessen einen separaten, ebenerdigen Abstellraum. Diese Vorgabe habe wir in der Planung mitgegeben. Die Platzierung müssen wir uns aber mit der Eingangssituation nochmal genauer ansehen und Alternativen erarbeiten.

    Vor allem nehme ich also auch mit, die verschachtelte Eingangssituation (Garage/TK/AR) von Grund auf zu prüfen und genau zu überdenken, wie damit die Abläufe im Alltag ausschauen würden. Hier werden wir noch Abstriche machen müssen .

    Wir stehen wie gesagt noch ganz am Anfang unseres Projektes und gerade dadurch ist jegliches Feedback das gekommen ist sehr viel wert und wichtig für uns

    vielen Dank also dafür!
     
  14. #14 Morgaine, 09.07.2024
    Zuletzt bearbeitet: 09.07.2024
    Morgaine

    Morgaine

    Dabei seit:
    26.01.2009
    Beiträge:
    99
    Zustimmungen:
    28
    Beruf:
    Selbstständige Hausfrau
    Ort:
    Süddeutschland
    Ist schon sehr vieles gesagt worden, was auch meine Fragen bzw. Anmerkungen gewesen wären. Eine Frage hätte ich aber doch noch: Ist die Küche absichtlich im Nordwesten und das Wohnzimmer neben dem Eingangsbereich im Süden? Ich z.B. bin hauptsächlich morgens und mittags in der Küche und abends eher im Wohnzimmer, so wäre mir diese Ausrichtung gar nicht recht. Meine Küche ist im Osten, das Wohnzimmer eher im Westen. Auch würde ich mir lieber beim Werkeln in der Küche zusehen lassen vom Eingangsbereich als beim Fläzen auf dem Sofa ;-) War nur so ein Gedanke. Falls ihr eh nochmal neu anfangt, vielleicht ein Punkt, den ihr noch beachten wollt.

    Falls der TE aus Österreich kommt, wäre die Türbreite nachvollziehbar. Da wird - zumindest in einem bekannten A-Forum - fast nur mit dieser Türbreite geplant, was mich immer wieder verwundert.
     
  15. 11ant

    11ant

    Dabei seit:
    28.02.2017
    Beiträge:
    2.580
    Zustimmungen:
    1.624
    Beruf:
    Bauherrenberater
    Ort:
    RLP Nord
    Benutzertitelzusatz:
    bringt Sie gut beraten ins Eigenheim
    Leider ist es keine Übertreibung, sondern erfahrungsbasiert. Und ob hier der Übeltäter ein individueller Zuschnitt ist, wissen wir nicht, da der TE zur Vorgehensweise noch nicht Stellung genommen hat.
    Selbst die Profilinformation wo sich TE und Baugrundstück befinden fehlt derzeit noch.
    Immerhin kann man dies als Bestätigung interpretieren, daß wir über gemauerte Wände reden (?)
    Ich habe in meinem obigen Beitrag eine Beitragsreihe verlinkt, in der ich Laien ein Werkzeug an die Hand gebe, ihre Entscheidungsfreiheit zu ermitteln. Wenn Ihr dem Planer eine Vorgabe "gegen das Votum des Grundstückes" macht, kann dies ein weiterer teurer Spaß werden.
    Ich spreche wohl auch im Namen vieler weiterer Helfenden (und Mitlesenden !), der bei weitem schönste Dank sei, die Rückfragen zu beantworten. Also zeigt mal ganz fix das Grundstück, möglichst mit Höhen, und verratet mal zumindest das Bundesland.

    Wir wissen noch nicht, wie Ihr anstatt der systematischen Vorgehensweise zu diesem zweiten Entwurf gekommen seid. Zeigt mal den ersten und sagt dazu, mit welcher Methode der gefunden wurde.


    Wenn Laien selbst "kreativ" planen, führt das in der Regel zu etwa 20% Flächenzielüberschreitung (beispielsweise 160 qm Ergebnis statt 130 qm gewollt, in Geld gesprochen 90k mehr Baukosten - OHNE !!! Qualitätsgewinn - und damit einem vielfachen des "eingesparten" Architektenhonorars). Ob dies auf den hier nicht gezeigten ersten Entwurf zutraf, können wir nicht erkennen (was jedoch hilfreich wäre).

    Wenn Laien mit Bewußtsein für mangelndes eigenes Können "selbst" planen, ist die typische Vorgehensweise, aus dem Internet o.ä. Grundrißvorlage(n) zu klauen und an abweichende eigene Bedürfnisse anzupassen zu versuchen. Dabei werden regelmäßig wie von Yvonne vermutet "180 qm Wünsche in 160 qm Budget gepreßt" (mit der typischen Folge von Engstellen). Das hier gezeigte enge Schlafzimmer weist in diese Richtung, taugt als "Beweis" aber noch nicht, um die vorstehend beschriebene Entwurfsentstehung auszuschließen.

    Fazit: der hier gezeigte Entwurf ist zwar schlecht, aber weil wir weder seine Entstehung noch seine grundstücklichen Rahmenbedingungen kennen, fehlt es uns auch an Grundlagen, um einen Heilungsplan zu ersinnen.
     
  16. #16 Fasanenhof, 11.07.2024
    Fasanenhof

    Fasanenhof

    Dabei seit:
    20.02.2023
    Beiträge:
    1.508
    Zustimmungen:
    850
    Beruf:
    Ing für Maschinenbau
    Ort:
    Norddeutschland
    Ich weiss nicht ob das bereits gesagt wurde, aber:
    Dusche im Eingangsbereich des Hauses, wenn die nächsten 2 Türen die Haustür und der HWR sind?

    Das ist doch nicht sinnvoll.
     
  17. 11ant

    11ant

    Dabei seit:
    28.02.2017
    Beiträge:
    2.580
    Zustimmungen:
    1.624
    Beruf:
    Bauherrenberater
    Ort:
    RLP Nord
    Benutzertitelzusatz:
    bringt Sie gut beraten ins Eigenheim
    Vor dem Abendessen wäscht man sich wohl bei den Gastgebern die Hände, hat das Duschen aber bitte vorher daheim erledigt. Und die Dusche für Hund und Gummistiefel gehört in den Durchgangsraum des Garteneinganges, um den Haupteingangsbereich erst nach dem Duschgang zu betreten.
    Aber das gezeigte Fehlkonstrukt ist ein Laienplaner-Evergreen, ebenso wie daß ein Zeichenknecht deren Vorlagen nur abmalt.
     
  18. #18 Fasanenhof, 12.07.2024
    Fasanenhof

    Fasanenhof

    Dabei seit:
    20.02.2023
    Beiträge:
    1.508
    Zustimmungen:
    850
    Beruf:
    Ing für Maschinenbau
    Ort:
    Norddeutschland
    Gefühlt ist das ein Hausentwurf-Idiotentest. Bei fast jedem Luftschloss in diesem Forum sieht man das.
     
Thema:

Grundriss EFH 160m2

Die Seite wird geladen...

Grundriss EFH 160m2 - Ähnliche Themen

  1. Grundriss drei optionen Sanierug altbau.

    Grundriss drei optionen Sanierug altbau.: Liebe Bau- und Renovierungsfreunde, ich habe mich hier angemeldet und möchte gerne eure Meinungen zu den verschiedenen Grundriss-Optionen im...
  2. Feedback zu Grundriss EFH Nordhang

    Feedback zu Grundriss EFH Nordhang: Hallo zusammen, nachdem unser erster Planungsanlauf mit einem Architekten im letzten Jahr leider komplett gescheitert ist, haben wir nun einen...
  3. Grundriss Bewertung Architektenhaus

    Grundriss Bewertung Architektenhaus: Hallo zusammen, wir wären über euren Input sehr dankbar. Was kann man verbessern? Was würdet ihr ändern? 1. Wir sind: Familie mit einem Kind...
  4. Hilfe Grundriss Untergeschoss

    Hilfe Grundriss Untergeschoss: Ich benötige etwas Hilfe beim Grundriss für das Untergeschoss. Ich würde gerne die Eingangstür nach Süden legen, da dort die Straße ist. Außerdem...
  5. Grundriss 160m2 Holständerhaus am Nordhang mit Keller - Meinungen erbeten

    Grundriss 160m2 Holständerhaus am Nordhang mit Keller - Meinungen erbeten: Hallo, nachfolgend findet ihr unseren (beinahe) finalen Grundriss. Lediglich bei den Fenstern wird noch ein bisschen rumgeschoben und geändert....