Grundriss Stadtvilla (155qm2) - Eure Anmerkungen werden gebraucht!

Diskutiere Grundriss Stadtvilla (155qm2) - Eure Anmerkungen werden gebraucht! im Architektur Allgemein Forum im Bereich Architektur; Hallo zusammen, meine Frau und ich planen bald zu bauen (Grundstück, 760qm2 ist bereits in unserem Besitz). Wir möchten gerne zweigeschossig...

  1. DanHa

    DanHa

    Dabei seit:
    01.11.2025
    Beiträge:
    7
    Zustimmungen:
    0
    Hallo zusammen,

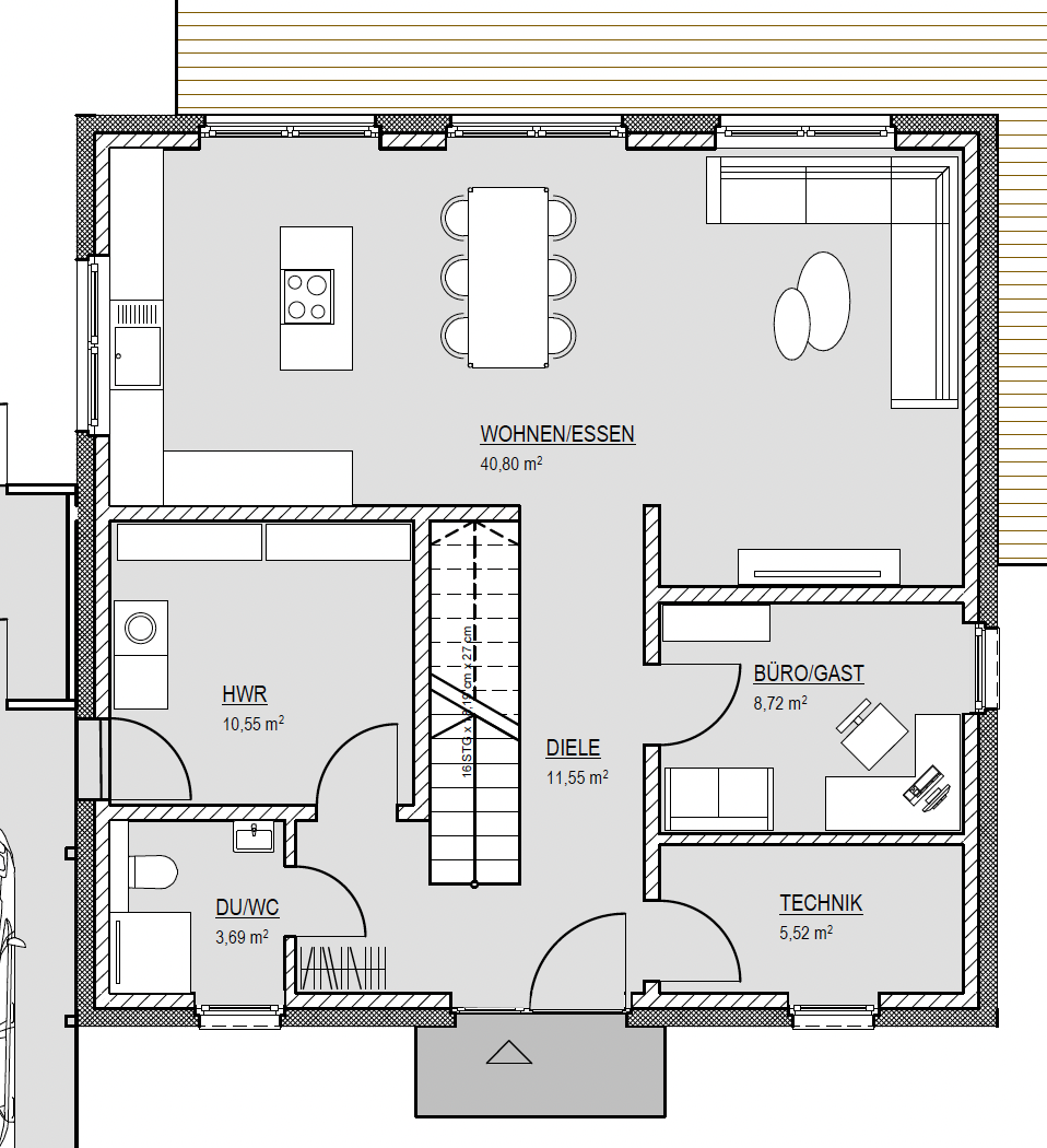
    meine Frau und ich planen bald zu bauen (Grundstück, 760qm2 ist bereits in unserem Besitz). Wir möchten gerne zweigeschossig bauen, Typ Stadtvilla mit Walmdach (10,26x10,16; ca. 155qm2). Wir werden nun immer konkreter und haben zuletzt einen Grundriss der Architektin erhalten, welcher unseren Wünschen schon nahe kommt. Allerdings hätten wir immer noch Anmerkungen:
    • Büro zu klein (mindestens zwei Schreibtische + Sofabett sollten stellbar sein)
    • Technikraum eher in den HWR integrieren. Funktioniert das bei der Größe überhaupt? Zentrale Lüftungseinheit, Luft-Wärmepumpe, Warmwassertank, PV mit Speicher, diverse Anschlüsse, Strom, Trockner und Waschmaschine, gerne auch Wäscheständer müssten untergebracht werden
    • Treppe eher rechtsseitig
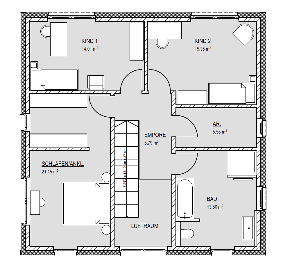
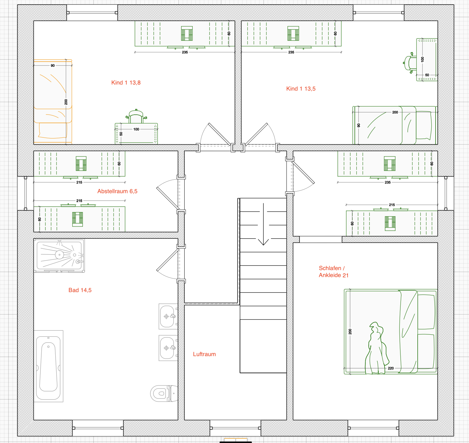
    • Ankleide/Schlafen und Bad/Abstellraum spiegeln
    • Fenster im Wohnbereich - 2 große Fenster zur Terrasse (Süden), dazwischen Platz ggf. für eine Vitrine - dafür Fenster im Westen. Küchenfenster im Osten optional aber vielleicht doch ganz nett
    Ansonsten bitte noch nicht allzu sehr auf Anordnung von Fenstern, Schränken usw. achten. Da ging es erstmal nur darum, überhaupt etwas in den Räumen stehen zu haben. Der HWR muss auf der Seite bleiben, da hier der Ausgang zum Carport hinführt.

    Wie sind eure Gedanken hierzu? Geht etwas gar nicht, wo gibt es Verbesserungspotenzial?

    Lieben Gruß
    DanHa

    OG_eigener Vorschlag.png EG_eigener Vorschlag.png OG_Planungsbüro.png EG_Planungsbüro.png
     
  2. #2 Kriminelle, 01.11.2025
    Zuletzt bearbeitet: 01.11.2025
    Kriminelle

    Kriminelle

    Dabei seit:
    16.05.2013
    Beiträge:
    3.697
    Zustimmungen:
    2.039
    Beruf:
    .
    Ort:
    Niedersachsen
    Was ist denn von der Architektin, und woher stammt der andere Entwurf?
    Am besten, Du zeigst mal das Grundstück inkl. Haus und Carport sowie die Ausrichtung und füllst den Fragebogen aus
    Grundrissdiskussionen - bitte vorher lesen!
    damit man Eure Bedürfnisse, Raumprogramm und etwas von Euch wisst bzw. einschätzen kann.
    Denn es ist ein Unterschied, ob 25-jährige ohne Kinder oder 50-jährige mit 16 Jahre alten Kindern bauen wollen.
    Im Prinzip fallen beide Entwürfe schon wegen der mangelnden Garderobe durch. Wenn Ihr eh nur zu zweit bleibt, dann könnte man damit leben.

    Edit: sehe jetzt, dass der obige Entwurf nicht aus fachlicher Feder ist. Da kann die Treppe und einiges andere gar nicht funktionieren.

    Treppe muss immer dort hin, wo keine Türen zu benachbarten Räumen geplant werden.
     
  3. DanHa

    DanHa

    Dabei seit:
    01.11.2025
    Beiträge:
    7
    Zustimmungen:
    0
    1. Wir sind:

    Anzahl der Personen und Alter, jetzt und geplant: 2 Erw. (30 Jahre, 1 Kind (2,5 Jahre)

    2. Unser Raumprogramm:
    EG: Offener Wohn-Essbereich, Duschbad, Büro mit der Möglichkeit 2 Schreibtische und Schlafsofa zu stellen, HTR
    OG: Schlafzimmer mit sep. Ankleide, 2 Kinderzimmer, Bad mit Dusche und Badewanne, 2 Waschbecken, Abstellraum, Luftraum
    gerade Treppe

    3. Welchen Hausstil bevorzugen wir?
    und warum? Stadtvilla mit Walmdach (zweigeschossig), verputzt (moderner Baustil)

    4. Welche Zusatzwünsche/Features
    hätten wir gern und warum?

    Luftraum in der Diele, separater Ausgang vom HTR ins Carport

    5. Bebauungsplan/Einschränkungen
    zweigeschossig ist erlaubt, keine Hanglage,

    7. angedachte Haustechnik
    KfW 40; Luft-Wärmepumpe, PV-Anlage mit Speicher, zentrale Lüftungsanlage, Wallbox

    8. Hausentwurf

    die graue Planung stammt von der Architektin, die andere Planung von uns (haben uns an der Planung orientiert und einzelne Wände, Treppe verschoben).
    Generell gefällt uns die Planung der Architektin gut, allerdings würden wir Technik und Hauswirtschaft gerne in einem Raum unterbringen, da das Büro zwingend größer sein muss. Im OG wäre es wünschenswert, wenn das Schlafzimmer auf der rechten Seite und das Bad auf der linken Seite sein könnte (quasi spiegelverkehrt zu Planung der Architektin).
     
  4. DanHa

    DanHa

    Dabei seit:
    01.11.2025
    Beiträge:
    7
    Zustimmungen:
    0
    Stimmt, das war mein eigener. Warum kann das gar nicht funktionieren?
     
  5. #5 Kriminelle, 01.11.2025
    Kriminelle

    Kriminelle

    Dabei seit:
    16.05.2013
    Beiträge:
    3.697
    Zustimmungen:
    2.039
    Beruf:
    .
    Ort:
    Niedersachsen
    Die Treppe ist falsch eingezeichnet.

    Hats Du einen Lageplan? Wo ist denn Norden?
    Vielleicht erklärst Du, warum?
     
  6. DanHa

    DanHa

    Dabei seit:
    01.11.2025
    Beiträge:
    7
    Zustimmungen:
    0
    Oh ja, stimmt!

    Reine Vorliebe. Wenn ich die Treppe hochgehe, würde ich gerne direkt rechtsherum in den Ankleidebereich abbiegen können. Lagetechnisch liegen beide Seiten im Norden.

    Lageplan ist angehängt. Da sieht man dann auch das Carport. Bildschirmfoto 2025-11-01 um 7.35.47 PM.png
     
  7. #7 Kriminelle, 01.11.2025
    Zuletzt bearbeitet: 02.11.2025
    Kriminelle

    Kriminelle

    Dabei seit:
    16.05.2013
    Beiträge:
    3.697
    Zustimmungen:
    2.039
    Beruf:
    .
    Ort:
    Niedersachsen
    Ihr könnt SZ und Ankleide mit dem Abstellraum und Bad tauschen. Wäre auch von Vorteil, wenn man die Bäder/Leitungen übereinander plant.
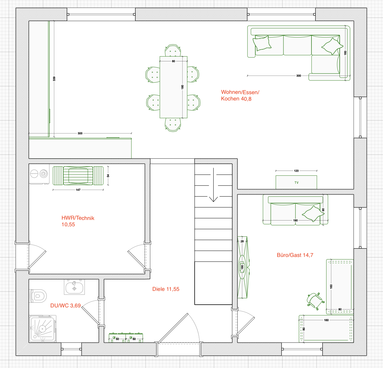
    Es geht auch, wenn man die Technik mit in den HWR einplant. 10qm sollte ausreichend sein. Allerdings würde ich dann vorschlagen, dass die Tür zum Carport verschwindet, damit Ihr noch genug Stellfläche für Regale bekommt. Der Platz mit der Tür wird Euch fehlen. Auch ist der TK-HAR-Raum kein Flur, sodass Ihr Euch an die Hauseingangsrür gewöhnen solltet. Die Treppe selbst würde ich dort belassen, damit die Tür zum Büro bleiben kann. Im Büro, welches den TK-Raum platztechnsich mit abbekommt, würde ich die Nische für einen Garderobenschrank abzwacken, mindestens 180cm Breite!
    Man könnte auch den Treppenantritt wechseln, sodass man unter der Treppe vorn eine Garderobenkammer machen kann. Treppe bekommt dann am Antritt eine 90 Grad Wendelung. OG bleibt dann fast unberührt. Du könntest dann das „nach oben kommen und dann gleich rechts“ verwirklichen.
    Sag der Planerin, dass sie Euren Wünschen nachkommen soll. Es gibt immer mehrere Planungsrunden inklusive.
    Und spende der Westseite noch ein paar ordentliche Fenster und Terrassentüren, damit man auch das schöne Grundstück von innen genießen kann. Derzeit hat es ein wenig Doppelhauscharakter. Es gibt nicht nur eine Nord- oder Südlage, sondern auch Ost und West mit ihren Vorzügen.
    Ich rate dazu, einen Entwurf vom Architekten oder Planer maßstabsgerecht mit seinen Möbeln einzuzeichnen, um eventuelle Engstellen zu sehen. Vielleicht würde man dann sehen, dass der TV schon ziemlich weit (ohne Maß) vom Sofa weg steht und eventuell eine Sortierung der Räume Küche und WZ besser wäre.
     
    DanHa gefällt das.
  8. #8 VollNormal, 01.11.2025
    VollNormal

    VollNormal

    Dabei seit:
    20.11.2021
    Beiträge:
    4.168
    Zustimmungen:
    2.812
    Beruf:
    Bauingenieur
    Ort:
    Bochum
    Schlafzimmer links abbiegend hieße aber, Fenster im Osten, also Morgensonne. Das erleichtert mir das Wachwerden und Aufstehen doch deutlich.
     
    Kriminelle gefällt das.
  9. 415B

    415B

    Dabei seit:
    03.12.2024
    Beiträge:
    1.411
    Zustimmungen:
    242
    Habt ihr auch einen Berater für euer Outfit? Bei dem Projekt habt ihr doch sicherlich einen Architekten der euch fachlich und persönlich beraten sollte. Oder ist das wie bei Höffner Küchen wenn sie jetzt unterschreiben bekommen sie 50 % auf das Haus nur nicht auf die Arbeitsleistungen?
     
  10. #10 driver55, 02.11.2025
    driver55

    driver55

    Dabei seit:
    22.02.2008
    Beiträge:
    6.863
    Zustimmungen:
    1.793
    Beruf:
    Dipl.-Ing.
    Ort:
    Pforzheim
    Unabhängig von Treppe links oder rechts. Luftraum und Kinderhasenställe passen nicht zusammen.
    Und bei 155qm sind 40qm W//E/K (viel) zu wenig.
    Kommode/Schränke gibt es in E/W auch keine.
     
  11. 415B

    415B

    Dabei seit:
    03.12.2024
    Beiträge:
    1.411
    Zustimmungen:
    242
    Bei den Baukosten sparen die Leute nicht nur bei der Planung sondern auch bei den Möbeln.
    Sonst würden sie hier ja nicht aufschlagen mit unfertigen Zeichnungen und ohne Vorstellungen was man braucht.
     
  12. DanHa

    DanHa

    Dabei seit:
    01.11.2025
    Beiträge:
    7
    Zustimmungen:
    0
    Deswegen steht in meinem ersten Post ja auch, dass man nicht allzu sehr auf Möbel und co. schauen soll. Mir geht es hier um Anmerkungen zum Grundriss, nicht zur Innenausstattung - dazu Frage ich dann Tine Witlter.
     
  13. DanHa

    DanHa

    Dabei seit:
    01.11.2025
    Beiträge:
    7
    Zustimmungen:
    0
    Warum sind 40qm zu wenig? Was wäre denn deiner Meinung nach angemessen?
     
  14. DanHa

    DanHa

    Dabei seit:
    01.11.2025
    Beiträge:
    7
    Zustimmungen:
    0
    Vielen Dank für deine Anmerkungen - sehr hilfreich! Unsere Idee: Die Nische im Wohnzimmer, da wo der Weg zum Sofa so weit ist, nimmt man mit zum Büro, dann ist das knapp 11qm groß und man könnte den Technikraum behalten. Dafür fügt man die Nische in der Küche ein und nimmt einen Teil vom HWR weg - passt, weil es ja noch einen Technikraum gibt.
     
  15. #15 driver55, 03.11.2025
    Zuletzt bearbeitet: 03.11.2025
    driver55

    driver55

    Dabei seit:
    22.02.2008
    Beiträge:
    6.863
    Zustimmungen:
    1.793
    Beruf:
    Dipl.-Ing.
    Ort:
    Pforzheim
    Genau, sie stellt sie dann direkt vor die Fenster/Terrassentüren.

    .
    Soviel, dass es passt. Schau dir mal den Essbereich an.
     
  16. #16 Kriminelle, 03.11.2025
    Kriminelle

    Kriminelle

    Dabei seit:
    16.05.2013
    Beiträge:
    3.697
    Zustimmungen:
    2.039
    Beruf:
    .
    Ort:
    Niedersachsen
    Nochmal: die Entwürfe von Planern sind nur mit Platzhaltern ausgestattet. Diese Platzhalter kann man als Planer beeinflussen. Will ich ein zu kleines WZ in Szene setzen, dann nehme ich kleinere Möbel und es sieht immer noch großzügig aus. Ohne Maßstab und Längenangaben fehlt Dir allerdings das notwendige. Ein Grundriss und Hausentwurf ist mehr als behaglich nach rechts abzubiegen: die Räume müssen funktionieren. Fehler hier in diesem Entwurf: Kücheninsel durchschnittlich kurz und nicht ausreichender Tiefe, Sofa im Büro mit fraglicher Breite, Handwaschbecken im Dusch-WC.

    Die Technik im TK-Raum lässt die liebe Frau Architektin gleich weg, weil die sich wahrscheinlich im engen Raum im Weg steht und der Handwerker das Fluchen bekommt, der von der Stadt es dann nicht abnimmt, weil sein Werkzeug nicht mehr an den Zähler kommt.

    Wenn Du es jetzt nicht überprüfst, ob dort auch der Platz ist, wo Platz sein muss, dann kann Dir später auch nicht Tina Wittler helfen.
    Da gehen mehrere Hunderttausend von Euros über den Tisch, wofür man 30 Jahre und mehr Zinsen zahlen muss, und kaum etwas wird von manchem Bauherr in Frage gestellt.
     
    VollNormal und 11ant gefällt das.
  17. #17 Bauibaui, 22.11.2025
    Bauibaui

    Bauibaui

    Dabei seit:
    09.05.2014
    Beiträge:
    52
    Zustimmungen:
    6
    Beruf:
    Ingenieur
    Ort:
    Rhein-Main
    Sehe ich auch so. 15 qm sollten es min. sein und beim Grundriss mit dem weißen Boden sind die Fenster etwas zu klein. Aber die 40 qm für K/E/W finde ich in Ordnung!
    Möbel sollten immer eingeplant werden, da gebe ich meinen Vorrednern recht. Warum man einen HWR und einen zusätzlichen Technikraum benötigt, ist mir ein Rätsel, ich fände es praktischer, sie zusammenzulegen. Wegen der falschen Treppe: Der Pfeil zeigt immer nach oben! Im Flur würde ich die beiden Türen vom Gäste-WC und Büro/Gast gegenüber setzen (weißer Grundriss), Symmetrie hat immer was beruhigendes.
    Büro wirklich mit zwei Schreibtischen? Sitzt ihr da beide drin?

    Ist das Thema überhaupt noch aktuell?
     
  18. #18 Kriminelle, 22.11.2025
    Kriminelle

    Kriminelle

    Dabei seit:
    16.05.2013
    Beiträge:
    3.697
    Zustimmungen:
    2.039
    Beruf:
    .
    Ort:
    Niedersachsen
    Sofern nichts mehr von dem TE @DanHa kommt, wohl nicht.
     
  19. #19 Bauibaui, 23.11.2025
    Bauibaui

    Bauibaui

    Dabei seit:
    09.05.2014
    Beiträge:
    52
    Zustimmungen:
    6
    Beruf:
    Ingenieur
    Ort:
    Rhein-Main
    Vielleicht gibt es ja noch eine Rückmeldung...
     
Thema:

Grundriss Stadtvilla (155qm2) - Eure Anmerkungen werden gebraucht!

Die Seite wird geladen...

Grundriss Stadtvilla (155qm2) - Eure Anmerkungen werden gebraucht! - Ähnliche Themen

  1. Grundriss Stadtvilla 135qm. Eure Meinungen?

    Grundriss Stadtvilla 135qm. Eure Meinungen?: Hallo zusammen, ich brauche Hilfe bei unserem Grundriss. Letzte Woche war ich mir noch sicher, dass alles passt, aber je öfter ich mir den...
  2. Grundriss Stadtvilla, bitte um Meinungen

    Grundriss Stadtvilla, bitte um Meinungen: Hallo ihr Lieben Experten, wir sind eine junge Familie, die nun kurz davor ist, ein Haus zu bauen. Es wird auf einem 630qm großen Grundstück...
  3. Unser Grundriss Stadtvilla 9,5x11- eure Meinung

    Unser Grundriss Stadtvilla 9,5x11- eure Meinung: Hallo zusammen, wir planen gerade unser Eigenheim und sind offen für jegliche Meinungen / Verbesserungsvorschläge zu unserem Grundriss. Es wird...
  4. Grundriss unten eingeschossige Stadtvilla

    Grundriss unten eingeschossige Stadtvilla: [ATTACH]Hallo, Bin neu hier. Also weil es sich so gehört "Hallo und danke dass Ihr mir helft! :) " Würde gern einmal eine Einschätzung zu...
  5. Grundriss EFH Stadtvilla Etagenweise trennbar

    Grundriss EFH Stadtvilla Etagenweise trennbar: Hallo Zusammen, wir sind gerade Dabei mit einer Zeichnerin eine Stadtvilla zu planen, wobei ich aktuell für jeden Gedankenanstoß dankbar bin,...