Grundrissdiskussion - Sind die Fenster zu groß?

Diskutiere Grundrissdiskussion - Sind die Fenster zu groß? im Architektur Allgemein Forum im Bereich Architektur; Liebes Forum, meine Frau und ich bauen ein Haus. Die Bodenplatte wurde jetzt gegossen und wir sind uns bezüglich der Fenster im OG etwas...

  1. #1 Fortgeschrittener Amateur, 02.07.2022
    Fortgeschrittener Amateur

    Fortgeschrittener Amateur

    Dabei seit:
    17.11.2021
    Beiträge:
    12
    Zustimmungen:
    4
    Liebes Forum,

    meine Frau und ich bauen ein Haus. Die Bodenplatte wurde jetzt gegossen und wir sind uns bezüglich der Fenster im OG etwas unsicher.

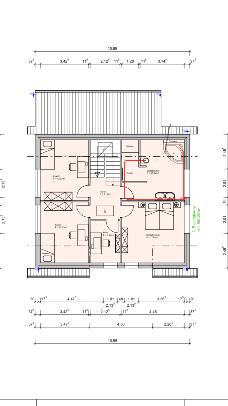
    Es handelt sich insgesamt um 2,01 m breite bodentiefe Fenster, die pro Fenster am unteren Teil jeweils zwei feststehende und am oberen Teil zwei zu öffnende Elemente besitzen. Diese sind im Osten im Schlafzimmer und im Bad und im Westen in den vermeintlichen Kinderzimmern.

    Es handelt sich bei dem Haus um eine Dachform mit Satteldach und bedingt durch den Bebauungsplan um einen Drempel in Höhe von 1,25 mit einer Firsthöhe von 7,33 m.

    Meiner Überzeugung nach sind die Fenster zu nah an den Wänden, so dass mögliche Schränke (wir haben hierzu glücklicherweise noch keine vorhanden) zum Teil vor den Fenstern stehen und jeweils ein zu öffnendes Element behindern könnten. Oder man nimmt „kleinere“ Schränke in der Breite. Dadurch, dass die 2,00 Meter Linie der Dachschräge „früh“ anfängt, bliebe doch wahrscheinlich nur die Möglichkeit, schmalere Fenster anzufragen (evtl. 1,50 m breit, wenn es so etwas gibt?)

    Oder sind unsere Sorgen unbegründet und es ist dem Lichteinfall und des Raumflairs besser die 2,01 m Fenster so zu lassen? (Bisher sind keine Dachfenster in den Räumen wegen der Aufpreise angedacht)

    Vielen Dank im Voraus und viele Grüße
     

    Anhänge:

  2. #2 simon84, 02.07.2022
    simon84

    simon84
    Moderator

    Dabei seit:
    11.11.2012
    Beiträge:
    23.239
    Zustimmungen:
    6.889
    Beruf:
    Schrauber
    Ort:
    Muenchen
    Vermutlich Brauchst du die Fensterflächen sowieso laut Bauordnung ! Dachfenster wäre dann auch mein Vorschlag gewesen
     
    11ant und Fortgeschrittener Amateur gefällt das.
  3. #3 K a t j a, 02.07.2022
    K a t j a

    K a t j a

    Dabei seit:
    31.05.2019
    Beiträge:
    1.009
    Zustimmungen:
    582
    Ort:
    Leipziger Land
    Ich würde die Fenster schmaler machen, solange es noch geht. Etwa 70cm Stellfläche für die Schranktiefe fände ich optimal. Außerdem würde ich das Bad komplett neu planen. Das ist ja furchtbar.
     
    11ant, Fortgeschrittener Amateur, Jo Bauherr und einer weiteren Person gefällt das.
  4. #4 Fortgeschrittener Amateur, 03.07.2022
    Fortgeschrittener Amateur

    Fortgeschrittener Amateur

    Dabei seit:
    17.11.2021
    Beiträge:
    12
    Zustimmungen:
    4
    Vielen Dank für eure Antworten!

    Ich denke ich frage nochmal beim Generalunternehmer nach zwecks der Fensterbreiten.

    @Katja aus Sachsen Wegen des Bades wurde uns gesagt, dass es mit dem Badplaner noch geändert werden würde aber das macht mich jetzt neugierig: Was ist an der Aufteilung für dich nachteilig?
     
  5. #5 Kriminelle, 03.07.2022
    Kriminelle

    Kriminelle

    Dabei seit:
    16.05.2013
    Beiträge:
    3.668
    Zustimmungen:
    2.022
    Beruf:
    .
    Ort:
    Niedersachsen
    Ich gehe mal davon aus, dass die Breiten von den EG-Fenstern übernommen wurden?!
    Es ist ja nicht selten, dass die GUs mit großzügigigen Elementen werben, was sich aber später mit Einrichtung nicht mehr so großzügig präsentiert. Es sollten schon die massiven Kleiderschränke stellbar sein.
    Allerdings betrifft das Problem hier auch die Türen. Denn idealerweise stellt man den Kleiderschrank hinter die Tür, damit man nicht gg eine massive Seite gegenläuft.
    Bevor ich andere Fensterbreiten als unten nehme, würde ich die ganze Fassade mal überprüfen, ob es gesamt geändert werden sollte. Ich denke, nur das OG zu betrachten, wäre falsch.
    Ich persönlich würde in Schlafräumen und Familienbad keine bodentiefen Fenster planen, weil sie zu viel Einblick dort geben, wo man es nicht will und braucht.
     
    K a t j a gefällt das.
  6. #6 Kriminelle, 03.07.2022
    Kriminelle

    Kriminelle

    Dabei seit:
    16.05.2013
    Beiträge:
    3.668
    Zustimmungen:
    2.022
    Beruf:
    .
    Ort:
    Niedersachsen
    Man sieht es doch: diesen Wurmfortsatz, den man mit dem Bad betritt. Einen gut möblierten Raum betritt man anders, nicht durch eine Röhre.
     
    K a t j a gefällt das.
  7. #7 Fortgeschrittener Amateur, 03.07.2022
    Fortgeschrittener Amateur

    Fortgeschrittener Amateur

    Dabei seit:
    17.11.2021
    Beiträge:
    12
    Zustimmungen:
    4
    Unten haben wir schmalere Fenster aber in Richtung Westen auf unseren Wunsch weiter nach außen verschoben.

    Diese Verschiebung haben wir im Erdgeschoss Osten ebenfalls angefragt, da sich das gleiche Problem mit dem (selbstgewünschten) Bodentiefen Fenster im Büro ergibt.

    Was den Wurmfortsatz betrifft, hatte es uns aus dem Standardgrundriss gefallen, unter der Schräge eine Sitzbank in der Dusche zu haben. Meint ihr, es wäre sinniger diese L Form zu verwerfen aber die Dusche im Grunde an der Position zu belassen?
     

    Anhänge:

  8. #8 K a t j a, 03.07.2022
    K a t j a

    K a t j a

    Dabei seit:
    31.05.2019
    Beiträge:
    1.009
    Zustimmungen:
    582
    Ort:
    Leipziger Land
    Gegen die Sitzbank spricht ja nix. Aber der Schlaucheingang ist gruselig. Auch find ich das WC krampfhaft zur Hälfte hinter der Miniecke platziert. Das ist häßlich und sinnfrei. Entweder ganz oder gar nicht. In diesem Fall eher gar nicht.
    Wir kennen die Maße des Bades nicht, von daher kann man wenig Konkretes raten.
     
  9. #9 Kriminelle, 03.07.2022
    Kriminelle

    Kriminelle

    Dabei seit:
    16.05.2013
    Beiträge:
    3.668
    Zustimmungen:
    2.022
    Beruf:
    .
    Ort:
    Niedersachsen
    Dann ist WZ/Büro im Osten…?
    …Küche im Westen?
    Warum müsst ihr denn für jedes kleine Detail anfragen?
    Normalerweise kann man in einem Typenhaus die Fenster auf Wunsch (kostenfrei) verschieben, genauso wie Türen, nicht tragende Wände etc.
    Leider zeigst Du hier nur die Entwässerungsplanung, die ist ohne Maße.
    Büro ist die Tür auch falsch im Anschlag, Garten liegt im Norden :(
    Tür zur Küche hat einen langen Weg.
    Kennst Du die Grundrissdiskussion hier?
    Grundrissdiskussionen - bitte vorher lesen!
     
    Fortgeschrittener Amateur gefällt das.
  10. #10 Fortgeschrittener Amateur, 03.07.2022
    Fortgeschrittener Amateur

    Fortgeschrittener Amateur

    Dabei seit:
    17.11.2021
    Beiträge:
    12
    Zustimmungen:
    4
    @Kriminelle Oh sorry da habe ich mich vertan, das Büro ist im Westen. Der HWR und die Küche sind im Osten.

    Die Fenster im Osten haben wir damals bei der Planung weiter auseinanderschieben lassen.

    Jetzt wollten wir es anfragen für WZ und Büro, da wir bereits die Baugenehmigung haben und der GU meinte Verschiebungen seien möglich, wenn es statisch passt.

    Danke für den Hinweis mit der Tür im Büro! Da hatte ich gar nicht drauf geachtet.

    Der lange Weg mit der Küche ist eine Kompromisslösung, die Tür die HWR und Küche verbindet, haben wir entfernen lassen.

    Und wegen der Vorstellung unseres Bau-Projektes werde ich zeitnah die dort aufgeführten Fragen beantworten und uns vorstellen.
     
  11. #11 Kriminelle, 04.07.2022
    Kriminelle

    Kriminelle

    Dabei seit:
    16.05.2013
    Beiträge:
    3.668
    Zustimmungen:
    2.022
    Beruf:
    .
    Ort:
    Niedersachsen
    Das brauchst Du nicht. Grundrissdiskussionen sind nur sinnvoll, wenn man vor dem Bauantrag etwas erfragen möchte.
     
  12. 11ant

    11ant

    Dabei seit:
    28.02.2017
    Beiträge:
    2.459
    Zustimmungen:
    1.535
    Beruf:
    Bauherrenberater
    Ort:
    RLP Nord
    Benutzertitelzusatz:
    bringt Sie gut beraten ins Eigenheim
    Chapeau ! - viel kürzer vor zu spät geht es nun wirklich kaum :-)
     
    simon84 gefällt das.
  13. #13 Fortgeschrittener Amateur, 04.07.2022
    Fortgeschrittener Amateur

    Fortgeschrittener Amateur

    Dabei seit:
    17.11.2021
    Beiträge:
    12
    Zustimmungen:
    4
    @11ant hat aber zeitlich gereicht :) Der Bauleiter bestellt uns Fenster, die nicht 2,01 m breit sind.
     
Thema:

Grundrissdiskussion - Sind die Fenster zu groß?

Die Seite wird geladen...

Grundrissdiskussion - Sind die Fenster zu groß? - Ähnliche Themen

  1. Grundrissdiskussion EFH – Börwang „Beim Mühlenbauer“

    Grundrissdiskussion EFH – Börwang „Beim Mühlenbauer“: 1. Wir sind Zwei Erwachsene (48 und 28 Jahre) Ein Kind (8 Monate), eventuell ein weiteres Kind geplant Keine Einschränkungen, keine...
  2. Grundrissdiskussion EFH

    Grundrissdiskussion EFH: Hallo zusammen ich benötige noch etwas Rat/ Verbesserungsideen bzw. bin "festgefahren" in meiner Planung und auch noch nicht abschließend...
  3. Grundrissdiskussion Hanghaus

    Grundrissdiskussion Hanghaus: Hallo, wir wollten euch gerne auch mal über unsere Ideen diskutieren lassen. Das geplante Baugrundstück ist in unserem Besitz und wir befinden uns...
  4. Grundrissdiskussion EFH Massiv

    Grundrissdiskussion EFH Massiv: Hallo, wir sind derzeit an der Entwurfsplanung unseres Hauses und unseres Erachtens in den letzten Zügen vor der Erstellung des Bauantrags. Gerne...
  5. Grundrissdiskussion Neubau

    Grundrissdiskussion Neubau: Hallo, ich hätte gerne ein paar Meinungen zu meinen derzeitigen Plänen für den Neubau. Es geht um ein EFH. Keller: [IMG] - Das "Bad" soll ggf....