Hilfe bei Grundriss :-) DHH 1935 mit 1978 Flachdachanbau

Diskutiere Hilfe bei Grundriss :-) DHH 1935 mit 1978 Flachdachanbau im Architektur Allgemein Forum im Bereich Architektur; Hallo zusammen, unsere DHH von 1935 mit Flachdach-Anbau von 1978 haben wir nun fast entkernt und können uns einfach noch nicht für einen...

  1. #1 WerkstattFreak, 15.11.2023
    Zuletzt bearbeitet: 15.11.2023
    WerkstattFreak

    WerkstattFreak

    Dabei seit:
    22.06.2023
    Beiträge:
    30
    Zustimmungen:
    0
    Hallo zusammen,

    unsere DHH von 1935 mit Flachdach-Anbau von 1978 haben wir nun fast entkernt und können uns einfach noch nicht für einen Grundriss durchringen. Aktuell gibt es 2 Alternativen. Für Tipps wäre ich wirklich sehr dankbar :-)

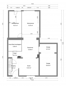
    Variante 1: Erdgeschoss - der einfache Weg
    Bildschirmfoto 2023-11-15 um 19.59.34.png
    Bildschirmfoto 2023-11-15 um 20.19.02.png

    Pro:
    1. Weniger Aufwand, da Dielenböden weitesgehend erhalten bleiben und keine Durchbrüche notwendig,
    2. schöne 4,5m breite Fensterfront in den Garten (Süd-Ost-Ausrichtung)

    Con:
    1. Die sehr dunkle Diele (wegen des Anbaus) verschwendet sehr viel Raum und alles muss in das Wohnzimmer wandern (Küche, Esstisch, Sofa), diese Diele ist unser Problemraum,
    2. Kaminofen im Wohnbereich nicht platzierbar wegen Anforderung an Schornstein

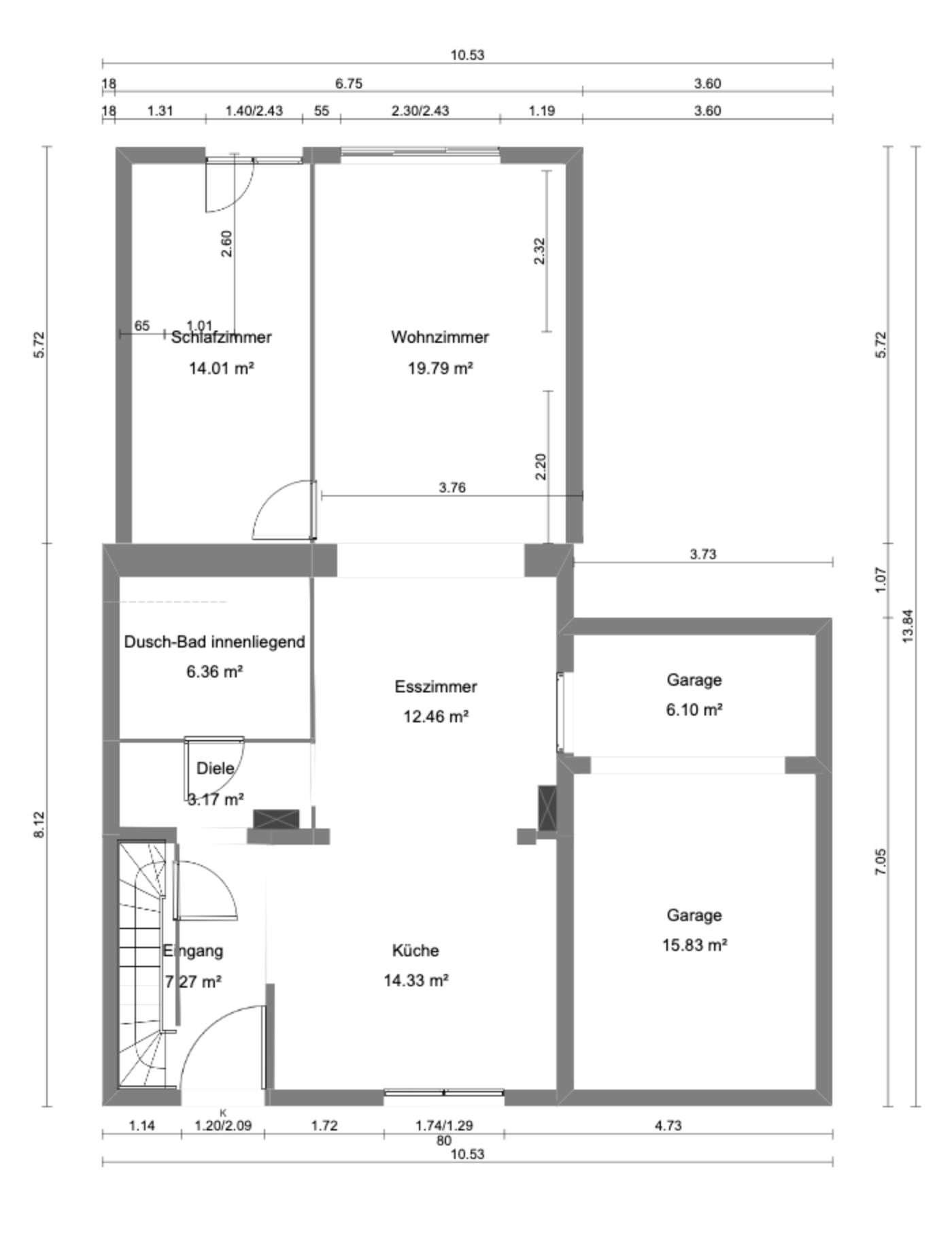
    Variante 2: Erdgeschoss - der aufwändigere Weg
    Bildschirmfoto 2023-11-15 um 19.56.42.png
    Bildschirmfoto 2023-11-15 um 20.16.55.png
    Pro:
    1. Genug Platz für Wohnzimmer, Küche und Esstisch. Schön luftig
    2. Küche hat Blick zur Straße, somit Kontakt zur Außenwelt,
    3. im Esszimmer könnte ein Kamin eingebaut werden

    Con:
    1. Ca. 3 große Durchbrüche notwenig,
    2. Duschbad innenliegend,
    3. alte Holzdielen müssen raus,
    4. Schlafzimmer-Schlauch irgendwie auch nicht optimal,
    5. große 4,5m breite Fensterfront ist weg
     
  2. #2 Tikonteroga, 16.11.2023
    Tikonteroga

    Tikonteroga

    Dabei seit:
    18.06.2016
    Beiträge:
    1.316
    Zustimmungen:
    300
    Ort:
    Baden-Württemberg
    Mir ist aufgefallen, dass der mittlere Raum, in der Variante 1 das Bad und in der Variante 2 das Esszimmer, jeweils kein Fenster haben. Könnte das bei der Variante 1 aufgrund schlechter Lüftungsmöglichkeit problematisch sein?
     
  3. #3 WerkstattFreak, 16.11.2023
    Zuletzt bearbeitet: 16.11.2023
    WerkstattFreak

    WerkstattFreak

    Dabei seit:
    22.06.2023
    Beiträge:
    30
    Zustimmungen:
    0
    Hier noch mal die Vogelperspektive mit exemplarischer Ausstattung

    Variant
    Hey, danke dir für die Nachfrage. In diesem Raum befindet sich ein Fenster Richtung Garage. Dieses ist oberhalb des Flachdaches der Garage. Ca. 126cm breit und 126 hoch. LG
     
  4. #4 Kriminelle, 16.11.2023
    Kriminelle

    Kriminelle

    Dabei seit:
    16.05.2013
    Beiträge:
    3.747
    Zustimmungen:
    2.075
    Beruf:
    .
    Ort:
    Niedersachsen
    Hallo, ich freue mich, dass es hier mal wieder eine Grundrissdiskussion gibt.
    Problematisch ist hier, dass man nicht weiß, was für Wände vorhanden sind, wo welche Leitungen liegen und welche Wände tragend sind. Was ist mit dem OG? Auch das muss getragen werden. Deshalb kann man nicht nur ein Geschoss planen ohne das andere.
    Abriss in rot, neue Wände in gelb - ich glaube, so funktioniert es.
    Außerdem bräuchte man Kenntnis über Euch.
    Da wäre der von Dir ausgefüllte Fragebogen sehr hilfreich. Den findest Du hier
    Grundrissdiskussionen - bitte vorher lesen!
    Fotos vom Haus helfen auch, das ein oder andere zu bewerten
     
Thema:

Hilfe bei Grundriss :-) DHH 1935 mit 1978 Flachdachanbau

Die Seite wird geladen...

Hilfe bei Grundriss :-) DHH 1935 mit 1978 Flachdachanbau - Ähnliche Themen

  1. Hilfe Grundriss Untergeschoss

    Hilfe Grundriss Untergeschoss: Ich benötige etwas Hilfe beim Grundriss für das Untergeschoss. Ich würde gerne die Eingangstür nach Süden legen, da dort die Straße ist. Außerdem...
  2. Hilfe bei Grundriss-Optimierung unserer DHH in Weinheim – junges Paar sucht kreative Ideen!

    Hilfe bei Grundriss-Optimierung unserer DHH in Weinheim – junges Paar sucht kreative Ideen!: Hallo zusammen, 1. Wir sind: wir sind ein junges Paar und wollen uns für unsere Familie - 2 Erwachsene, 31 und 28 Jahre alt + 2 Kinder, 11Monate...
  3. Wir brauchen bitte eure Hilfe / Wissen: Grundriss

    Wir brauchen bitte eure Hilfe / Wissen: Grundriss: Hallo liebe Community, ich bin neu im Forum und finde es super, dass ihr euch gegenseitig unterstützt bzw. Tipps gebt. Ich plane mit meinem Mann...
  4. Renovierung eines Altbaus I Hilfe bei dem Grundriss

    Renovierung eines Altbaus I Hilfe bei dem Grundriss: Moin aus dem Norden, wir sind nun frische Besitzer eines Hauses Baujahr 1959 mit einer Wohnfläche von ca. 100 qm. Das Haus stammt aus der Familie...
  5. Bitte um Hilfe bei der Ideen zum Grundriss eines Hauses fürs Alter

    Bitte um Hilfe bei der Ideen zum Grundriss eines Hauses fürs Alter: 1. Wir sind: Paar, ohne Kinder, jetzt 53 und bauen Häuslein fürs Alter.Behinderung (Krücken, in hohem Alter möglicherweise Rollstuhl), deswegen...