Mein Grundriss fürs Doppelhaus – Feedback erwünscht

Diskutiere Mein Grundriss fürs Doppelhaus – Feedback erwünscht im Architektur Allgemein Forum im Bereich Architektur; Hallo zusammen, ich habe für ein Doppelhaus einen Grundriss entworfen und möchte ihn gerne hier mit euch teilen. [ATTACH] [ATTACH] [ATTACH]...

  1. safak

    safak

    Dabei seit:
    16.08.2025
    Beiträge:
    6
    Zustimmungen:
    1
    Hallo zusammen,

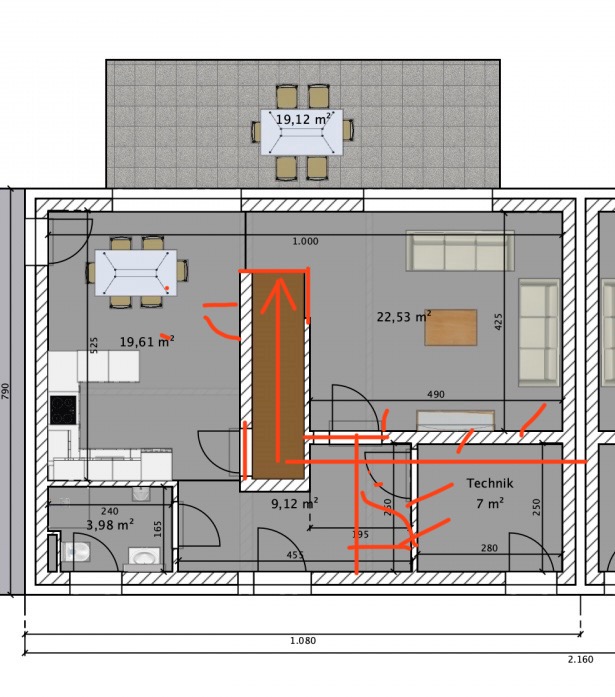
    ich habe für ein Doppelhaus einen Grundriss entworfen und möchte ihn gerne hier mit euch teilen.

    IMG_1575.png IMG_1576.png IMG_1577.jpeg

    Da wir viel Zeit im Wohnzimmer verbringen, war es uns wichtig, diesen großzügig zu planen. Die Küche ist bisher nur grob angelegt und wird sich daher noch verändern.

    Die Außenwände und tragenden Innenwände sind mit 25 cm, die nicht tragenden Innenwände mit 12 cm eingeplant.

    Für das Badezimmer im OG habe ich verschiedene Varianten ausprobiert. Die Variante 5 gefällt mir am besten, da sich links neben der Dusche ein Technikschacht für KWL-Rohre, Fußbodenheizungsrohre usw. gut unterbringen lässt.

    IMG_1578.jpeg

    Für das große Schlafzimmer habe ich noch eine Variante mit einem "Schrankraum" gezeichnet. Welche Variante würdet ihr bevorzugen?

    IMG_1579.jpeg

    Mir ist bewusst, dass es sicher noch Verbesserungspotenzial gibt, deshalb freue ich mich über jede ehrliche Meinung und Ideen.

    Besonders interessant wären für mich eure Gedanken zu:
    • Funktionalität und Alltagstauglichkeit
    • Lichtverhältnissen und Fensterpositionen
    • Möglichkeiten, den Grundriss noch effizienter oder gemütlicher zu gestalten
    LG
    Safak
     
  2. Yilmaz

    Yilmaz

    Dabei seit:
    28.03.2006
    Beiträge:
    7.254
    Zustimmungen:
    1.283
    Beruf:
    Maurer & Betonbaumeister
    Ort:
    Delbrück/Westfalen
    Benutzertitelzusatz:
    Maurer-und Betonbauermeister
    Auf den ersten Blick sieht alles verplant aus.
    Zwei Volletagen? Hast Du Ansichten?

    Waschbecken möglichst gegenüber von Fenster einplanen das man sich Tagsüber noch ohne Licht Rasieren kann.
     
    11ant gefällt das.
  3. Yilmaz

    Yilmaz

    Dabei seit:
    28.03.2006
    Beiträge:
    7.254
    Zustimmungen:
    1.283
    Beruf:
    Maurer & Betonbaumeister
    Ort:
    Delbrück/Westfalen
    Benutzertitelzusatz:
    Maurer-und Betonbauermeister
    Diese Treppenform nimmt bei diese Schmalen Hausbreite viel Platz weg. Halbgewendelt in der an Trennwand würde Praktischer werden
     
    Kriminelle, 415B und 11ant gefällt das.
  4. #4 Fabian Weber, 16.08.2025
    Fabian Weber

    Fabian Weber

    Dabei seit:
    03.04.2018
    Beiträge:
    16.232
    Zustimmungen:
    6.433
    Ich würde den Technikraum sparen und die Technik eher in den besagten Kellerersatzraum packen. Dafür würde ich aus dem Technikraum ein ordentliches Zimmer machen und mir lieber die Tür vom Flur zum Wohnzimmer sparen.

    Warum es eine Tür zum Treppenhaus gibt erschließt sich mir nicht.

    Die Fassade solltest Du mal aufzeichnen, bisher ist das alles recht asymmetrisch zum Obergeschoss. Das bekommt man aber hin, ohne die Raumaufteilung großartig zu verändern.

    Insgesamt bietet der Grundriss aber jetzt nicht mehr, als ein Standardgrundriss bei dem die Treppe an der Trennwand liegt.
     
    11ant gefällt das.
  5. 11ant

    11ant

    Dabei seit:
    28.02.2017
    Beiträge:
    2.446
    Zustimmungen:
    1.522
    Beruf:
    Bauherrenberater
    Ort:
    RLP Nord
    Benutzertitelzusatz:
    bringt Sie gut beraten ins Eigenheim
    Weshalb Du, möchte der Hälftenpartner das alles allein in Deine Hände legen ?
     
  6. #6 Kriminelle, 16.08.2025
    Kriminelle

    Kriminelle

    Dabei seit:
    16.05.2013
    Beiträge:
    3.634
    Zustimmungen:
    1.996
    Beruf:
    .
    Ort:
    Niedersachsen
    Du bist gerade mal einen Tag im Forum und fällst mehreren negativ auf.

    @safak, füll doch mal den Fragebogen aus
    Grundrissdiskussionen - bitte vorher lesen!
     
    Alex88 und driver55 gefällt das.
  7. #7 driver55, 17.08.2025
    Zuletzt bearbeitet: 17.08.2025
    driver55

    driver55

    Dabei seit:
    22.02.2008
    Beiträge:
    6.812
    Zustimmungen:
    1.760
    Beruf:
    Dipl.-Ing.
    Ort:
    Pforzheim
    Sicherlich „Speise/Abstellkammer“…

    ansonsten: Schwere Kost
    - Haustüre auf, kommt direkt ne Wand
    -WC ums Kücheneck
    - „Esszimmer“ viel zu klein
    -KiZis zu klein, Flur im OG viel zu groß
    -Möbelstücke habt ihr keine?
    - sehe keine Stauflächen

    1x Neu bitte

    Anmerkung: Du hast „nur“ 130 qm, die musst du sinnvoll/effizient einteilen. Das erreicht man allerdings nicht durch eine gerade Treppe mitten im Haus.
     
    11ant gefällt das.
  8. 415B

    415B

    Dabei seit:
    03.12.2024
    Beiträge:
    1.333
    Zustimmungen:
    238
    Naja nichts besonderes, einen Preis wirst du damit nicht gewinnen.
    Und wenn ihr das Wohnzimmer nur nutzt dann braucht ihr keine Kinderzimmer.
     
  9. #9 Kriminelle, 17.08.2025
    Zuletzt bearbeitet: 17.08.2025
    Kriminelle

    Kriminelle

    Dabei seit:
    16.05.2013
    Beiträge:
    3.634
    Zustimmungen:
    1.996
    Beruf:
    .
    Ort:
    Niedersachsen
    Außenwände um 20cm dicker zeichnen.
    Ich sehe Reihenmittelhäuser. Wenn man drei Außenseiten zur Verfügung hat, sollte man sie auch nutzen.
    Ohne Fenster, keinen Kuchen.

    Nach Eingangstür läuft man gegen eine Wand, ich sehe keinen ausreichenden Platz für Garderobenschränke, Antritt Treppe im WZ mindert Privatsphäre bei 2 Kindern. Zu großer Flur und gerade Treppe klaut Fläche, Küche zu klein, keine Abstellfläche für Bügelbrett, Putzzeug und diverser anderer Sachen, die Outdoor nicht lagern können.
    Wenig alltagstauglich.
    Ansonsten kann man ohne Raumprogramm und Maße nicht mehr sagen.
     
    11ant und driver55 gefällt das.
  10. #10 driver55, 17.08.2025
    driver55

    driver55

    Dabei seit:
    22.02.2008
    Beiträge:
    6.812
    Zustimmungen:
    1.760
    Beruf:
    Dipl.-Ing.
    Ort:
    Pforzheim
    Kannst eigentlich nicht zurück auf die Bundesstraße?

    Lesen, verstehen, davor Hirn einschalten (sofern vorhanden)
     
  11. safak

    safak

    Dabei seit:
    16.08.2025
    Beiträge:
    6
    Zustimmungen:
    1
    Vielen Dank für die zahlreichen Antworten.

    Unser Raumprogramm:

    Keller:
    nicht gewünscht
    Wohnzimmer:
    großzügig, da wir dort die meiste Zeit verbringen - Eine schmale Wand, an der der Fernseher hängt, zusammen mit einem L-förmigen Sofa gefällt uns nicht.
    Küche:
    mit Kochinsel, möglichst vom Wohnbereich abgetrennt
    Schlafzimmer:
    3 im Obergeschoss
    Ankleide:
    kein Muss
    Bäder:
    je ein Bad im Erdgeschoss und im Obergeschoss ausreichend
    Gästezimmer:
    wünschenswert, aber nicht zwingend erforderlich (gewisse Abstriche muss man in Kauf nehmen)
    Abstellraum/Speisekammer:
    unbedingt wünschenswert


    Welchen Hausstil bevorzugen wir?

    Ziegelmassivbau(25 cm Ziegel + 20 cm WDVS) Bauhaus-Edition mit Flachdach (Fenster im Badezimmer sind noch Verbesserungswürdig)

    upload_2025-8-17_15-7-47.png


    Welche Zusatzwünsche/Features

    Carport für 2-4 Fahrzeuge, Terrassenüberdachung, Kellerersatzraum für Fahrräder, Reifen, diverse Werkzeuge, …


    Bebauungsplan/Einschränkungen

    Grundstück:
    rechteckig, 777 m² (ca. 35 m × 22 m)
    Abstände:
    Mindestabstand 3 m zur Grundstücksgrenze (außer bei Garage/Carports)
    Gelände:
    Straße im Osten liegt ca. 1–1,5 m höher als das westliche Grundstücksende
    Stützmauern:
    bis 1,5 m Höhe sowie Stützmauern mit aufgesetzter Einfriedung bis 2,5 m bewilligungsfrei
    Carports:
    bis 50 m² Grundfläche genügt eine Bauanzeige; größere Carports benötigen eine Baubewilligung. Traufenhöhe darf 3 m über dem Erdgeschoßfußboden nicht überschreiten.
    Gebäudehöhe:
    keine feste Höhenbeschränkung; Orts- und Landschaftsbild darf nicht beeinträchtigt werden


    angedachte Haustechnik
    • RGK
    • BKA
    • KWL mit Enthalpiewärmetauscher
    • Netzwerkschrank
    • Regenwasserzisterne (Gartenbewässerung, WC-Spülung und für Waschmaschine)
    • Platz für PV Wechselrichter und Speicher
    • Warmwasserspeicher
    • Wasserenthärtungsanlage
    • automatische Gartenbewässerung
    • Sicherheitskameras (zumindest vorbereitet)
    • KNX oder Loxone

    Hausentwurf

    Die Planung habe ich selbst erstellt, inspiriert von Fertigteilhäusern mit einem ähnlichen Grundriss.

    Ich habe mir hunderte Grundrisse angesehen, aber bis auf ein paar hat mich keiner so richtig begeistert oder passte zu unserem Grundstück.

    Da es kein reines EFH ist, muss man natürlich gewisse Abstriche in Kauf nehmen. Klar, man könnte die Häuser größer machen und dafür etwas vom Garten wegnehmen, nur würde der Garten dann sehr lang und schmal wirken.

    Den aktuellen Grundriss könnte ich noch von 7,9 m auf 8 m vergrößern, wodurch die beiden Schlafzimmer im Obergeschoss jeweils 13 m² groß wären.

    Im Vergleich zu unserer Wohnung hab ich diesen Grundriss als gut empfunden.

    Ich habe auch einige andere Grundrissvarianten mit denselben Außenmaßen ausprobiert, dabei ergeben sich jedoch unterschiedliche Zimmergrößen im Obergeschoss. Beispiele:

    20250812533739.png

    20250812627101.png

    upload_2025-8-17_15-28-35.png
    upload_2025-8-17_15-29-3.png

    LG
    Safak
     
  12. #12 Kriminelle, 17.08.2025
    Kriminelle

    Kriminelle

    Dabei seit:
    16.05.2013
    Beiträge:
    3.634
    Zustimmungen:
    1.996
    Beruf:
    .
    Ort:
    Niedersachsen
    Masse statt Klasse interessiert eigentlich nicht. Vieles ist nicht durchdacht, meine Meinung.
    Wie ist denn die GRZ und GFZ? Gibt es ein Baufenster?
    Und wenn nach Par. 34 BauGB: wie sieht denn die Umgebungsbebauung aus?
    Ups!
    Sind es nicht eher 50 Kubikmeter?
    Eigentlich nicht. Ein Doppelhaus kann die gleichen Vorzüge haben wie ein EFH. Nur muss man es auch entsprechend planen. Entschuldigen braucht man sich einem Bau eines Doppelhauses so nicht.
     
    11ant gefällt das.
  13. #13 Kriminelle, 17.08.2025
    Zuletzt bearbeitet: 17.08.2025
    Kriminelle

    Kriminelle

    Dabei seit:
    16.05.2013
    Beiträge:
    3.634
    Zustimmungen:
    1.996
    Beruf:
    .
    Ort:
    Niedersachsen
    Gibt es konkret keine Antworten dazu?
    Also, ich sehe jetzt nicht, warum man den Wohnraum im Allgemeinen so einschränken will, dass es keine Fenster im Ost und im West geben soll.
    Ich sehe auch keinen Grund, warum man eine geschlossene Kette plant und wie die Ölsardinen dann im Garten nebeneinander leben sollte.
    Ich sehe aber auch keinen Zweck für diese überdimensionale Carport-Einrichtung.
    IMG_1800.jpeg
    Derzeit ist der Garten nur lang und schmal.

    Man kann sich das auch einfach und viel netter machen.
    (Alles nur Circa-Angaben, quick and dirty)
     
    11ant gefällt das.
  14. safak

    safak

    Dabei seit:
    16.08.2025
    Beiträge:
    6
    Zustimmungen:
    1
    Habe vergessen zu erwähnen, dass ich in Österreich wohne und das Grundstück auch hier befindet. Somit haben wir keine gesetzlich festgeschriebene GRZ und GFZ Werte.
    Die meisten Häuser in der Umgebung haben zwei Vollgeschosse, es gibt auch Bungalows und eines hat sogar drei Geschosse.

    Nein, sind tatsächlich 50 m²
    So einen Plan hätte ich auch im Hinterkopf gehabt, war mir aber dann doch nicht so sicher, aufgrund der Hanglange. Werde mich am Abend nochmal hinsetzen und ein bzw. mehrere Grundrisse zeichnen und hier hochladen.

    LG
     
  15. #15 Kriminelle, 18.08.2025
    Zuletzt bearbeitet: 18.08.2025
    Kriminelle

    Kriminelle

    Dabei seit:
    16.05.2013
    Beiträge:
    3.634
    Zustimmungen:
    1.996
    Beruf:
    .
    Ort:
    Niedersachsen
    Das hast Du wohl.
    Aber auch in Ö gibt es GRZ und GFZ und Regeln, die über dem Grundstück stehen und an die man sich halten muss.
    Sorg für die Daten, dann kann es weitergehen.

    Ohne Grundlagen-Offenlegung gibt es keine konstruktive Diskussion, nur Kinderkram und Träumereien, also nur Zeitdiebstähle.
     
    11ant gefällt das.
  16. #16 Fabian Weber, 18.08.2025
    Fabian Weber

    Fabian Weber

    Dabei seit:
    03.04.2018
    Beiträge:
    16.232
    Zustimmungen:
    6.433
    Also Deine Ansicht von der Straße ist noch etwas rumpelig.

    Mach mal die kleine Fenster in der Mitte im EG genau so breit, wie die darüber und die kleinen Fenster am Rand mit der gleichen Außenkante wie darüber oder wenn es doch ein weiteres Zimmer wird (siehe mein andere Post), dann gleiche Fenster wie darüber.

    Die Seitenwände vom Vordach etwas mehr zur Haustür zurück, damit das Fenster darüber mehr Luft hat, das sieht noch etwas gequetscht aus.
     
  17. #17 Fabian Weber, 18.08.2025
    Fabian Weber

    Fabian Weber

    Dabei seit:
    03.04.2018
    Beiträge:
    16.232
    Zustimmungen:
    6.433
    Hier meine Anpassungen:

    Ich würde andersrum die Treppe hochgehen, das bringt etwas mehr Privatsphäre ins Wohnzimmer und man läuft nach oben einem Fenster entgegen (kleines Entwurfs 1x1).

    Unter der Treppenschräge kann man dann zwischen Küche und Wohnzimmer ein tolles Raumteileregal machen, was einen super Akzent schafft.

    Wie gesagt, aus dem Technikraum vorne lieber ein kleines Büro, das Wohnzimmer habe ich direkt größer gemacht.

    Eine kleine Garderobennische rechts von der Treppe hat sich auch noch ergeben.
     

    Anhänge:

    Kriminelle gefällt das.
  18. #18 hanghaus2000, 18.08.2025
    hanghaus2000

    hanghaus2000

    Dabei seit:
    24.11.2021
    Beiträge:
    1.494
    Zustimmungen:
    609
    Beruf:
    Bauleiter, Kalkulator, Controller, Salzdesign
    Ort:
    Bayern
    Bei weniger als 7% Gefaelle sollte der Entwurf von @Kriminelle leichht umsetzbar sein.
     
  19. #19 hanghaus2000, 18.08.2025
    hanghaus2000

    hanghaus2000

    Dabei seit:
    24.11.2021
    Beiträge:
    1.494
    Zustimmungen:
    609
    Beruf:
    Bauleiter, Kalkulator, Controller, Salzdesign
    Ort:
    Bayern
    Warum baut man hier nicht 2 EFH?
    upload_2025-8-18_11-19-9.png
     
    11ant gefällt das.
  20. safak

    safak

    Dabei seit:
    16.08.2025
    Beiträge:
    6
    Zustimmungen:
    1
    Das Bauamt hat mir mitgeteilt, dass für das Grundstück kein Bebauungsplan besteht und daher die Bauvorschriften der Bauordnung des Bundeslandes gelten und keine weiteren Vorgaben gibt.

    In den Gesetzestexten sind keine Vorgaben zu GRZ und GFZ enthalten – diese werden im Bebauungsplan festgelegt. Jedoch steht, dass ein Bauplatz grundsätzlich nicht kleiner als 500 m² sein darf. Eine Unterschreitung ist nur zulässig, wenn dadurch die ordnungsgemäße Bebauung und Nutzung nicht beeinträchtigt wird (relevant falls das Grundstück geteilt wird).

    Wie bereits erwähnt, muss sich das Gebäude ins Orts- und Landschaftsbild einfügen. Außerdem müssen die Abstandsregeln zu den Nachbargrundstücken eingehalten werden: mindestens 3 m, und ab einer Gebäudehöhe von 9 m mindestens ein Drittel der Höhe.

    Für Nebengebäuden wie Garagen, Carports, Garten- oder Gerätehütten gelten folgende Maße: Traufenhöhe max. 3 m, Gesamthöhe (wie Dachgiebeln) max. 7 m. Befindet sich ein Nebengebäude weniger als 2 m von der Nachbargrenze entfernt, sind an der zur Nachbargrenze gerichteten Außenwand keine Türen, Fenster oder Verglasungen erlaubt.

    Damit müssten die Fragen zu GRZ und GFZ nun geklärt sein.

    Das Bauamt hat außerdem mitgeteilt, dass einmal im Monat ein Bausachverständiger im Gemeindeamt anwesend ist und dass anhand eines Entwurfes viele Fragen geklärt werden können.

    LG
     
Thema:

Mein Grundriss fürs Doppelhaus – Feedback erwünscht

Die Seite wird geladen...

Mein Grundriss fürs Doppelhaus – Feedback erwünscht - Ähnliche Themen

  1. Symbol Grundriss ca. 1875 Preußen Bitte um Erklärung

    Symbol Grundriss ca. 1875 Preußen Bitte um Erklärung: Hallo, ich habe vor einiger Zeit eine alte Försterei gekauft und suchte ewig nach Bauzeichnungen oder Grundrissen dazu. Lange Story kurz, ich...
  2. Grundriss. EFH 1 Vollgeschoss ohne Schrägen ca. 180qm

    Grundriss. EFH 1 Vollgeschoss ohne Schrägen ca. 180qm: Hi zusammen, wir sind gerade fleißig am Planen. Der Plan ist ein DIY. Habt ihr anregungen, wie man das ganze verbessern kann oder wo Probleme...
  3. Altbau-Sanierung BJ 1904: Grundriss neu, WP/PV, Dämmung – wo übersehe ich Risiken?

    Altbau-Sanierung BJ 1904: Grundriss neu, WP/PV, Dämmung – wo übersehe ich Risiken?: Liebe Community, wir (2 Erwachsene + 2 kleine Kinder) überlegen, einen Altbau (PLZ 33739) zu kaufen und umfassend zu sanieren und würden uns sehr...
  4. Grundriss- Betriebsblind – brauche euren frischen Blick

    Grundriss- Betriebsblind – brauche euren frischen Blick: Hallo zusammen, ich beschäftige mich nun schon seit einiger Zeit intensiv mit diesem Thema/Projekt und habe mittlerweile das Gefühl, etwas...
  5. Bitte um Hilfe bei der Ideen zum Grundriss eines Hauses fürs Alter

    Bitte um Hilfe bei der Ideen zum Grundriss eines Hauses fürs Alter: 1. Wir sind: Paar, ohne Kinder, jetzt 53 und bauen Häuslein fürs Alter.Behinderung (Krücken, in hohem Alter möglicherweise Rollstuhl), deswegen...