Neubau - Garage am Haus

Diskutiere Neubau - Garage am Haus im Architektur Allgemein Forum im Bereich Architektur; Hallo zusammen, herzlichen Dank erstmals, dass es dieses Forum gibt. Ich hab schon einige Beiträge zu diesem Thema gelesen und möchte mich nun an...

  1. Alema

    Alema

    Dabei seit:
    23.12.2020
    Beiträge:
    7
    Zustimmungen:
    0
    Hallo zusammen,

    herzlichen Dank erstmals, dass es dieses Forum gibt. Ich hab schon einige Beiträge zu diesem Thema gelesen und möchte mich nun an die Experten wenden, da wir aktuell noch in der Planung sind und Dinge verändern können.

    Wir planen den Neubau eines Einfamilienhauses ohne Keller. Wir wissen noch nicht ob wir mit Poroton oder Porenbeton (Stein: 36,5 cm ohne zusätzliche Dämmung) bauen werden.

    Da wir keine Fertiggarage haben möchten, haben wir die Garage bei unserem Bauträger rausgenommen. Es soll eine gemauerte Garage werden 6x6 Meter mit einem Anbau 2x3 Meter. Spielt es eine Rolle ob die Garage mit einem anderen Stein gemauert wird? In diesem Fall soll die Garage mit Kalksand Stein gemauert werden.

    Gestern habe ich mich mit einem Maurermeister unterhalten.

    Er würde Streifenfundamente legen und die Bodenplatte machen, inkl. Ringanker. Die Garage würde er mit 2-5 cm Abstand vom Haus stellen. Wir haben dann einen direkten Zugang von der Garage zum Technikraum.

    Für mich stellt sich die Frage, ob wir dann ein Flachdach nehmen sollen oder ein geneigtes Dach mit Gefälle weg vom Haus oder ein Gefälle von der Einfahrt bis zum Garagenende. Wie schließt man am besten die Lücke zwischen dem Haus und der Garage? Wo soll am besten die Dachauflage befestigt werden?

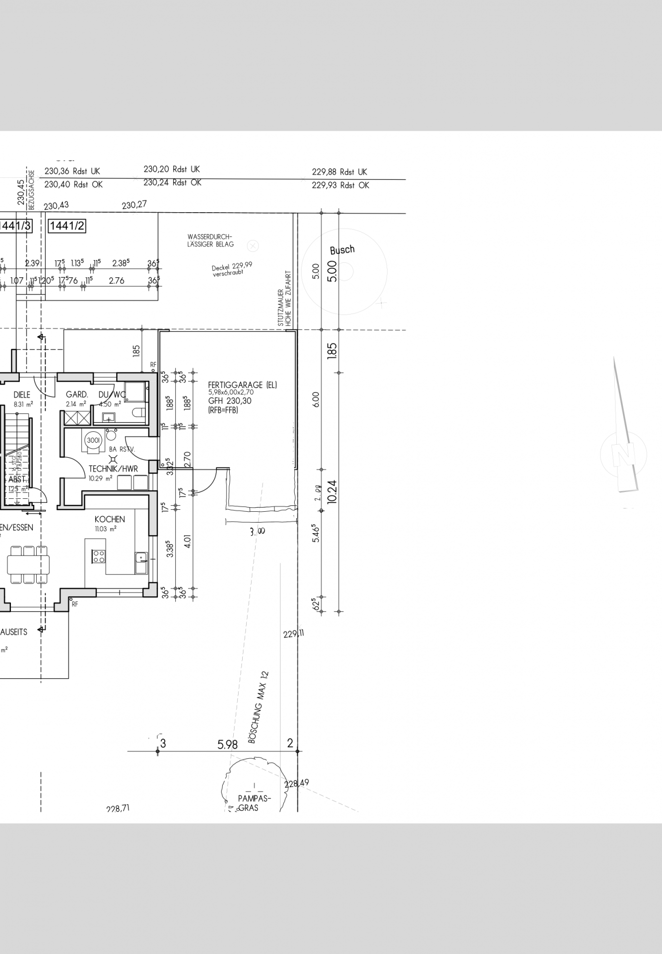
    Zur Veranschaulichung, lade ich unsere Pläne hoch.

    Vielen Dank im Voraus.

    44D8B05F-06A1-4EBC-87D1-8A57D6102F02.jpeg 5BA09BE4-5ACC-4150-AF2D-E5A5737119B6.png A2F4AB94-AD81-49CC-8435-FD101686E29F.png 733A9462-5B60-402E-BBE7-1A022AF93619.png
     
  2. 11ant

    11ant

    Dabei seit:
    28.02.2017
    Beiträge:
    2.577
    Zustimmungen:
    1.623
    Beruf:
    Bauherrenberater
    Ort:
    RLP Nord
    Benutzertitelzusatz:
    bringt Sie gut beraten ins Eigenheim
    Die zulässige mittlere Wandhöhe einer Grenzgarage sehe ich selbst mit einem Flachdach hier schon klar überschritten und die Garage tiefer gelegt werden müssen. Die Verbindungstür ist bei diesen Platzverhältnissen ohnehin noch fragwürdiger von Nutzen als ohnehin. Kalksandstein wozu ? - da wären ggf. 15 cm Wandstärke machbar, aber der Unterschied zu 17,5 bei Porenziegel macht den Kohl nicht fett.
     
    K a t j a und Dimeto gefällt das.
  3. Dimeto

    Dimeto

    Dabei seit:
    22.07.2017
    Beiträge:
    1.635
    Zustimmungen:
    2.145
    Beruf:
    Vermessungsingenieur
    Ort:
    NRW
    Das halte ich für keine gute Idee, da im Schadensfall jeder die Verantwortung auf den anderen schieben wird.
    Leider ist das Bundesland geheim, in BW wäre es erlaubt. Dafür wäre dort die Grenze zur Verfahrensfreiheit überschritten, so dass die Herausnahme auch einer Klärung bei der Genehmigungsbehörde bedarf.
     
    Kriminelle, simon84, 11ant und einer weiteren Person gefällt das.
  4. #4 petra345, 24.12.2020
    Zuletzt bearbeitet: 24.12.2020
    petra345

    petra345

    Dabei seit:
    17.02.2017
    Beiträge:
    5.207
    Zustimmungen:
    1.014
    Beruf:
    Ing. plus B. Eng.
    Ort:
    Rhein-Main-Gebiet
    Benutzertitelzusatz:
    Ing.(grad.) plus B. Eng.
    1 m³ KS kostet fast doppelt so viel wie 1 m³ Porenbeton. Eine 11,5 cm dicke Wand in PB 4 ist völlig ausreichend. Man spart Material, schont damit die Umwelt, hat mehr Platz in der Garage und weniger Material bei einem späteren Abbruch.
    Wenn man am Haus auf eine weitere Wand verzichtet und das Dach etc. in die vorhandene Hauswand einläßt gewinnt man weiteren Platz. Man wird allerdings feststellen, daß Haus und Garage sich unterschiedlich setzen und sich ein Riß zwischen Garage und Haus ausbildet.

    Den will der Maurer mit seinem Abstand vermeiden. Aber da genügt ein 1 bis 2 cm Abstand und die Fuge wird elastisch verschlossen.

    Bei der Garagenbreite kann man an eine Betondecke und ein Satteldach denken. Damit gewinnt man den Platz für die Gartengeräte, den Grill und all das was man noch garnicht kennt.

    Bei einem Flachdach muß man einen Ringbalken vorsehen auf dem sich die Betondecke erwämt und ausdehnen kann.
    Der ist bei einer 11,5er Wand etwas umständlicher einzuschalen als bei einer 24 cm dicken Garagenwand.

    Auch muß der Wandputz am Haus dafür ausgebildet sein, das Spritzwasser vom Garagendach aufzunehmen.

    Auf den Vorsprung an der Frontseite des Hauses hätte ich verzichtet. Aber ein Architekt muß ja zeigen, daß er etwas Besonderes gestalten kann. Die Kosten dafür vermute ich im Bereich von 15 bis 30.000 €.

    .
     
  5. #5 jodler2014, 24.12.2020
    jodler2014

    jodler2014

    Dabei seit:
    20.12.2014
    Beiträge:
    3.907
    Zustimmungen:
    543
    Beruf:
    Angestellter
    Ort:
    RP
    Mit dem BT oder GÜ etc. handelt man einen fairen Preis für die Wunschgarage aus .:deal
    Alles andere hat keinen Sinn und erzeugt nur unnötige Risiken wenn was beim Bau der Garage in EL schiefgeht.
    17,5 cm Mauerwerk sollte es schon sein.
    Warum nicht einfach einen günstigen Bimsstein verwenden?
    Muss ja kein Thermstein sein.
    Autos frieren ja nicht.
     
    11ant gefällt das.
  6. Alema

    Alema

    Dabei seit:
    23.12.2020
    Beiträge:
    7
    Zustimmungen:
    0
    Beim Bundesland handelt es sich um BW. Das hatte ich total vergessen zu erwähnen.
     
  7. Alema

    Alema

    Dabei seit:
    23.12.2020
    Beiträge:
    7
    Zustimmungen:
    0
    Leider ist das Bundesland geheim, in BW wäre es erlaubt. Dafür wäre dort die Grenze zur Verfahrensfreiheit überschritten, so dass die Herausnahme auch einer Klärung bei der Genehmigungsbehörde bedarf.[/QUOTE]
    Was bedeutet das genau, mit der Verfahrensfreiheit?
     
  8. Dimeto

    Dimeto

    Dabei seit:
    22.07.2017
    Beiträge:
    1.635
    Zustimmungen:
    2.145
    Beruf:
    Vermessungsingenieur
    Ort:
    NRW
    Wir wissen zu wenig über Dein Vorhaben. Du schreibst
    Das bedeutet, Du kaufst ein Haus mit Grundstück. Der Bauträger ist für alles verantwortlich, also auch für die Baugenehmigung. Wenn Du die Garage rausnehmen willst, wäre sie nicht mehr Bestandteil der Baugenehmigung. Du müsstest sie also gesondert beantragen. Ich vermute aber, dass Du gar nicht Bauträger meinst, sondern Generalunternehmer oder Bauunternehmer. Also:
    Wem gehört aktuell das Grundstück?
    Mit welcher Art von Unternehmen hast Du einen Vertrag geschlossen?
    Welches Verhältnis habt Ihr zum bauvorlageberechtigten Entwurfsverfasser (Selbst beauftragter Architekt oder Inklusivleistung)?
    Nach welchem Verfahren wollt Ihr bauen (§51 Kenntnisgabeverfahren oder §52 Vereinfachtes Baugenehmigungsverfahren)?
    Zu welchem Zeitpunkt soll die Garage gebaut werden (parallel zum Haus, unmittelbar nach Fertigstellung, später)?
     
    Kriminelle, simon84, driver55 und einer weiteren Person gefällt das.
  9. #9 simon84, 25.12.2020
    simon84

    simon84
    Moderator

    Dabei seit:
    11.11.2012
    Beiträge:
    23.323
    Zustimmungen:
    6.938
    Beruf:
    Schrauber
    Ort:
    Muenchen
  10. #10 Kriminelle, 25.12.2020
    Kriminelle

    Kriminelle

    Dabei seit:
    16.05.2013
    Beiträge:
    3.837
    Zustimmungen:
    2.161
    Beruf:
    .
    Ort:
    Niedersachsen
    Das waren wohl zu viele Fragen zu Weihnachten :irre
     
    K a t j a gefällt das.
  11. #11 jodler2014, 25.12.2020
    jodler2014

    jodler2014

    Dabei seit:
    20.12.2014
    Beiträge:
    3.907
    Zustimmungen:
    543
    Beruf:
    Angestellter
    Ort:
    RP
    Die wichtigste Frage ist doch :
    Warum steht die LWP vor dem Haus ?
    Früher haben die Bauherren da die Mülltonnen - Box eingeplant .
    Die konnte man noch je nach Geldbeutel hübsch verpacken .
    Aber die Außeneinheit ist ja nicht schön ...
    Und die Ansicht aus #1 zerstört einfach nur !
    Ich persönlich kann nicht nachvollziehen warum für Keller und Garagen immer Wucherpreise aufgerufen werden !
     
  12. #12 Kriminelle, 26.12.2020
    Kriminelle

    Kriminelle

    Dabei seit:
    16.05.2013
    Beiträge:
    3.837
    Zustimmungen:
    2.161
    Beruf:
    .
    Ort:
    Niedersachsen
    Nö, die Wichtigkeit von @Dimeto s Fragen bestimmt immer noch der Fragesteller bzw. die oder der TE, da ja eine Antwort auf diese Fragen
    erhalten möchte.
    Denn wenn irgendwas sein sollte, ein an der Fassade des Hauses, in der Bodenplatte, Wasser zwischen den Häusern oeä, dann könnte es sein, dass auf nix eine Gewährleistung ist.
    Dass TE @Alema es anscheinend hier zu mühselig wird, auch könnte die Planung mit mehr Wissen ins Wasser fallen, steht auf einem anderen Blatt.
     
  13. 11ant

    11ant

    Dabei seit:
    28.02.2017
    Beiträge:
    2.577
    Zustimmungen:
    1.623
    Beruf:
    Bauherrenberater
    Ort:
    RLP Nord
    Benutzertitelzusatz:
    bringt Sie gut beraten ins Eigenheim
    Warum eigentlich nicht ? - ich sehe in der Zeichnung keine architektonischen Finessen, die nur von einer handgebauten Unikatgarage zu erfüllen gingen. Die Fertiggaragenpreise scheinen aktuell die Bauherren sehr zum Träumen anzuregen, in der Eigenleistung läge das schnell verdiente Geld in der Einfahrt.
     
    simon84 gefällt das.
  14. Alema

    Alema

    Dabei seit:
    23.12.2020
    Beiträge:
    7
    Zustimmungen:
    0
    Das Grundstück gehört uns bereits und wir bauen mit einem Generalunternehmer. Wenn möglich soll die Garage zeitgleich errichtet werden. Die Garage wurde beim Bauantrag mit beantragt.
     
  15. Alema

    Alema

    Dabei seit:
    23.12.2020
    Beiträge:
    7
    Zustimmungen:
    0
    Die Fertiggarage hat einen Preis von 36.000 €. Nach Rücksprache mit einem Maurer, könnte mir dieser die Garage für 20.000 € hinstellen. Der Preisunterschied ist enorm.
     
  16. Alema

    Alema

    Dabei seit:
    23.12.2020
    Beiträge:
    7
    Zustimmungen:
    0
    Die LWWP haben wir mit Absicht nach vorne gestellt, da unsere Schlafzimmer auf der anderen Seite liegen, und wir eventuelle Geräusche der LWWP vermeiden wollten. Es ist okay wenn Ihnen die Ansicht nicht gefällt. Geschmäcker sind nun mal verschieden. Unsere Fragestellung bezieht sich aber nicht auf die Position der Wärmepumpe.
     
  17. Alema

    Alema

    Dabei seit:
    23.12.2020
    Beiträge:
    7
    Zustimmungen:
    0
    Wahrlich bin ich nicht mehr dazugekommen. Ein frohes neues Jahr wünsche ich dennoch :)

    Hätten Sie Tipps zu meiner Fragestellung?
     
  18. #18 Kriminelle, 11.01.2021
    Kriminelle

    Kriminelle

    Dabei seit:
    16.05.2013
    Beiträge:
    3.837
    Zustimmungen:
    2.161
    Beruf:
    .
    Ort:
    Niedersachsen
    Nach drei Wochen hat wohl keiner mehr etwas zu sagen. Ich lese mich in keine alten Beiträge ein, die vom TE 3 Wochen brach liegengelassen werden.
     
Thema:

Neubau - Garage am Haus

Die Seite wird geladen...

Neubau - Garage am Haus - Ähnliche Themen

  1. Betonkernaktivierung, FBH in Betonsohle, Neubau Garage

    Betonkernaktivierung, FBH in Betonsohle, Neubau Garage: Moin zusammen, ich plane aktuell meine freistehende Garage in Massivbauweise, die ich neben meinem Wohnhaus bauen möchte. Die Garage soll beheizt...
  2. Schimmel innen am Dach - Neubau Garage - Beton mit Holzdachstuhl 6 Monate nach Einzug

    Schimmel innen am Dach - Neubau Garage - Beton mit Holzdachstuhl 6 Monate nach Einzug: Guten Tag liebes Forum und Experten, Wir sind im August 2023 in einen Neubau gezogen. Die Garage ist aus Beton gefertigt (verschalt) und hat...
  3. Neubau EFH - vermutlich aufsteigende Feuchtigkeit Garage

    Neubau EFH - vermutlich aufsteigende Feuchtigkeit Garage: Hallo Zusammen, wir sind in 01/2020 in unser neu gebautes EFH eingezogen. Wir haben eine Doppelgarage, die direkt an das Haus angrenzt, gebaut....
  4. Neubau. Garage direkt am Haus anbauen oder 2 Wände ?

    Neubau. Garage direkt am Haus anbauen oder 2 Wände ?: Hallo. Wir möchten ein EFH Haus bauen und unser Generalunternehmer hat uns aus (Kostengründen) vorgeschlagen, dass die gemauerte Garage direkt mit...
  5. Neubau mit Garage

    Neubau mit Garage: Hallo, ich plane ein Neubau mit Holzständerbauweise und Garage. Man kann vom HWR direkt in die Garage gehen. Die Garage besteht aus...